查看完整案例

收藏

下载
BACKARYDS KYRKA, RONNEBY
2017-2025
Arkitektuppdrag
klicka för att se bilder
klicka för att se bilder
Backaryds kyrka, Ronneby
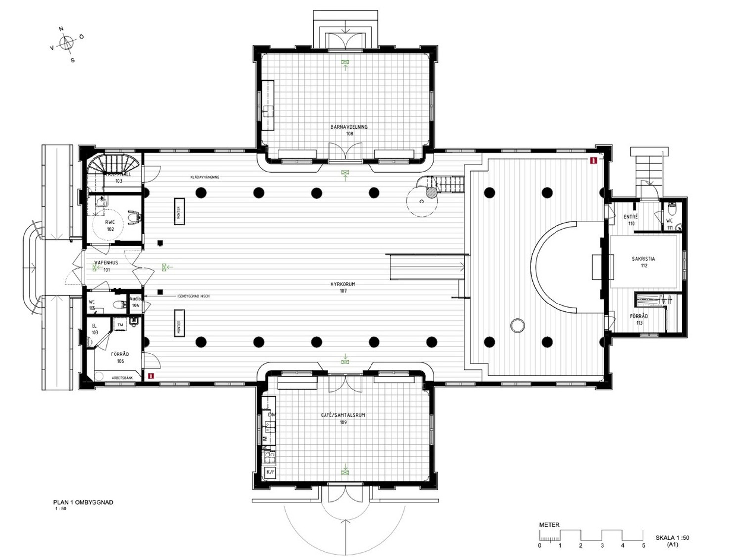
Backaryds kyrka från 1799 har omgestaltats för att möjliggöra en mer flexibel användning av kyrkorummet. Café-, barn-, mötes- och samtalsverksamheter har flyttats från det äldre församlingshemmet och ryms nu bakom nya träväggar i sidoskeppen. Kyrkbänkarna från 1938 har tagits bort, heltäckningsmattorna rivits ut och det värdefulla plankgolvet från 1799 – skänkt av församlingens bönder – har frilagts. Bjälklagen har öppnats och isolerats; varje planka numrerades och återmonterades på exakt samma plats. Slutbehandlingen gjordes med en varsam rengöring i såpa och vatten, för att bevara tidens spår.
Kyrkan värms numera av bergvärme, och de nya rummen i korsarmarna har försetts med golvvärme. En helt ny färgsättning lyfter helheten och ger interiören ett klarare uttryck. Installationer och moderna krav har integrerats med stor omsorg för att inte kompromettera byggnadens befintliga kvaliteter eller antikvariska värden. Tillgänglighetsanpassningar har utförts med nya in- och utvändiga ramper samt ett RWC.
Beställare: Ronneby Pastorat
Foto: Peo Olsson m.fl.
Bjartmar och Hylta Arkitekter
Sandgatan 14 F
223 50 SE - Lund
Sverige
+46 70 518 97 95
info@bjartmarhylta.se
客服
消息
收藏
下载
最近

























