查看完整案例

收藏

下载
architecten Els Claessens Tania Vandenbussche
School De Mast Kasterlee
2005
stabiliteit
Studieburo Mouton
technieken
studiebureau R. Boydens
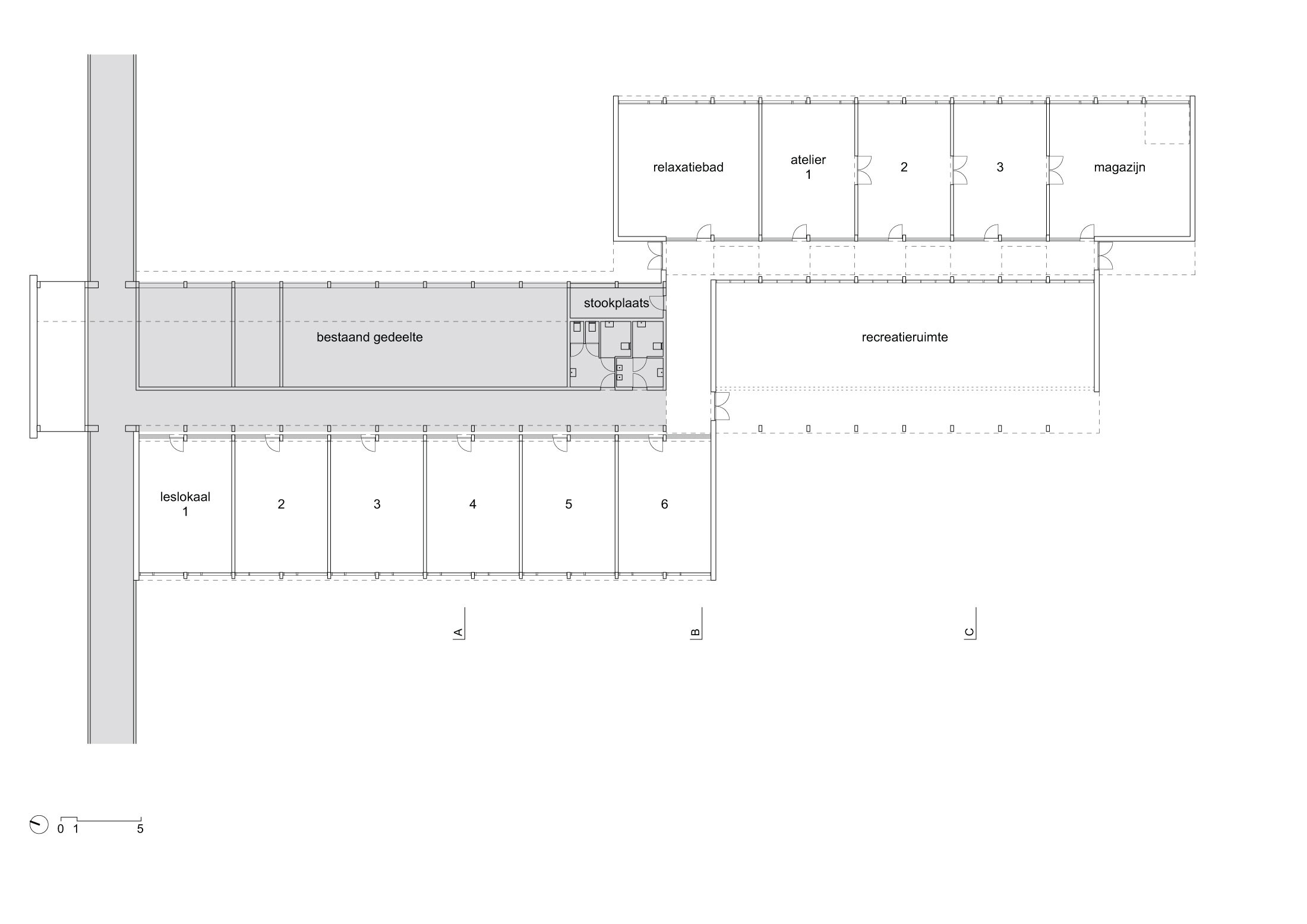
Opmerkelijk aan het basisgebouw van De Mast is zijn 'labyrintische openheid'.
Op plan valt vooral het orthogonaal en onregelmatig vertakt raster aan gangen op. De gangen zijn niet hiërarchisch opgebouwd en werken bijgevolg weinig structurerend. Ter plaatse blijkt echter dat niet de gangen maar de grote openheid tussen binnen- en buitenruimtes voor ordening zorgt.
Door de toepassing van een dakprofiel met een enkele zaagtand met oostelijke bovenramen blijkt licht een groot aandachtspunt in de bestaande gebouwen.
De vleugel waar ons ontwerp op aansluit heeft, na afbraak van de klassen-container, een eenzijdige gang die uitgeeft op een gesloten wand waarachter zich nu het relaxatiebad bevindt. We vinden enerzijds de situatie van deze spa niet optimaal; anderzijds zou het een kwaliteit zijn mocht deze gang op het einde op een buitenruimte uitgeven. Door de gang door te trekken ontstaat hiernaast, in het deel van het bestaande gebouw dat door het wegnemen van het relaxatiebad toch moet worden verbouwd, ruimte voor het nieuwe sanitair en de stookplaats.
客服
消息
收藏
下载
最近








