查看完整案例

收藏

下载
Maison de santé
2014
Void-Vacon (55)
Christophe Aubertin
Benoît Sindt
Le projet prend place dans un environnement diffus, entre le gymnase, le magasin GITEM et une zone pavillonnaire des années 80. Le parti architectural propose un bâtiment horizontal qui dialogue avec l’aspect « prairie » de la parcelle.
Deux critères sont à l’origine de la forme du bâtiment :
1 - s’ouvrir largement du côté sud afin de profiter au maximum des apports solaires naturels et se protéger des nuisances de la N4 au Nord
2 - offrir un maximum d’intimité au locaux médicaux en préférant des vues biaises et protégées par des claustras bois plutôt que des ouvertures frontales donnant directement sur les circulations piétonnes extérieures.
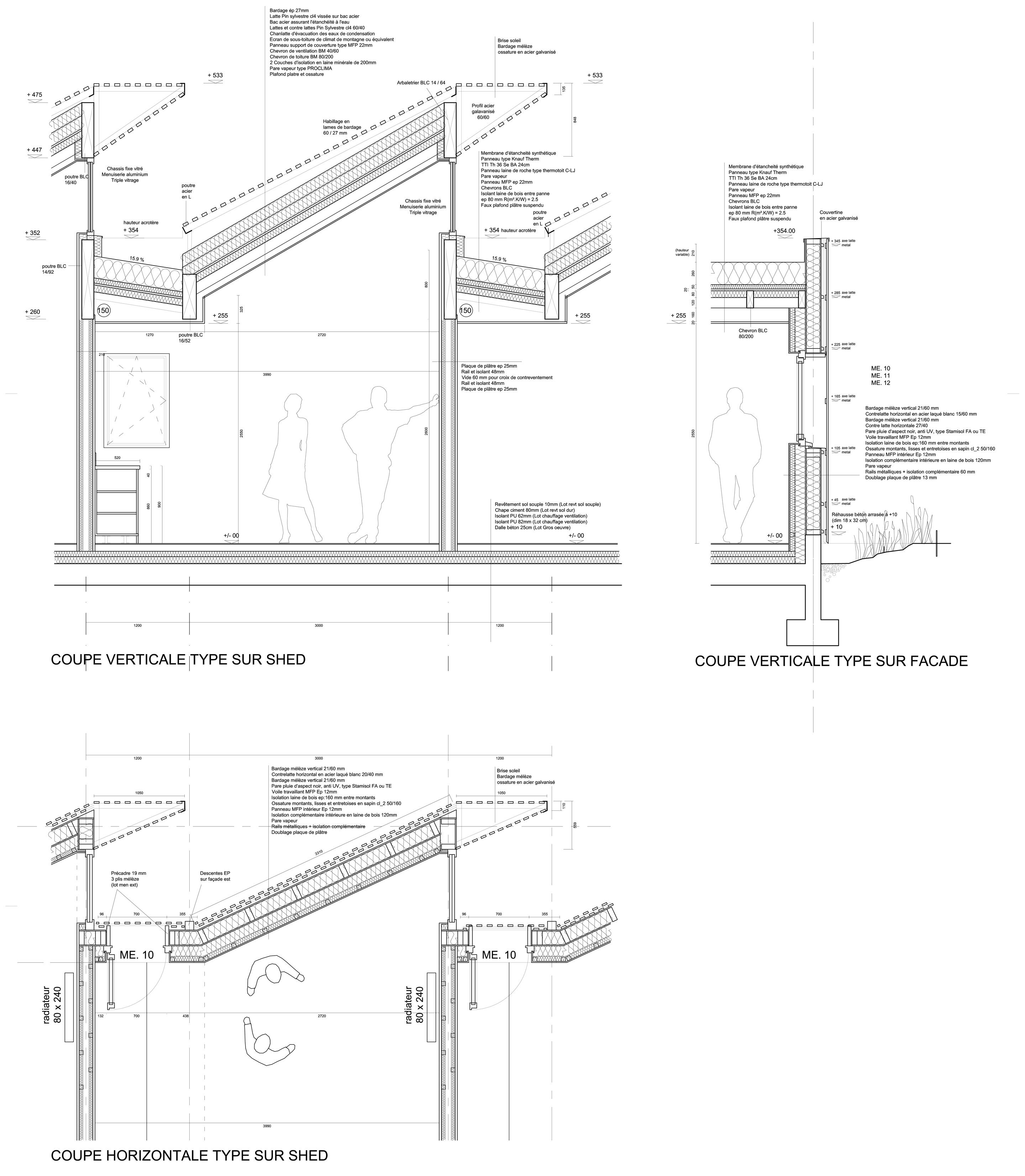
Les matériaux naturels sont mis en scène : le bardage bois habille entièrement l’enveloppe extérieure (façade et plans inclinés des sheds) alors que la pierre offre aux espaces intérieurs une sérénité rassurante au vu de la fonction de l’édifice.
Le projet met en œuvre une structure mixte : l’enveloppe est réalisée en ossature bois, fortement isolée alors que le mur de refend intérieur est en pierre calcaire locale (pierre savonnières). Les poutres primaires en lamellé collé portent sur trois appuis : les deux murs longitudinaux en bois et le mur central en pierre. Le bardage est un tressage en 3 couches: deux épaisseurs de lames de mélèze verticales de 6cm disposée en quinconce et écartées par une lame d’acier galvanisé horizontale. Ce système procure de l’épaisseur au dispositif de bardage sans risquer de trop exposer le pare pluie. Les jeux d’ombres et de lumière animent cette façade et les ponctuations brillantes des lames métalliques contrastent l’aspect mat des lames de bois qui griseront au fil des années.
Architectes
Christophe Aubertin (architecte mandataire)
Benoît Sindt (architecte associé)
BMT & ASSOCIÉS (architecte associé)
Collaborateurs
Guillaume cechin
Simon perdereau
Yoann Saehr
Équipe
ABECO
Barthes BE Bois
JM Structure
Terranergie
TECNOS
Eliane Houillon paysagiste
Philippe Tytgat
Julien Mahe
Programme
Maison de santé
Mission
Base + EXE
Maitre d'ouvrage
Public - Communauté de communes de Void-Vacon
Montant des travaux
1.4 M€ HT
Surface
692 m²
Rôle
Architecte mandataire
Statut
Livré
Livret du projet
客服
消息
收藏
下载
最近

































