查看完整案例

收藏

下载
VJAA
National AIA Firm Award Recipient
TYPE/VARIANT HOUSE
Location:
Northern Wisconsin
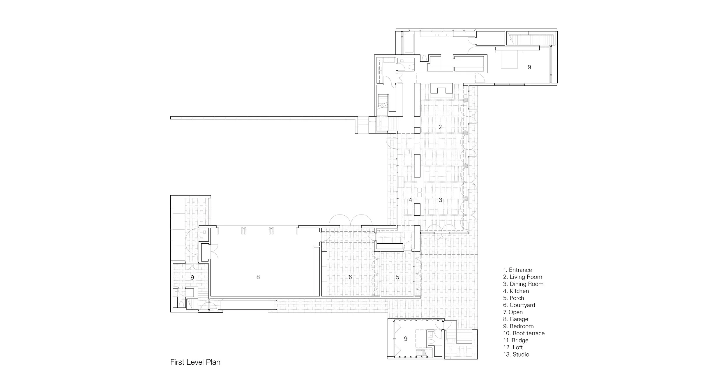
The idea of the type/variant house developed from the clients interest in collecting objects in series. As, for example, in a butterfly collection, the essential characteristics and variations among objects appear amplified by grouping them within a type. The house was conceived as a collection of wood-framed, copper-clad volumes, each differentiated by its orientation, proportions, and natural light. The rooms and spaces defined by the cubic volumes frame continually shifting views of the site and other parts of the house. Interior and exterior stairs, ramps, and bridges combine to create multiple pathways, both public and discrete, throughout the house.
Awards:
AIA Honor Award for Architecture, 1998
AIA MN Honor Award, 1996
客服
消息
收藏
下载
最近















