查看完整案例

收藏

下载
First page target
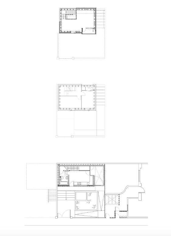
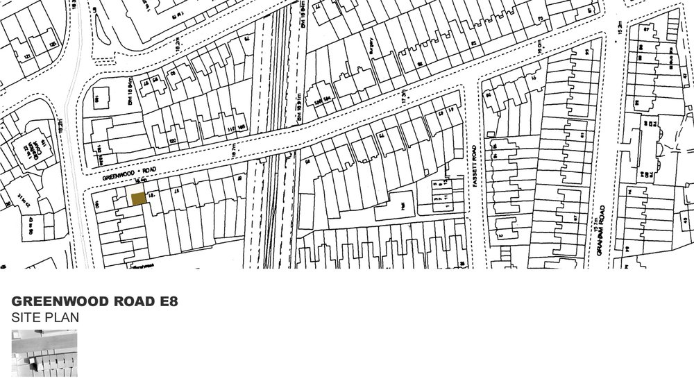
Greenwood Road E8
This new house sits at the end of a terrace of early Victorian Houses in Hackney. It was commissioned by a carpenter and a music journalist and is constructed from a "Green Oak" frame, clad externally with thin vertical oak boards. From the street, the house appears to sit on top of the garden walls. These wrap around the garden, creating a partly sunken ground floor that houses the kitchen and dining room. Bedrooms occupy the first floor with the living room on the floor above. The staircase unwinds to create a double height landing at first floor, at which point the oak frame first reveals itself. The oak frame forms the edges of the second floor living room, infilled with either white-painted plasterboard or white glass panels, allowing light to enter the living room from the west. Large doors open onto a corner balcony addressing the street and terminating the Victorian terrace with a generous gesture of inhabitation.
Waypoint 1
Waypoint Two
Second page target
Greenwood Road
客服
消息
收藏
下载
最近












































