查看完整案例

收藏

下载
MIRAMAR RESTAURANT
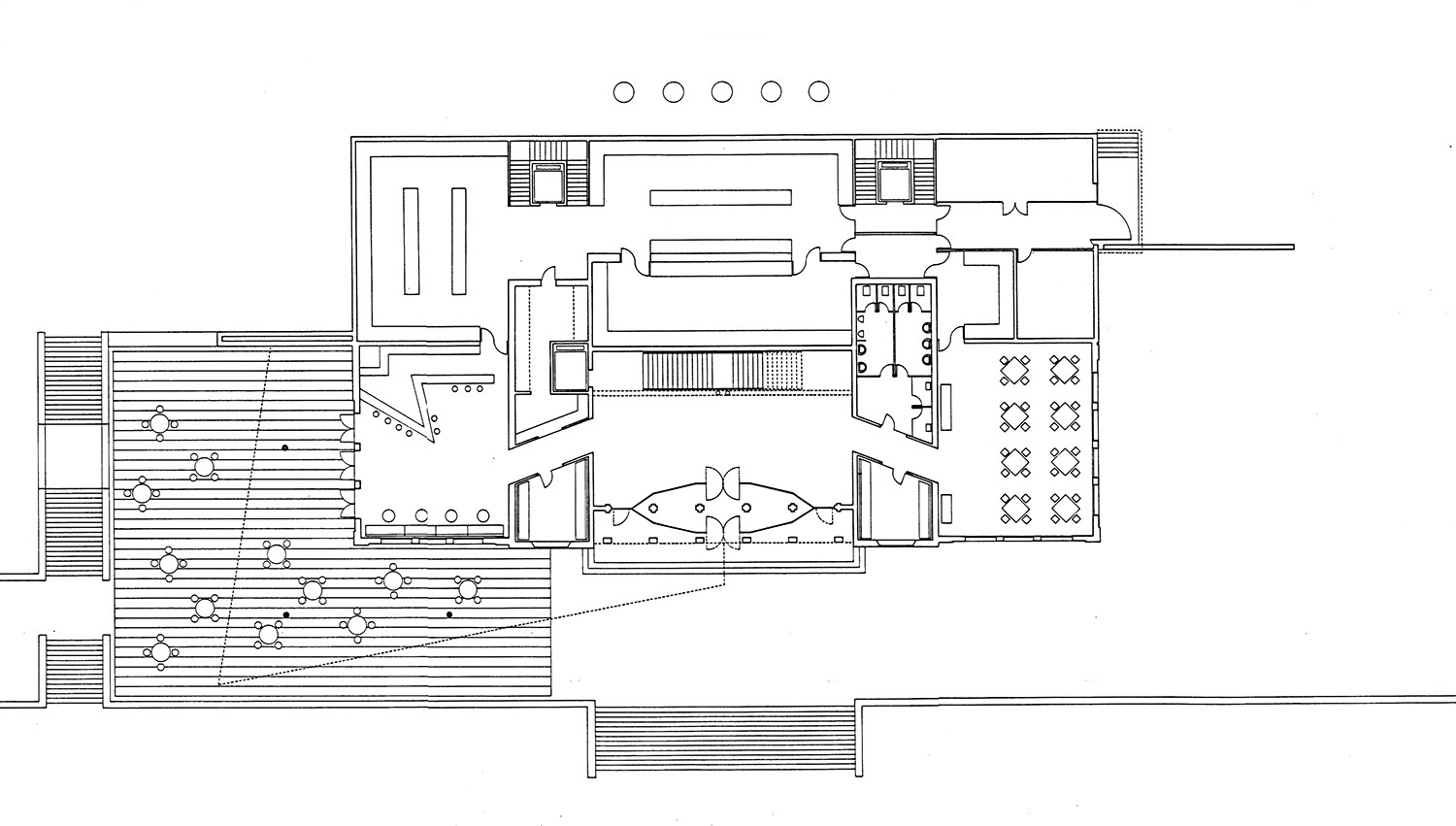
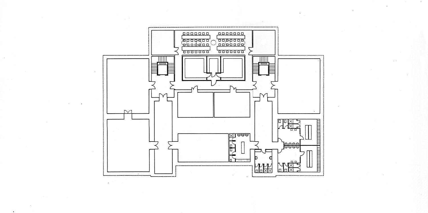
The remodeling of the remains of the building-restaurant of the Universal Exposition of 1929, basically proposes adding a body of glass that covers the whole up to its half, resting on one of its two terraces. This allows a rupture of the rigid compositional scheme and offers greater freedom to the plan, while watching, teaching, letting or not the look according to the light, giving it complexity and adding a certain mystery to an anodyne building that must be conserved.
RESTAURANTE MIRAMAR
La remodelación de los restoLs del edificio-restaurante de la Exposición Universal de 1929, propone, básicamente, añadir un cuerpo de cristal que cubra el conjunto hasta su mitad, apoyado sobre una de sus dos terrazas. Ello permite una rotura del rígido esquema compositivo y ofrece una mayor libertad a la planta, al tiempo que vela, enseña, deja pasar o no la mirada según la luz, dándole complejidad y añadiendo cierto misterio a un edificio anodino que debe ser conservado.
Autor /
Architects:
Jaume Bach, Gabriel Mora
Fecha del proyecto /
Date of project:
1990
Cliente /
Client:
Ayuntamiento de Sant Sadurní d’Anoia
Ubicación /
Adress:
Pabellón de Miramar, Barcelona
客服
消息
收藏
下载
最近














