查看完整案例

收藏

下载
Eskildsgade
ESKILDSGADE, GASVÆRKSVEJENS SKOLE, ARKITEKT HANS CHR. HANSEN | FOTO: SEIER + SEIER
ESKILDSGADE, GASVÆRKSVEJENS SKOLE, ARKITEKT HANS CHR. HANSEN | FOTO: SEIER + SEIER
NYT BYRUM I ESKILDSGADE | VIEW FRA ISTEDGADE NED AD ESKILDSGADE MOD HALMTORVET
DAGSLYSSTUDIER |
FORSØGSPERIODE_FEM NEDSLAGSPUNKTER / FEM ØER
Vi foreslår, at der i forsøgsperiode udpeges fire særlige ‘nedslagspunkter’, der samler ‘energien’ indenfor forsøgs periodens økonomiske ramme. Nedslagene placeres strategisk, ift. at regulere trafikken i gaden. Nedslagspunkterne udformes som mødesteder / supermøbler, der åbner op for etableringen af nye fællesskaber i gaden. Møblerne udformes og programmeres, sådan at de fungerer som en form for ‘bagscene’ der faciliterer events i gaden, f.eks. musikfestivaller, open-air bio, gadefester osv. Der etableres indbyggede skjulte teknikbokse, alternativt underjordiske bokse, med el- og evt. vandforsyning i en eller flere af supermøblerne. Møblerne bestykkes med belysningarmaturer, og/eller modulære additions elementer, der omdanner møblerne til bænkelementer, køkken- eller urtehaver m.m.
FORSØGSPERIODE_POP-UP SKOV / REKRATIVT BYRUM I ESKILDSGADE
Som en del af forsøgs projektet etableres en grøn ‘forhave’ til Gasværksvejens Skole – en midlertidig pop-up skov. Vi foreslår, at der plantes ca. tyve træer. Der vælges forskellige blomstrende arter med en varierende højde på ca. 4-7 meter. Træerne plantes f.eks. i store prisbillige/midlertidige bigbags af samme type som benyttes til byggeaffald mv. Bigbagsene mærkes med oplysninger om træts art og oprindelse, samt særlige egenskaber/anvendelsesmuligheder. Skoven tilfører gaderummet poesi og magi. Med skoven flytter naturen ind i gaden, et levende element, der forandrer rummets dufte, lyde, materialitet, (mikro-)klima og atmosfære. Skoven regulerer gadens luft- og lydforurening.
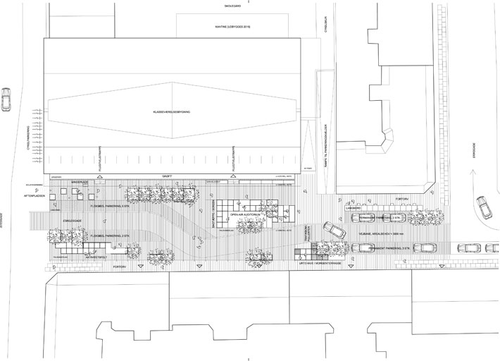
4.6 NYT BYRUM_FLEKSIBEL TRAFIKLØSNING
Strækningen fra Eriksgade ved nedkørslen til parkeringskælderen og frem til Istedgade lukkes helt for biltrafik i tidsrummet 7.30-17.30. Efter kl. 17.30 åbnes gaden op for lokal bilparkering og gennemkørsel med meget lav hastighed [under 15 km/t]. Gaden klassificeres og afmærkes med færdselstavler som et opholds- og legeområde; dvs. et fodgængerområde, hvor kørende har adgang [udenfor tidsrummet 07.30-17.30], men hvor de skal færdes på de gåendes betingelser. Aflukningen af gaden etableres som en fleksibel pullert-/ eller trafikbom-løsning. Det nye gadeforløb udformes som et knækket forløb, der på den måde tilskynder den kørende trafik til at køre med højst 15 km/t. Gangbaner, parkeringspladser og kørespor markeres med skift i belægningen.
4.7 NYT BYRUM_PARKERINGSLØSNING
Københavns Kommunes parkeringsdata viser, at Eskildsgade og området omkring har en overkapacitet i dagtimerne ift. parkeringsbelægningen. På Eriksgade er belægningen kl. 12:00 under 60 %, mens den er 60 – 80 % i Eskildsgade i samme tidsrum. Efter klokken 17.00 og arbejdstid ophør, stiger belægningsprocenten. Dette forhold udnyttes i projektet til at skabe en parkeringsløsning, hvor strækket fra nedkørslen til parkeringskælderen og frem til Istedgade, lukkes for parkering i tidsrummet fra 07.30 -17.30. Dette betyder, at 6 parkeringspladser – ekskl. de 6 stk. p-pladser der i dag er udlagt til fleksibel cykelparkering foran skolen – henvises til parkering i Eriksgade eller kvarterets øvrige gader. Efter kl. 17.30 åbnes gaden op for beboerparkeringerne igen. I alt etableres 12 stk. fleksible parkeringspladser indenfor projektafgrænsningen – en begrænset reduktion ift. dagens forhold på 6 pladser.
DIAGRAM | SPEJLING MELLEM SKOLENS FACADE OG PLADSENS BELÆGNING
BYENS NYE GULV | BELÆGNINGSPLAN
NYT BYRUM I ESKILDSGADE | AKSONOMETRI
SKITSEFORSLAG | SITUATIONSPLAN_SKALA 1:200
BYEN SOM SCENE
EVENT GADEFEST
Sidegaden lukkes for trafik og omdannes for en stund til beboernes forsamlingshus eller festlokale. Der opstilles bænke og borde i gaden, som dekorers med lyskæder. Teknikboksene giver adgang til el og vand. Urterne høstes i byhaven og langbordet tages i brug som udekøkken. Pladsen klargøres som dansegulv og DJ’en opstiller sit gear. Så er der fest!
EVENT OPEN AIR FILM FESTIVAL
Sidegaden lukkes for trafik og forvandles til en udendørs biograf ifm. open air filmfestivaller, storskærm-events ved OL eller andre store sportsbegivenheder og lignende sommer events Auditoriets bagvæg, der til daglig fungerer som udstillings- eller klatrevæg, omdannes til et filmlærred. På pladsen opstilles bænkerækker. Filmfremviseren tilsluttes el-boksen. Natten sænker sig, lyset slukkes, biografen åbner og forvandler gaden til et magisk filmrum. Byen vendes på vrangen. Gaden bliver dagligstue.
EVENT MUSIK FESTIVAL
Sommerens musikfestivaller indtager gaden. Gadens supermøbler danner bagscene og fundament for nye sceneopbygninger. Lyd- og lysanlæg tilsluttes gadens teknik- og elbokse. Der arbejdes bevidst med træer og begrønning af gaden, for en begrænsning af støj niveauet i gaden af hensyn til gadens beboere. Er I derude, Eskildgaaaaadeeee!?
SUPER MØBLER
SUPERMØBEL 1_ | MØDESTEDET
Bænkelementer, der rækker ud i Istedgade og inviterer bydelens forbipasserende indenfor i Eskildsgade. Elementerne optræder naturlige opholds- og mødesteder, særligt om eftermiddagen og sommeraftenerne, hvor hjørnet varmes af den lave sol, der står ned gennem Istedgade. Nedslagspunktet danner et naturligt mødested for beboere og forbipasserende i gaden – en mulighed for at slå sig ned med en kop kaffe i solen.
SUPERMØBEL 2_ | OPEN-AIR AUDITORIUM
Open-air auditorium, der benyttes som samlingssted for elever ifm. introduktioner, oplæg, ‘talks’, diskussioner mv. Desuden et oplagt mødested forud for udflugter eller ture ud i byen, til Amager Fælled mv. Placeres ifm. skolens portgennemgang til den indre skolegård. I forsøgsperioden etableres auditoriet forslagsvist som et simpelt – og prisbilligt – trappelandskab bestående af plade-beklædte europaller el.lign. Træer plantet i Bigbag’s integreres i auditoriet. Mulighed for lokal afledning af regnvand, regnvandsbassin mv., samtænkes ift. auditoriets endelige udformning. Auditoriets omfang og funktionalitet evalueres ift. opbygning af auditoriet som permanent installation. Alternativt – og hvis budgetrammen i forsøgsperioden tillader det, etableres auditotiet fra starten, som et færdigt, robust, kvalitativt og bæredygtigt supermøbel i byrumsskala.
SUPERMØBEL 3_ | LANGBORDET
Langbord placeret på kanten af Eskildsgade ned mod Eriksgade. Langbordet har to målgrupper, dels skoleeleverne, som kan benytte bordet som et udeværksted eller udelaboratorium ifm. studier i byen og/eller byens landskaber. Langbordet giver desuden gadens beboere mulighed for at oprette nye fællesskaber, der finder sted i gadens rum, f.eks. fællesspisning / beboermøder / høstfester osv. På den måde skabes der mulighed for, at det beboerliv der typisk knytter sig til baggården, vendes på vrangen og indtager gaden – til et aktiverende (og ikke-kommercielt) beboerdrevet byliv.
SUPERMØBEL 4_ | BYHAVEN
En byterrasse / byhave placeret på gadens vestside ned mod Eriksgade. Byterrassen er en invitation og gestus til beboerne i gaden – måske særligt på gadens vestside, der tilbyder en grøn byhave og et sted at mødes. Byhaven udvikles som et lille landskab eller køkkenhave, f.eks. med spiselige planter og/ eller krydderurter. Det undersøges, om pasning og pleje af haven, herunder vanding, kan udføres i samarbejde med beboerne – i et aktiverende medejerskab. Havens placeres i en lille ‘smørhul’ i gaden, som ligger lige præcis dér hvor morgensolen rammer gaden først. Et naturligt mødested til en kop morgenkaffe eller en snak inden dagen starter.
SUPERMØBEL 5_ | AKTIVITETSMØBLET
Aktivitetsmøbel placeret på hjørnet mod Istedgade ud for cykelbutikken AH-Cykler. Møblet inviterer til leg og bevægelse og indgår sammen med gadens øvrige supermøbler, som del af en sammenhængende parkour- og klatrerute. Ved således at gentage klatre- og legeelementer i pladsens forskellige supermøbler, udspændes aktiviteterne i gaden og gives en skala hvor brugerne selv får mulighed for at danne regler og forløb for hvordan installationerne skal prøves og afvikles. Møblet udformes med reference til Vesterbro’s klassiske lege- og klatreskulpturer og iht. Lokale og Anlægsfondens erfaringer og vidensopsamling ift. parkourinstallationer.
客服
消息
收藏
下载
最近




















