查看完整案例

收藏

下载
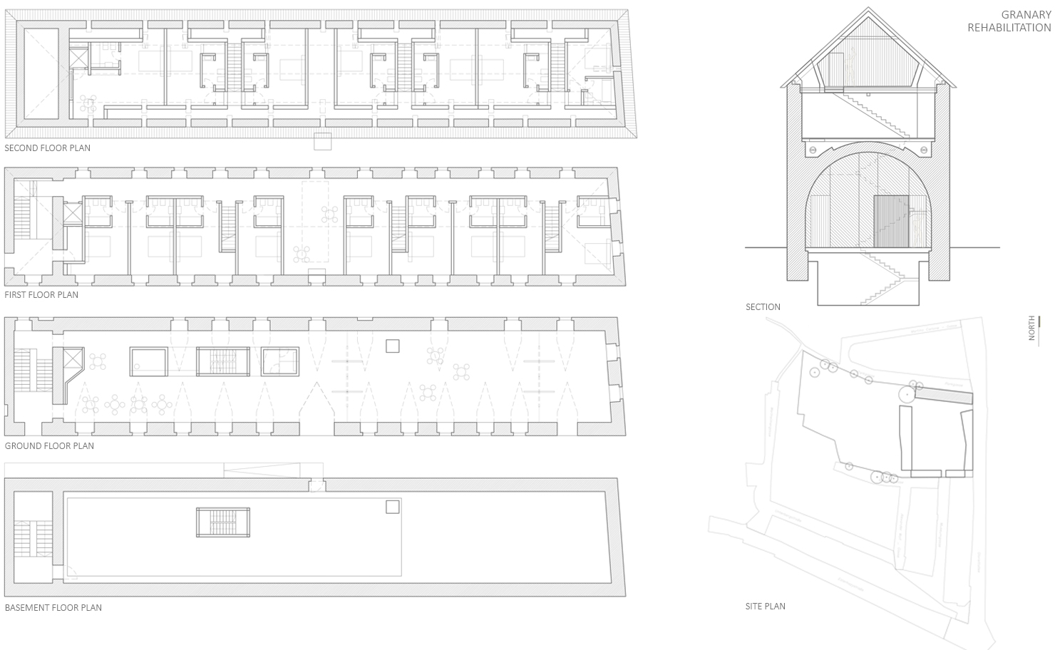
Europan 10
Eisenstadt, Austria
Europan 10 competition 2009, second prize
Gross area: ~4.500 m²
Inventing Urbanity, regeneration, revitalisation, colonization
Any rehabilitation process should aim at
re-creating the adequate
modality of reaction and reacting
, which would be able to normalize, bring back
the equilibrium, be in control of the situation and, ultimately, create the
appropriate conditions for releasing the
self-adjustment
.
Thus, our project is not planning big gestures
; it tries instead to use
a
series of small-scale interventions
, to search for ways of gradually bringing
back
the “lost urbanity” of the place
.
In Haydn’s town, the metaphor of Philemon and Baucis’ hospitality speaks
of the relation from human to human and, further on, facilitates the
exposure
of a new form of inhabiting and
co-habiting
.
In a dense
mix of small, affordable housing units
, the whole new housing programme is
organised around the triangle – old people, students and young families with
children.
PROJECT TEAM:
Architects
Andrei
Șerbescu
Adrian Untaru
Bogdan
Brădățeanu
Irina Băncescu
Sebastian
Șerban
客服
消息
收藏
下载
最近









