查看完整案例

收藏

下载
BETHELL
BEHTELL
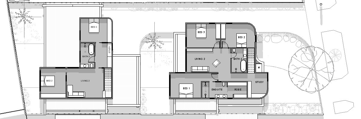
This Jarchitecture development project uses soft tones and smooth lines to lull the inhabitant in. Light and shadow play over the curves and textures. Moving through this house is a carefully choreographed experience. Extensive use of plants will connect the user to the environment beyond.
DOCUMENTATION PHASE
客服
消息
收藏
下载
最近









