查看完整案例

收藏

下载
CROUCH HALL
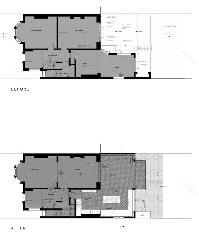
A rear ground floor extension to a three storey detached house in Crouch End. The scheme also included internal alterations including a new kitchen and variation in the ground floor layout.
LINK TO EVENING STANDARD ONLINE ARTICLE
客服
消息
收藏
下载
最近
























