查看完整案例

收藏

下载
reforma en bioconstrucción. adaptación de local comercial en Barcelona (Gràcia)
LA NUEVA TIENDA DE KANGURA, UNA “TERCERA PIEL” DE SUS USUARIOS
Proyecto de interiorismo: sencillo, elegante, natural y sosenible.
Reforma holística de bioconstrucción y interiorismo armónico.
la empresa
Kangura es una empresa que emprende su viaje a raíz del descubrimiento y de la pasión de su fundadora por el uso de los portabebés ergonómicos. Ella convierte esta prácitca en un estilo de vida, se forma como instructora de portabebés y lo consagra como su profesión. Funda una tienda virtual de portabebés y más adelante abre un show-room donde además realiza talleres personalizados para el correcto uso de los portabebés.
El servicio que ofrece Kangura va desde el asesoramiento sobre el portabebés adecuado a cada persona y la venta del producto hasta la información de su uso correcto, por lo que el vínculo con sus clientes se produce durante un largo tiempo y vá desde el interés mutuo por un estilo de crianza respetuosa hasta una filosofía de vida naturalizada.
el producto
El portabebés es un producto con múltiples modalidades que se ha venido utilizando en diferentes culturas y sociedades desde tiempos remotos, para ofrecer comodidad tanto a los porteadores como a los bebés y niños porteados. En estos últimos tiempos la tradición se ha recuperado y se han incorporando los últimos conocimientos sobre ergonomía y tecnología aplicada.
Se trata de una pieza de ropa, podríamos llamarle una “segunda piel” tanto para el porteador como para el bebé. Por este motivo acostumbra estar formado por materiales naturales, cálidos y confortables.
reforma en bioconstrucción
Kangura decide abrir una tienda física en Barcelona, en el barrio de Gracia, un barrio caracterizado por el vanguardismo actual y que a la vez conserva su antigua esencia y su identidad.
Yo soy usuaria de portabebés ergonómicos desde que soy madre y conozco la labor y el servicio que ofrece esta empresa, por lo que tras su encargo del proyecto de adecuación para la apertura de la tienda, propongo a Kangura que la nueva tienda sea una “tercera piel” para sus usuarios, así como un portabebés ergonómico es una “segunda piel”. Según mi opinión la tienda debería ofrecer como lugar todo lo que ofrecen los productos que venden, con una concepción holística.
Dado que la empresa, sus productos y hasta el estilo de crianza que promueve estan en sintonía con una visión biológica y natural de la vida, que apuesta porque habitemos el mundo y que vivamos entre nosotros de manera respetuosa, propongo que realicemos un proyecto de intervención en el local con criterios de sostenibilidad y ecología. Esto quiere decir que tenga en cuenta la salud de las personas que haran uso de la tienda y de los residuos y la toxicidad que el propio local emita al medioambiente durante su reforma, durante su vida útil e incluso al final de su vida. Todo esto está contemplado en los criterios que definen la bioconstrucción, la disciplina en la que me formé años después de desarrolar mi profesión de manera convencional durante algunos años, dada la necesidad que sentí de reorientar mi profesión de arquitecta según mi filosofía de vida y que se ha convertido en mi especialidad profesional.
Biconstrucción es la traducción de baubiologie, disciplina alemana, que literalmente sería biología del habitát. La bioconstrucción es el sistema de construcción que tiene en cuenta de manera holística el medioambiente y los seres vivos.
Kangura me encargó la modalidad de Proyecto de reforma biohabitable integral
1), que incluye el Proyecto de interiorismo armónico y el Proyecto de armonización ambiental.
1. Projecte de reforma biohabitable integral
Redistribució d’estances, instal.lació elèctrica biocompatible, tria de materials i pintures ecològiques. Inclou la modalitat 2 i 3.
*Interpretació i adaptació al projecte dels resultats de l’estudi geobiològic, en cas que s’hagi fet.
2. Projecte d’interiorisme armònic
Projecte de sustitució de materials per materials ecològics, projecte d’armonització ambiental i de qualitat de l’aire (ionització, ventil.lació), projecte de mobiliari ergonòmic i ecològic o bé convencional però amb criteris armònics i naturals. Inclou la modalitat 3.
*Interpretació i adaptació al projecte dels resultats de l’estudi geobiològic, en cas que s’hagi fet.
3. Projecte d’armonització ambiental
Projecte d’ubicació i elecció d’espècies vegetals interiors que purifiquen i reequilibren la qualitat de l’aire, estudi de color segons criteis emocionals, decoració i acondicionament armònic (tèxtils, imatges…)
*Interpretació i adaptació al projecte dels resultats de l’estudi geobiològic, en cas que s’hagi fet.
opcional
Reconeixement visual per detectar fonts agressores de la salut.
Medició i estudi geobiològic i ambiental in situ el.laborat per un professional en geobiologia.
el proyecto de distribución
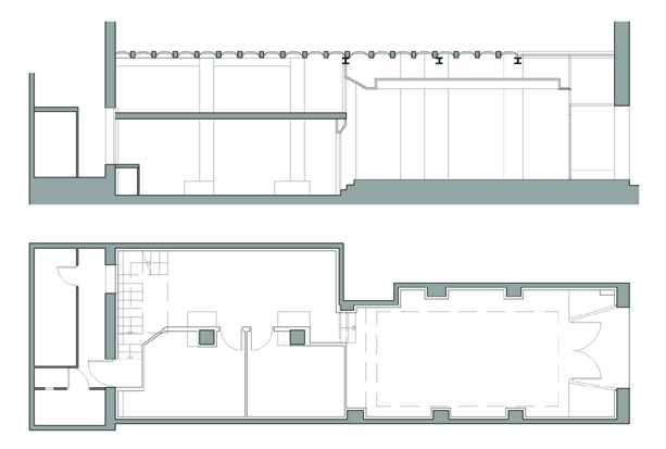
Se conserva la distribución espacial de la anterior actividad en el local dado que es útil para las nuevas funciones y con el objeto de reducir costes económicos y de impacto constructivo.
Los dos espacios se organizan funcionalmente de manera contraria: en el espacio - venda se colocará un gran asiento central i de soporte auxiliar desde donde se podrá contemplar la exposición en las paredes perimetrales de los productos en venda. En el espacio - talleres el elemento central será la instructora que dirigirá el taller i el material de soporte, de manera que los asistentes se organizarán alrededor de ella i a lo largo de las paredes perimetrales acomodados en cojines sobre el suelo, dado que es la posición más ergonómica y más cómoda para poder atender a la vez al taller y a los bebés. El patio posterior del local ofrecerá al espacio - talleres una relación visual con el exterior y se colocarán plantas aromáticas que inunden este espacio de un acondicionamiento ambiental i emocional armónico.
El funcionamiento de la tienda es según atención personalizada por parte de una dependienta y asesora, por lo cual los clientes pasaran un tiempo eligiendo y probando el portabebés más adecuado a ellos y por lo que los dos lugares deben ser acogedores y cálidos.
ESTADO INICIAL
PROYECTO DE REFORMA (versión final)
intervención constructiva
SANEAMIENTO
El local donde se realizará el proyecto está lleno de materiales de construcción superpuestos a los originales y maquinaria e instalación eléctrica poco o nada saludables, por lo que la primera apuesta del proyecto es “limpiar” y “sanear” la totalidad del local.
De esta manera los elementos constructivos originales podran “respirar” y dejaremos el lugar con una mínima contaminación electromagnética, además de que recuperaremos el espacio original del local, con su altura máxima hasta el forjado, a la vez que descubriendo los secretos de los materiales originales del edificio donde se ubica, construido en el año 1900.
REUTILIZACIÓN DE MATERIALES EXISTENTES
Todos aquellos materiales y elementos que puedan ser reutilizados en el nuevo local de Kangura seran conservados, al margen de su dudosa sostenibilidad ambiental, con el interés de darles una vida útil más larga posible ya que han producido un gran impacto en el medioambiente durante su producción, como las carpinterías de aluminio, o porque su eliminación es contaminante, como los plásticos que forman el rótulo del acceso.
MATERIALES NUEVOS ECOLÓGICOS
Todos los materiales nuevos son ecológicos en la medida que ha sido posible, para preservar la salud del medioambiente y de los usuarios del local, sobretodo teniendo en cuenta que gran parte serán bebés, seres muy sensibles a los tóxicos ambientales.
Suelo: caucho natural reciclado de neumáticos de camión
Mobiliario: madera de pino natural, tratada con barnices ecológicos a base de aceites naturales
Pinturas: ecológicas minerales i esmaltes acrílicos
Nos encontramos con que algún material no ha podido ser ecológico dado que la normativa existente no acepta muchos de estos materiales y los requisitos para este local son muy elevados, por ejemplo en cuanto a protección al fuego por incendio. Para compensar la emisión ambiental que estos materiales no ecológicos puedan emitir, ser recurre una corrección del ambiente mediante un “Proyecto de armonización ambiental” consistente en la elección y ubicación de especies de vegetación interior que purifiquen y reequilibren la calidad de l’aire, así como la potenciación de la ventilación natural y la ionización del aire mediante varias propuestas: una fuente de agua en el patio, una lámpara de sal…
INSTALACIONES
El proyecto contempla realizar una instalación eléctrica nueva, reduciendo la potencia instalada al mínimo para que la contaminación electromagnética sea la mínima necesaria, además se utilizarán materiales libres de halogenuros y la distribución del cableado se realizará en forma de espina de pez y nunca formando bucles alrededor de las estancias.
No se instala climatización artificial. La tienda aprovechará las condiciones existentes i las reforzará para conseguir un confort ambiental sostenible y huyendo de los requisitos sociales vigentes y de dudosa conveniencia. En verano se aprovechará la ventilación natural existente entre patio y via pública potenciando esta circulación meidante ventiladores. En invierno se recomienda la instalación de una estufa de biomasa que climatice la totalidad del local i que no requiera el suministro de la red eléctrica ni de gas.
ARMONITACIÓN AMBIENTAL
Para compensar la emisión de tóxicos al ambiente que puedan causar materiales existentes como el mortero ignífugo proyectado en el forjado, se procede a integrar medidas de purificación del aire com por ejemplo: -selección de especies vegetales que purifican y equilibran la calidad del aire interior -potenciación de la ventilación natural mediante ventiladores -colocación de lámparas de sal i fuentes de aigua para ionitzar el aire interior
INTERIORISMO ARMÓNICO Y DECORACIÓN
El objeto del proyecto de interiorismo es dotar de un ambiente cálido mediante el simbolismo que sea reflejo de la identidad de la tienda y que permita sentir los espacios de manera harmónica y acogedora, y a la vez sea suficientemente sobria y funcional para que pueda acoger las diversas funciones i se exprese en el lenguaje compositivo del momento histórico presente. Los recursos para hacer posible la convivencia entre estas dos estéticas son el color, la forma y la ergonomía utilizados con la intención de devolver la Energía Vital a los espacios y humanizarlos, no quedándose con un diseño minimalista y tecnológico que rechazaría el simbolismo que contecta con la Naturaleza y el Cosmos los espacios habitables.
Los tejidos como protagonistas, jutamente con el mobiliario de madera natural como elemento vivo y las paredes de obra de fábrica que dignifican el orígen, aportan vida al espacio y no son sólamente una aportación a las necesidades físicas sinó también al espíritu de quien habitará estos espacios.
tendidos de obra de fábrica recuperada
La recuperación de la fábrica manual descubre el local que nos acoje y dignifica los orígenes. Estos tendidos tendran además del valor estético, una función consistente en hacer de «soporte» de algunos expositores.
iluminación artificial
El proyecto de iluminación acompaña la percepción espacial de cada ambiente. En la tienda destaca las dimensiones originales y la magnificencia de éstas, aportando a la vez una altura «al uso» de altura inferior. En el espacio-talleres se potencian las características del espacio en cuando a recogimiento y calidez. Los expositores de portabebés reciben una iluminación particular para destacar su protagonismo.
ILUMINACIÓN GENERAL
REDUCCIÓN PERCEPTIVA DE LA ALTURA «ÚTIL» MEDIANTE LA ILUMINACIÓN EN EL ESPACIO-VENTA
ILUMINACIÓN CÁLIDA EN EL ESPACIO-TALLERES
ILUMINACIÓN PROYECTADA EN EXPOSITORES
los portabebés
Los fulares para el porteo de bebés seran los protagonistas de la decoración la tienda y la dotaran de la calidez y el simbolismo necesarios para hacer confortable la tienda, dotandola de identitad y de armonía que produciran un efecto emocional beneficioso. Los fulares estan confeccionados con telas de una calidad y diseño que puden cumplir con esta función a la perfección. También se dispodrá de quadros con imágenes de porteo a modo de exposición permanente.
mobiliario
El mobiliario es de madera para introducir un elemento vivo en la tienda, que dote de calidez y vitalidad el ambiente.
Se realizó un proyecto de mobiliario ergonómico y de madera de flandes y FSC a medida acompañado de textiles producidos con telas de fular por su confortabilidad, pero no se pudo desarrollar por motivos económicos; se optó por un segundo proyecto de mobliario de madera de pino ejecutado in situ por un artesano que trata el material como si fuese maleable, adaptándolo a la particularidad de cada encuentro.
El mostrador se ha reutilizado de la anterior actividad que acogía el local, tratándolo para adecuarlo al espaicio segun los mismos criterios. La tarea ha consistido en forrarlo para integrarlo en el espacio.
En la zona de talleres se ha concluido que los asistentes se acomoden el grandes cojines sobre el pavimento blando, dado que es la manera más ergonómica y más cómoda de poder atender a las explicaciones de la instructora a la vez que los bebés pueden moverse libremente por el espacio y ser atendidos por sus cuidadores.
estado inicial
composiciones fotográficas del proceso
alzado principal, apertura ventana conexión visual
recuperación ventana original, introducción de luz natural
alzado acceso, conservación carpintería
espacio-talleres, conexión visual con espacio-venta
estado final
客服
消息
收藏
下载
最近



































