查看完整案例

收藏

下载
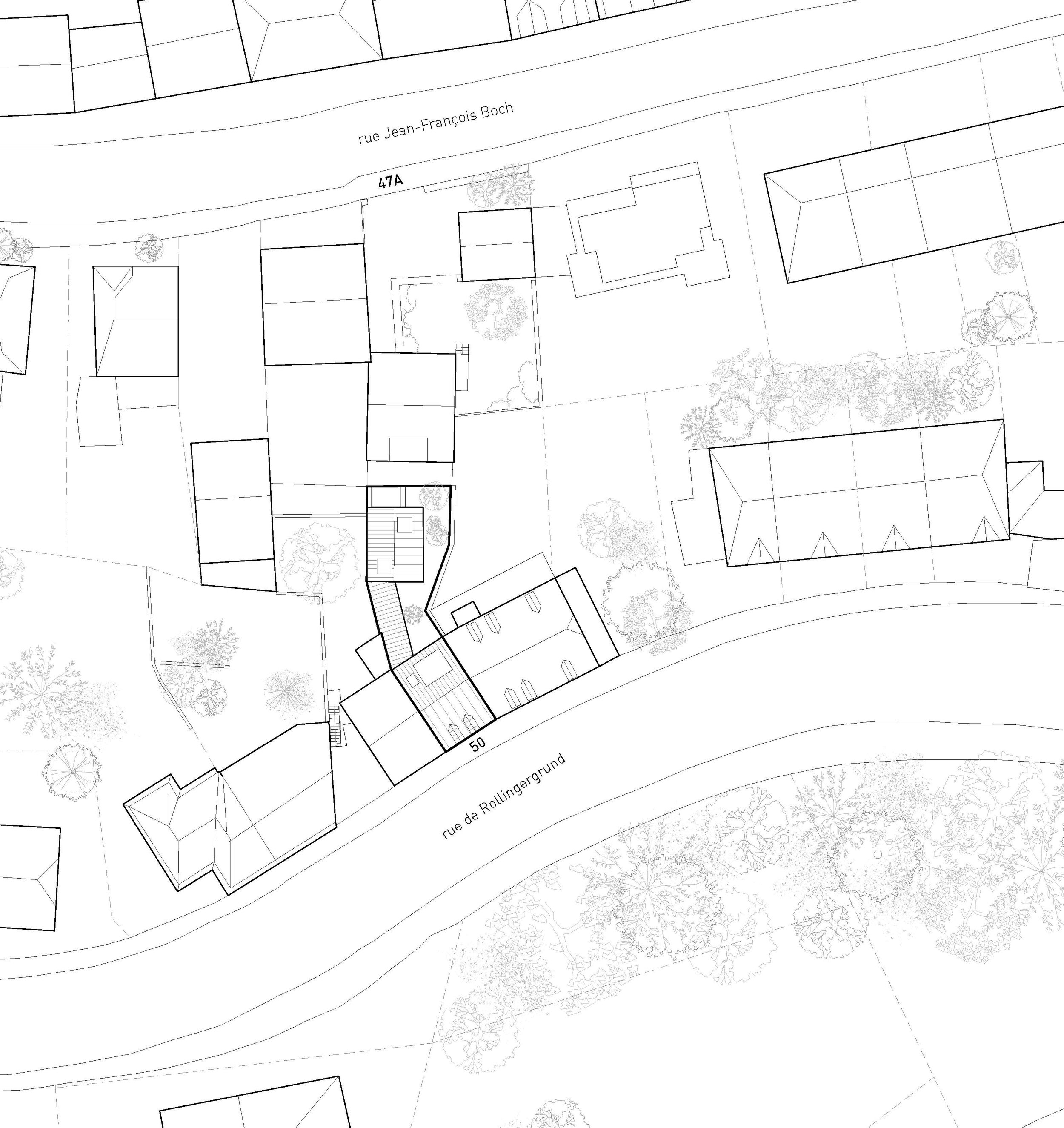
098 GuestHouse 50, LUXEMBOURG-ROLLINGERGRUND
TRANSFORMATION, RENOVATION ET RESTAURATION D´UNE MAISON UNIFAMILIALE MITOYENNE AVEC PASSAGE VERS UNE ANNEXE EN MAISON D’HABITATION AVEC ESPACE D’EXPOSITION ET BUREAUX, 2023
maître d'ouvrage: charles wennig + claudine kaell
ingénieurs génie civil: AuCarré
photos historiques : photothèque, hammer guillaume 1926
photos : sebastian persuric & simone bossi
plans : kaell architecte
Protéger et rénover des maisons existantes malgré leur apparence délabrée, démontre que la conservation de tout Patrimoine est toujours une valeur ajoutée par rapport à une démolition suite à une spéculation immobilière.
La maison mitoyenne date de 1880, le passage et son annexe ont été rajoutés vers 1930. L’ensemble servait à l’époque d’habitation avec un magasin de décoration au rez-de-chaussée et un atelier de production de stuc et papiers-peints dans l’arrière-cour.
Après un feu en 2012 et pour sauver la maison de la démolition, les voisins l’ont achetée presque en ruines, insalubre et inhabitable pour la restaurer et transformer seulement dix ans plus tard en maison unifamiliale. Son histoire et sa beauté ont pu être révélés au fur et à mesure des travaux préparatoires lorsque les stucs et les peintures murales ont été soigneusement mis à nu.
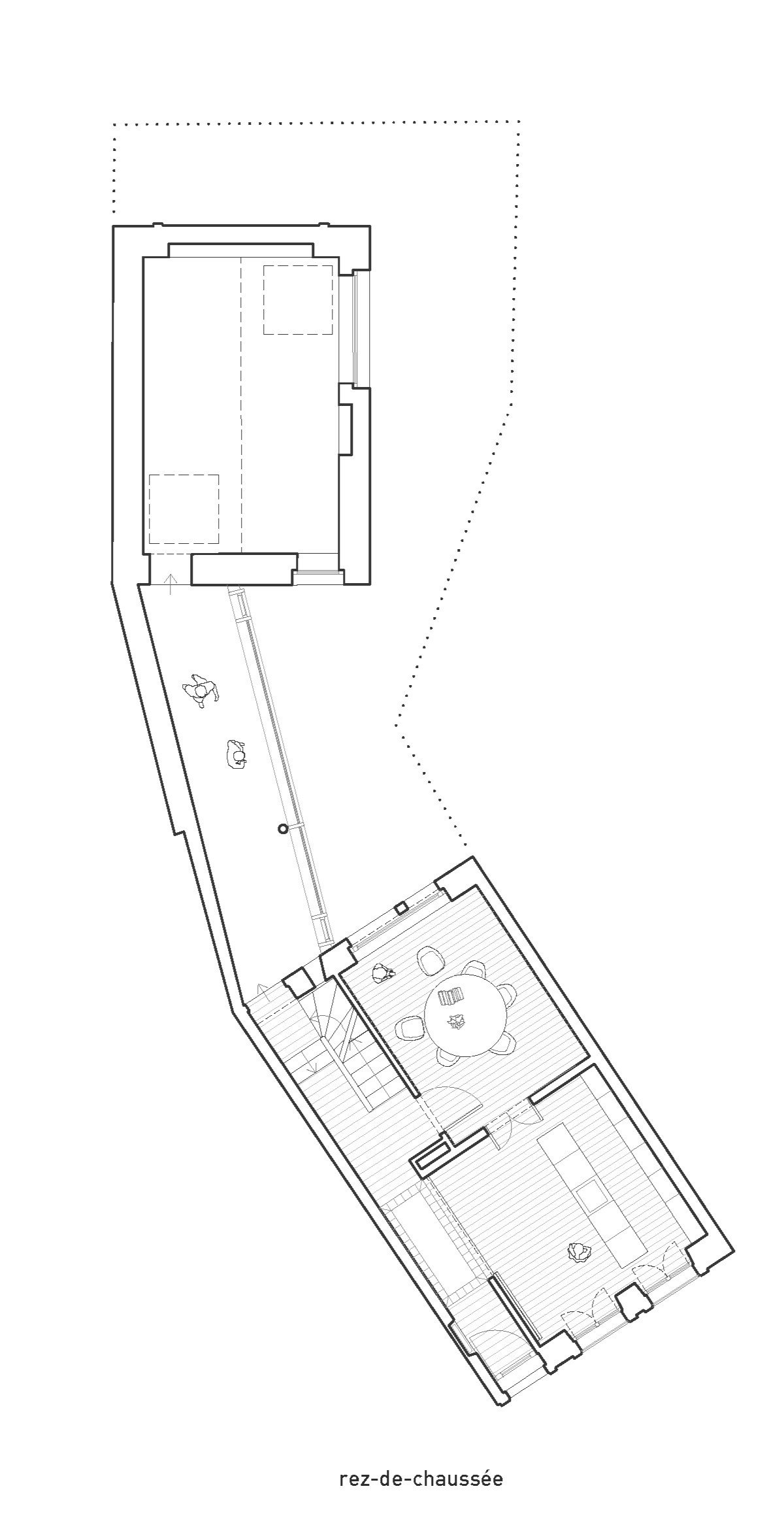
Aujourd’hui, on découvre des espaces entièrement rénovés et restaurés, lumineux et uniques. Les nouveaux matériaux apportés sont écologiques et traditionnels. Le projet de restauration était soutenu par l’Institut National du Patrimoine Architectural et la maison est aujourd’hui inscrite sur l’
Inventaire supplémentaire des Monuments Nationaux
.
Le GuestHouse50, planifié comme maison unifamiliale sert actuellement d’espace pour des activités pop-up au rez-de-chaussée et les étages sont aménagés en GuestRooms.
C’est dans ce cadre que le projet du GuestHouse50 sert de modèle pour encourager la conscience pour une continuité urbaine et le respect du Patrimoine, aussi petit qu’il soit, au détriment des démolitions des bâtisses et de la défiguration aléatoire des quartiers et des villes.
pour réserver un séjour, voici le lien :
GuestHouse 50 – URLAUBSARCHITEKTUR
© sebastian persuric
la rue de Rollingergrund vers 1900
客服
消息
收藏
下载
最近















































