查看完整案例

收藏

下载
Willa Parkowa 6
Projekt domu Willa Parkowa 6
0 opinia(i)
Dodaj projekt do ulubionych
Pokaż odbicie lustrzane projektu
1/12
Willa Parkowa 6
Previous
Next
Pokaż odbicie lustrzane projektu
10,790 zł
8,632 zł
Najniższa cena z 30 dni przed obniżką: 8 632 zł
Kup teraz bezpośrednio
Wersja podstawowa
Lustrzane odbicie
Koszt wysyłki: gratis
Dostępność: od ręki
Koszt realizacji:?
Jest to etap, w którym łączy się zakres etapów stanu surowego zamkniętego (RSSZ). 994 679 zł
Powierzchnia domu:?
Powierzchnia pomieszczeń w ich wysokościach użytkowych z odliczeniem pomieszczeń gospodarczych, technicznych i pomocniczych, takich jak: garaż, kotłownia, pomieszczenie gospodarcze. 207,29 m2
Min szerokość działki: 31,47 m
Min długość działki: 26,12 m
Projekt domu Willa Parkowa 6 jest kolejną wersją projektu z cieszącej się popularnością serii „Willi parkowych”. Dom nawiązuje stylistycznie do pozostałych „Wilii parkowych”, ale ma zdecydowanie inny, ciekawy rzut i układ funkcjonalny.
Zobacz całą serię projektów: Willa Parkowa
Tabela rozmiarów
1/2
Willa parkowa 6 - rzut parteru
Previous
Next
Rzuty: Willa parkowa 6 - rzut parteru
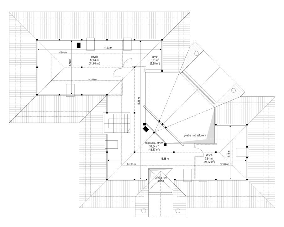
Willa parkowa 6 - rzut poddasza
Pobierz rysunki szczegółowe z wymiarami
Pobierz rysunki szczegółowe odbicia lustrzanego
1/1
Willa parkowa 6 - sytuacja
Sytuacja: Willa parkowa 6 - sytuacja
UWAGA: 1/4
Willa parkowa 6 - elewacje
Previous
Next
Elewacje: Willa parkowa 6 - elewacje Willa parkowa 6 - elewacje Willa parkowa 6 - elewacje Willa parkowa 6 - elewacje
Dane techniczne projektu:
Kubatura? Objętość pomieszczeń wraz z elementami konstrukcji (ścianami, stropami).
Powierzchnia garażu
Powierzchnia domu? Powierzchnia pomieszczeń w ich wysokościach użytkowych z odliczeniem pomieszczeń gospodarczych, technicznych i pomocniczych, takich jak: garaż, kotłownia, pomieszczenie gospodarcze.
Powierzchnia wiaty
Powierzchnia zabudowy bez podcieni? Powierzchnia budynku w dolnej kondygnacji, po obrysie ścian zewnętrznych, czyli powierzchnia jaką budynek zajmuje na działce.
Powierzchnia netto? Powierzchnia wszystkich pomieszczeń w ich wysokościach użytkowych (od wys.około 1,8 m).
Powierzchnia tarasu 1304,00 m3 34,16 m2 207,29 m2 N/D 314,68 m2 221,03 m2 + garaż 34,16 m2 + strych 59,60 m2 N/D 334,02 m2 314,68 m2 + strych 60,86 m2 59,6 m2 207,29 m2 + strych wg PN - 70/B - 02365 221,03 m2 + strych/poddasze 76,32 m2 wg PN - ISO 9836:1997 435,60 m2 30 stopni 6,35 m (6,65 m z podmurówką) 2,80 24,47 m 18,12 m 31,47 m 26,12 m
jednorodzinny parterowy ze strychem nie dwustanowiskowy wielospadowy murowany dworek, rezydencja poddasze do adaptacjii 3 5 5
mechaniczna nawiewno - wywiewna ogrzewanie w projekcie bazowym: kocioł gazowy c,o.
Porównywarka projektów + dodaj do porównania Wybrałeś do porównania (0)
Materiały:
Fundamenty: betonowe ławy i ściany fundamentowe z bloczków betonowych
Ściany zewnętrzne: ściany murowane - pustaki porotherm 25 + styropian
Strop: monolityczny betonowy
Elewacje: tynk cienkowarstwowy
Pokrycie dachu: dachówka
Pobierz zestawienie materiałowe
Koszty realizacji:
Jak liczymy koszty w naszych projektach? Kosztorys wykonywany jest w oparciu o katalogi nakładów rzeczowych, z aktualnymi cenami z Sekocenbudu. Przyjmujemy w kosztorysie budowę systemem gospodarczym, przy średnich cenach robocizny i materiałów, oraz sprzętu i transportu według średniej krajowej i dotyczy to wszystkich etapów realizacji. Uwaga: Podane koszty są wartościami netto.
Stan surowy otwarty? Stan surowy otwarty zawiera konstrukcję budynku, bez okien i drzwi, bryła budynku przekryta dachem, bez pokrycia docelowego, czyli na dachu jest folia przeciwwiatrowa na łatach i kontrłatach, lub papa na deskowaniu pełnym;
Stan surowy zamknięty? Jest to konstrukcja budynku jak w RSSO, wraz z oknami i drzwiami zewnętrznymi, oraz pokryciem dachowym;
Roboty wykończeniowe
?
W tym etapie uwzględniono: Instalacje wewnętrzne; Instalację elektryczną bez osprzętu; Ceramikę sanitarną i armaturę łazienkową; Okładziny ścian i podłóg; Tynki ścienne zewnętrzne i wewnętrzne; Roboty malarskie; Wszelkie izolacje; Parapety i cokoły; Orynnowanie i obróbki blacharskie, itp.
Roboty nie uwzględnione: Przyłącza do budynku; Otoczenie wokół domu, czyli tarasy, podjazdy, dojścia; Opaski wokół budynku; Ogrodzenie działki; Meble i wyposażenie wnętrz; Balustrady i wykończenie schodów; Dodatkowe instalacje z Pakietów do projektów domów.
Realizacja pod klucz
?
Jest to etap, w którym łączy się zakres etapów stanu surowego zamkniętego (RSSZ).
Instalacje
?
Kwota uwzględniona w robotach wykończeniowych
Koszt pokrycia dachu
?
Kwota uwzględniona w stanie surowy zamkniętym
Koszt stolarki
?
Kwota uwzględniona w stanie surowy zamkniętym
370 331 zł
514 152 zł
480 527 zł
994 679 zł
133 567 zł
75 937 zł
67 885 zł
Koszty podane netto, należy doliczyć podatek VAT
Pakiet kosztorys inwestorski
Koszty utrzymania:
Charakterystyka Energetyczna
Ep 66,0 kWh/(m2)
Ek 56,6 kWh/(m2 rok)
EUCO 16,7 kWh/(m2 rok)
(Projekt z wentylacją mechaniczną w standardzie)
UWAGA:
W celu spełnienia zapisów WT2021 o konieczności występowania przynajmniej jednego źródła energii odnawialnej, część naszych projektów ma zastosowaną mikro elektrownię wiatrową.
NF40
Istnieje możliwość dostosowania projektu do standardu NF40
Opis projektu:
Projekt domu Willa Parkowa 6 jest kolejną wersją projektu z cieszącej się popularnością serii "Willi Parkowych". Dom ma ciekawy rzut i układ funkcjonalny. Willa Parkowa 6 jest to dom parterowy o powierzchni użytkowej 207,29 m2 (kubatura 1304,00 m3). Projekt jest przeznaczony dla 5 domowników.
Willa parkowa 6 jest zwieńczony dachem wielospadowym. Kąt nachylenia dachu wynosi 30 stopni. Projekt domu można zrealizować na działce o minimalnych wymiarach: 31,47 x 26,12 m
Projekt domu Willa Parkowa 6 bryła budynku
Dom Willa Parkowa 6 jest parterowy, z dodatkowym strychem - poddaszem, które może pozostać pustą przestrzenią nad parterem, ale też może pełnić rolę poddasza użytkowego. Bryłę zaprojektowano na planie litery "L" z dobudowaną częścią garażową. Dzięki takiemu kształtowi domostwo będzie pasowało zarówno na działkę z ogrodem z tyłu domu, jak i z ogrodem z boku.
Projekt domu Willa Parkowa 6 może też być dobrą propozycją dla działki narożnej. Wewnętrzny dziedziniec od frontu przed garażami pozwoli domownikom na swobodne parkowanie autami na podjeździe, jak też na odseparowanie garażu od reprezentacyjnego wejścia do willi - zupełnie jak w amerykańskich rezydencjach. Wewnętrzne patio od strony ogrodu tworzy zamkniętą intymną przestrzeń tarasową z pięknym zadaszeniem nad tarasem i dwukondygnacyjnymi oknami łączącymi salon z ogrodem.
Projekt domu Willa Parkowa 6 wnętrze
Do budynku dostajemy się szerokimi drzwiami, z naświetlami bocznymi i górnymi do podwyższonego przedsionka z szatnią skąd trafiamy do przestrzeni dziennej domu. Na środku domu stoi prostopadłościenna bryła ściany kominkowej ustawiona pod kątem, która oddziela hol od salonu. Na lewo od wejścia mamy piękną kuchnię z wykuszowym narożnym oknem z widokiem na wejście i dziedziniec wjazdowy. Kuchnia z wyspą i mini-jadalnią do codziennych posiłków. Z kuchni przedostajemy się – po amerykańsku – do części gospodarczej w której znajduje się kotłownia i pralnia oraz do garażu.
W dwóch bocznych skrzydłach budynku mieszczą się: pokoje mieszkańców (dwie sypialnie dziecięce z łazienką w jednym), apartament rodziców z łazienką i garderobą oraz gabinetem do pracy w drugim. Pośrodku domu, w centralnym miejscu mamy piękny wysoki salon z dużym oknem na taras i ogród. Na górnej kondygnacji zaprojektowano antresolę nad salonem oraz dodatkową przestrzeń, w której bez problemu można urządzić dodatkowe trzy pokoje. Innym pomysłem jest wydzielenie przestrzeni magazynowej domu lub przeznaczenie całego poddasza na rekreację.
Koszt budowy domu Willa Parkowa 6
Budynek jest energooszczędny a dzięki dobrze zaplanowanej konstrukcji jego użytkowanie nie przysporzy nieadekwatnych kosztów.
Istnieje możliwość dostosowania projektu do standardu NF 40.
Projekt domu Willa Parkowa 6 to reprezentacyjna luksusowa podmiejska rezydencja o stylowej i ponadczasowej architekturze. Dom nie jest mały, ale jego wielkość nie jest przesadzona. Budynek jest energooszczędny i ma sensownie zaprojektowaną konstrukcję.
Do projektu domu Willa Parkowa 6 można zamówić pakiety, które rozszerzają funkcjonalność domu, poprawiają wygodę użytkowania budynku czy energooszczędność. Są to m.in.: pakiet płaszcz wodny, projekt szamba szczelnego czy pakiet ogrzewanie podłogowe.
Zapraszamy do obejrzenia wszystkich projektów domów z serii Willa Parkowa: projekt domu Willa Parkowa, projekt domu Willa Parkowa 2, projekt domu Willa Parkowa 3, projekt domu Willa Parkowa 4, projekt domu Willa Parkowa 5, projekt domu Willa Parkowa 6, projekt domu Willa Parkowa 6 D, projekt domu Willa Parkowa 7, projekt domu Willa Parkowa 8 A, projekt domu Willa Parkowa 8 B, projekt domu Willa Parkowa 9, projekt domu Willa Parkowa 10, projekt domu Willa Parkowa B, projekt domu Willa Parkowa C, projekt domu Willa Parkowa D.
Projekty są również dostępne w odbiciu lustrzanym.
Wydrukuj stronę katalogową
Pokoloruj swój dom
Kup teraz bezpośrednio
Wersja podstawowa
Lustrzane odbicie
Dodatki do projektu:
Warianty Domu:
Realizacje:
1/25
Realizacja domu Willa parkowa 6
Previous
Next Pokaż więcej zdjęć
Komentarze:
Dodaj komentarz
Zobacz więcej komentarzy
客服
消息
收藏
下载
最近









































