查看完整案例

收藏

下载
For over a year from 2009 to 2010, I worked as the project architect and project manager for Sanya Haitang Bay Fairmont Hotel. In addition to designing the site, podium, and part of the villas, I was also in charge of presenting to the client and managing the communication with them (Antaeus Group 今典集团), as well as coordinating with the hotel consultant (Fairmont), landscape design (AECOM), interior design (Dileonardo), and local design institute.
The client wanted the design to follow the Balinese style. To study the local architecture and precedents of resort hotel, I made trips to the Bali Island and Sanya. These learning trips served as excellent educational tours at that early stage of my career.
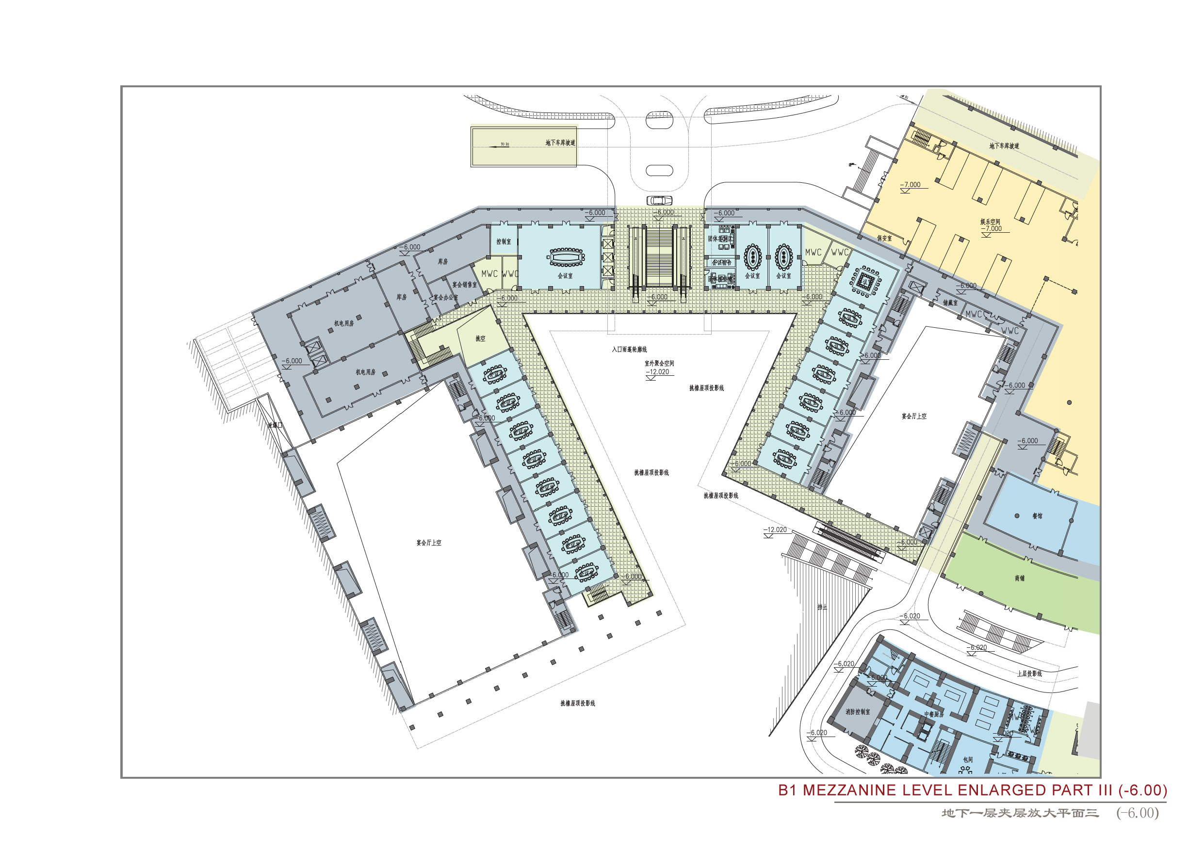
With above-grade and under-grade GFA totaling 88,000sqm, the podium along hosts a myriad of programs including hotel entrance and lobby, ball and meeting rooms, a casino, club, fitness center, restaurants of different types, and BOH. I took on the challenge of organizing the programs and strategizing the circulation. If the program and circulation are the internal organs of the building, then the design of hotel atrium piece and the façade of podium, including the entrance, restaurants, and conference center, was another major design piece that focused on the appearance. After iterations of re-design and modifications, we were able to find solutions to all major design issues and delivered the enhanced schematic design package (equivalent to 50% DD) to the LDI.
The guestrooms are composed of the hotel guestrooms and villa guestrooms. The 609 hotel guestrooms have ten room types, ranging from 43sqm king room to 376sqm two-bedroom suite. The 36 villas, either facing the ocean on a sloped site or lining around a lake, have seven unit types. The guests of the villas will be taken to the club house to check-in, then proceed to their villa either by golf cart or walking.
客服
消息
收藏
下载
最近










































