查看完整案例

收藏

下载
Élégance européenne et fonctionnalité réunies dans un bungalow
Inspirée par le style Néo-Traditionnel Européen, cette maison de plain-pied propose une architecture empreinte de caractère, de raffinement et d’intemporalité.
Le plan 255C allie des lignes classiques équilibrées à une organisation intérieure fluide et bien pensée, idéale pour ceux qui recherchent une maison élégante et accessible.
Pensée pour répondre aux besoins actuels des familles, cette conception mise sur la simplicité, une luminosité abondante, et des espaces ouverts qui favorisent les échanges au quotidien tout en conservant une belle séparation entre les zones de vie et les chambres.
L’architecture extérieure s’inspire des grandes maisons européennes, avec des détails soignés, une volumétrie bien proportionnée et une matérialité sobre qui traverse le temps avec grâce.
À l’intérieur, chaque élément est conçu pour offrir un cadre de vie fonctionnel, chaleureux et cohérent, où la lumière naturelle et la circulation fluide occupent une place centrale.
Le plan 255C s’adresse à ceux et celles qui souhaitent une maison distinctive, à l’image d’un art de vivre où tradition et modernité coexistent avec équilibre.
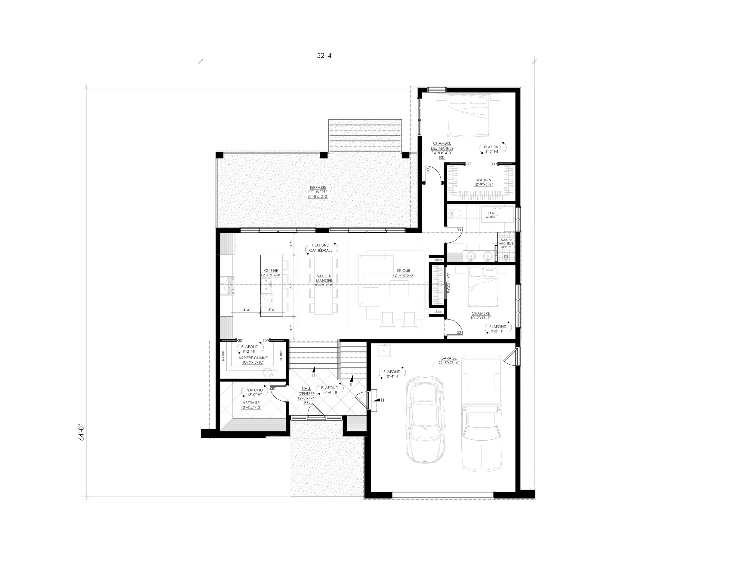
Superficie 1 517 pi2
Chambre 2 (2 possible au sous - sol)
Garage Oui
Salle de bains 1 et +
Étages 1
Coût de const. 432 000 $ à 587 500 $
Comment sont estimés les coûts de construction?
Il y a toujours deux prix d’indiqués pour chacun de nos plans. Le premier montant représente un coût en autoconstruction et le second un coût clef en main. Ils sont évalués au pied carré selon une moyenne de coût de construction au Québec. Ces coûts sont approximatifs et calculés avec des matériaux de qualité standard. Ils varieront selon le type de finition que vous choisirez, les particularités de votre terrain, le coût des matériaux de votre région, etc..
Bien entendu, ceux-ci n’incluent pas les coûts d’achat de votre terrain et terrassement puisque nous n’avons aucun contrôle sur ses prix. Le coût en autoconstruction prévoit que les propriétaires gèrent eux-mêmes leur chantier et feront les travaux eux-mêmes. Alors que le coût clef en main prévoit qu’un entrepreneur général s’occupera de la construction de A à Z.
Finition intérieure prévue : Céramique aux endroits indiqués sur les plans. Bois franc au rez - de - chaussée et étage. Cabinets (cuisine et salle de bains) en mélamine. Escalier du rez - de - chaussée en bois franc et sous - sol en planches de particules de bois. Électricité, plomberie et ventilation par pièce. Les coûts ne prévoient pas la finition du sous - sol (lorsqu’il y en a un), mais prévoient tout de même son isolation et la finition de gypse au pourtour des murs extérieurs.
Finition extérieure prévue : Les finitions représentés sur les 3D ont été considérés dans les estimés. Les matériaux extérieurs couramment utilisés pour nos plans sont la maçonnerie, le déclin et l’acrylique. Fenêtres en PVC. Toiture en bardeaux d’asphalte lorsque la pente le permet, sinon en membrane d’étanchéité autocollante pour les pentes faibles. Fondation de béton coulé.
Pour un estimé précis qui tiendra compte de vos choix de finition, de la période de construction de votre projet, des matériaux locaux ainsi que des prix des sous-traitants de votre région, il faudra soumettre vos plans LEGUË architecture à un ou plusieurs entrepreneurs et discuter des finitions souhaitées. Il s’agit du processus normal et de la première étape dans votre projet de construction.
Galerie photos
Ë_255D
Plan
Rez-de-chaussée
Sous-sol
Aire de vie
Cuisine
Cuisine
Salle à manger
Salle à manger
Salon
Salon
Salon
Entrée
Chambre principale
Chambre principale
Chambre principale
Salle de bain
Salle de bain
Arrière
Arrière
Façade
Ë_255D Présentation
Plan Ë_255D Inversé
Plan
Rez-de-chaussée
Sous-sol
Aire de vie
Cuisine Cuisine
Salle de manger Salle à manger
Salle à manger
Salon
Salon Salon Salon
Entrée
Chambre principale Chambre principale
Salle de bain Salle de bain
Arrière Arrière
Façade Ë_255D Présentation
Plan
Rez-de-chaussée
Sous-sol
Aire de vie
Cuisine Cuisine
Salle à manger Salle à manger
Salon Salon Salon
Entrée
Chambre principale Chambre principale Chambre principale
Salle de bain Salle de bain
Arrière Arrière
Façade Ë_255D Présentation
Rez-de-chaussée
Sous-sol
Aire de vie
Cuisine Cuisine
Salle à manger Salle à manger Salle à manger
Salon Salon Salon Salon
Entrée
Chambre principale Chambre principale
Salle de bain Salle de bain
Arrière Arrière
Façade Ë_255D Présentation
Coût du plan Ë_255D 3 280 $
Modification de plan
Tous les plans sont modifiables.
Vous avez des questions? Consultez la FAQ
客服
消息
收藏
下载
最近






















