查看完整案例

收藏

下载
Large size home 24
Overview
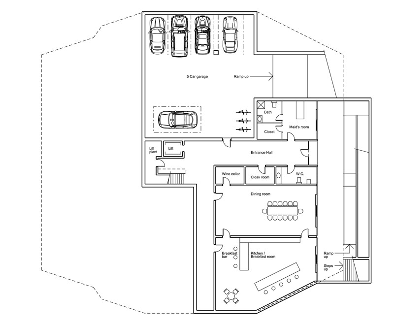
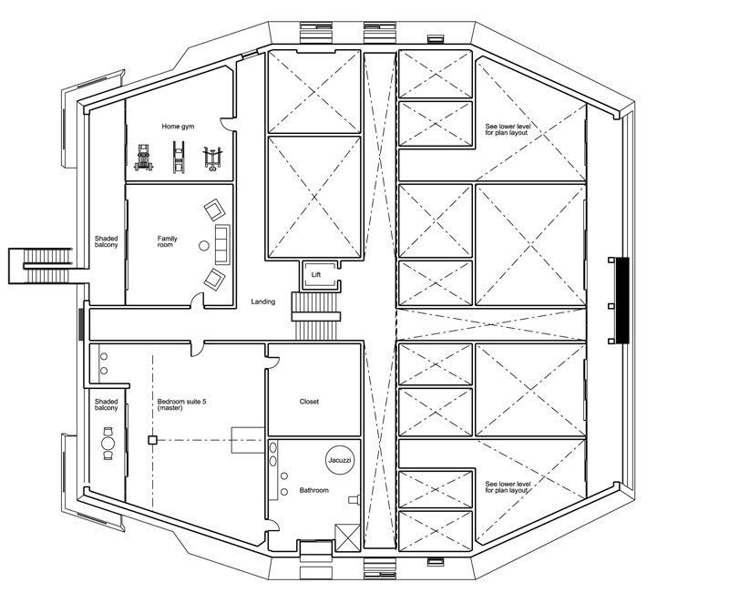
Sloping walls and cantilevers gives rise to this home's futuristic looks. The property features a split level plan, with an entry level sub-basement, offering parking for five cars, a kitchen and dining room, as well as ancillary staff accommodation. The ground floor comprises the lounge and reception, with an additional games room and private bar. The first floor level comprises four luxury bedroom suites with private bathrooms and closets, a laundry room and a home theater. The second floor comprises the master bedroom suite, in addition a large family room and home gymnasium, lead onto a balcony with access to the pool / garden area, via an external metal staircase. Lift access is provided to all floors. Balconies are provided to all bedroom suites. Principle areas of glazing are shaded, making this home ideally suitable for hot sunny climates. Reinforced concrete or steel framing are the preferred construction methods.
Price:
£1,500.00
Plan layouts
Basement Floor Plan:
Ground Floor plan:
First Floor Plan:
Second Floor Plan:
Specification
Room areas
Bedroom 1:
91.47m2
Bedroom 2:
88.75m2
Bedroom 3:
67.76m2
Bedroom 4:
76.97m2
Bedroom 5:
181.49m2
Kitchen:
86.61m2
Dining room:
67.76m2
Reception:
129.35m2
Games room:
45.14m2
Family room:
50.75m2
Garage:
191.88m2
Gymnasium:
42.16m2
Home theatre:
44.08m2
Laundry:
31.68m2
Maid's room:
30.75m2
Home bar:
33.64m2
Interior renders
客服
消息
收藏
下载
最近


















