查看完整案例

收藏

下载
CASE PER ANZIANI A GALLIATE
LUOGO
Galliate, Novara, Italia
ANNO
1982
STATO
Costruito
PROGETTISTI
Antonio Monestiroli, Paolo Rizzatto
COLLABORATORI
Sandro Colbertaldo, Isabella Lagomarsino, Cristina Manzoni, Antonio Paolucci
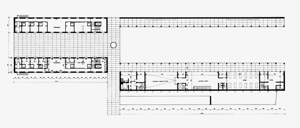
Il terreno ha una forma regolare, determinata dal modello di lottizzazione rurale di Galliate e dei suoi dintorni. Un sistema di insediamenti residenziali in linea paralleli, orientati est-ovest con le due facciate principali poste a nord e a sud. A sud, il fronte quasi sempre loggiato si affaccia su una fascia di terreno coltivata a orto, a nord il fronte prevalentemente chiuso, in cui si aprono le finestre strettamente necessarie.
Questo sistema di lottizzazione è ancora evidente intorno al terreno destinato alla casa per anziani e ne determina le caratteristiche imponendo una disposizione degli edifici parallela a quelli esistenti. Le caratteristiche del terreno e le considerazioni generali sul tipo adeguato al tema in questione hanno suggerito la forma dell’impianto. Il terreno è stato diviso nella sua lunghezza in tre parti successive collocate su uno stesso asse: una prima parte destinata ai servizi collettivi, una seconda destinata alle abitazioni degli anziani, una terza destinata al giardino. Le prime due sono costituite da quattro edifici paralleli che determinano due corti rettangolari aperte sui lati brevi; le due corti, di dimensioni diverse, affacciano l’una sull’altra e ambedue sulla strada principale d’accesso, e sul giardino sul fondo. Un lungo edificio porticato che contiene i servizi collettivi e, di fronte ad esso, un portico, costruiscono la prima corte. Fra i due edifici un prato in cui si svolgono le attività all’aperto: le passeggiate, i giochi, gli spettacoli estivi. I servizi collettivi sono distribuiti in linea: i locali della mensa e della palestra, che sono le due attività prevalenti, sono a doppia altezza; fra di loro il bar, collocato al centro dell’edificio e distribuito su due piani di cui il piano superiore destinato al gioco e alla lettura. Al piano terra gli ambienti sono tutti collegati attraverso un sistema di porte che mettono in comunicazione mensa, bar, palestra, cucina attraverso piccoli atri in cui sono collocate le scale e i servizi igienici. L’edificio porticato, rivolto a sud, si affaccia sul prato con una vetrata continua che consente un buon soleggiamento per tutto il periodo invernale. Nei mesi estivi la vetrata è totalmente apribile, stabilendo un rapporto diretto con il prato antistante. Il portico, orientato a nord, è un luogo particolarmente ombroso nei mesi estivi. La corte destinata all’abitazione, formata da due edifici in linea, alti due piani, contiene quattro comunità alloggio, una per ogni piano di ogni edificio. Le comunità alloggio si possono considerare veri e propri alloggi unifamiliari, con camere attrezzate.
Foto di Donato Di Bello
客服
消息
收藏
下载
最近
















