查看完整案例

收藏

下载
Építészet Ligete
2021
Budapest VII. kerület, Városligeti fasor, a Magyar Építészeti Múzeum és Műemlékvédelmi Dokumentációs Központ gyűjteményeinek és új kiállítóhelyének elhelyezésére, valamint közintézményi funkcióinak ellátására szolgáló épületegyüttes tervezésére kiírt országos tervpályázat,
kiemelt megvétel
Felelős tervezők:
Biri Balázs, Szabó Levente
Munkatársak:
Breuer Anna, Krompáczki Péter, Rátgéber László, Surján Borka, Szilágyi Szabolcs, Zacher Bendegúz
Tájépítész tervezők:
Gyüre Borbála, Tóth Evelin E. (Geum Műterem Kft.)
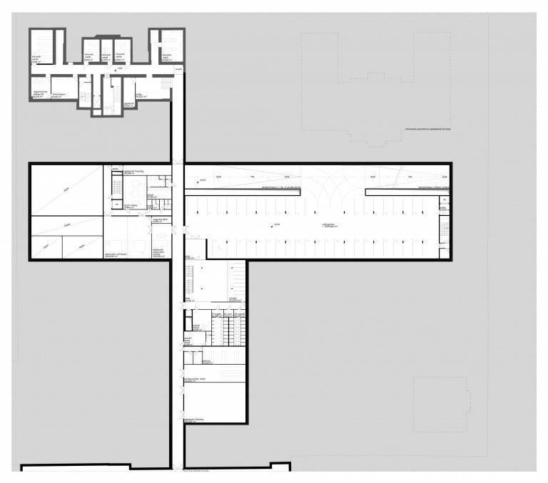
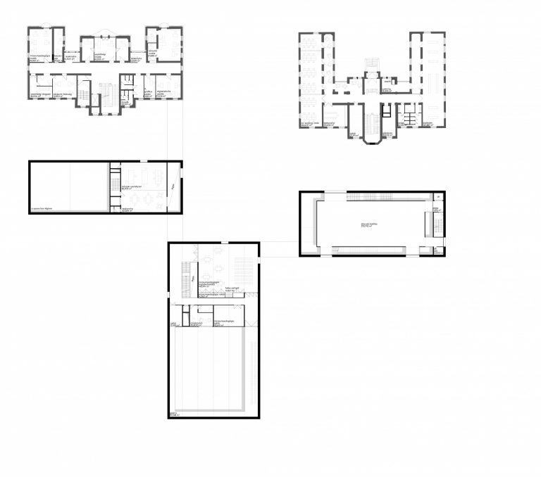
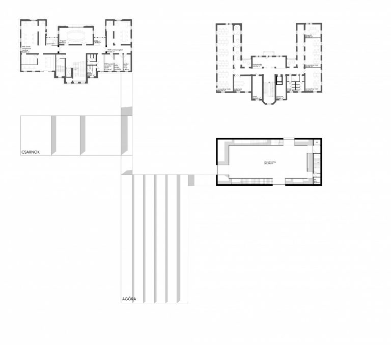
Az Építészet Ligete tervezett épület- és szabadtér-együttesének megvalósulásával a mindenkori magyar kortárs építészet rég várt és méltó otthona születhet meg. Kivételesen jó helyszíne mindennek a Városligeti fasor menti kijelölt terület, amelyet nem csupán városközponti elhelyezkedése, de sokrétű építészeti karaktere is különösen alkalmassá tesz az együttes fő hivatására: az építészet önreprezentációjára.
De kiállítható-e az építészet? A válasz nagyban függ attól a téri koncepciótól, amelynek kiválasztása volt a tervpályázat tárgya. A helyszín meglévő történeti-kulturális rétegeinek minél komplexebb integrációja az építészeti koncepcióba, meggyőződésünk szerint csak itt és most megvalósítható, gazdag építészeti, téri, szabadtéri világ megalkotását teszi lehetővé.
A terület heterogenitása lehetne hátrány is, pályaművünk azonban arra tett kísérletet, hogy egységes értelmező téri keretbe foglalja a széttartó karaktereket. Az új épület éppen ezért szándékaink szerint több, mint az együttes főépülete: sokkal inkább transzparens téri rendezése meglévő és új, belső és külső terek izgalmas szövetének. Az épület amőba-szerűen lakja be, teszi értelmezhető arányúvá, tagolja a különféle kertrészeket, és reflektál a meglévő épületek térfalaira.
A telepítési koncepció belülről kifelé építkezik: a Városligeti fasor és a Bajza utca mentén nem térfalakat fogalmaz meg, hanem a belső kertet engedi ki egészen az utca vonaláig, s így a főbejáratot a terület belsejében, az épületegyüttes szívében hozza létre. De az épületek szervezésénél is a kert kapta a főhangsúlyt: teljesen transzparens földszinti kialakítást fogalmaz meg javaslatunk. Az egyes eltérő karakterű kertrészekben, az új épületekben vagy épp a meglévőkben járva a folyamatos átlátásokkal, új látványok feltárulásával, egyéni nézőpontok átélésével az általunk javasolt épületegyüttes önmagában is a kiállítás részévé, az építészeti teret átélhető gazdag térszövetté, nem csupán annak keretévé válhat.
Hetedik Műterem Kft.
2026
Cím:
1111 Budapest, Bertalan Lajos u. 19.
E-mail:
hetedik@hetedik.hu
客服
消息
收藏
下载
最近






























