查看完整案例

收藏

下载
Goodsten / Gastronomico
Colaboradores
Arq. Fernando Hitzig
Arq. Leonardo Militello
Documentación de obra: Arq. Virginia Bottan
Dirección de obra: Arq. Virginia Bottan
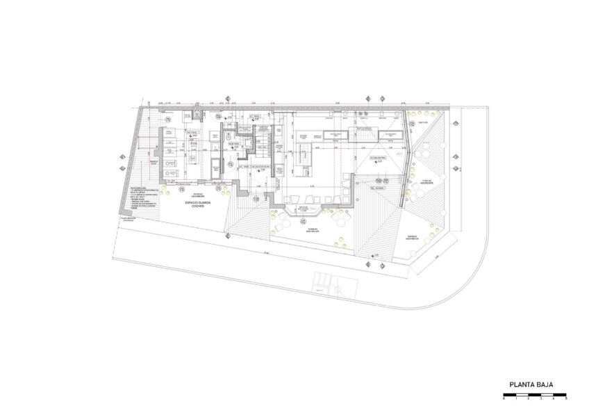
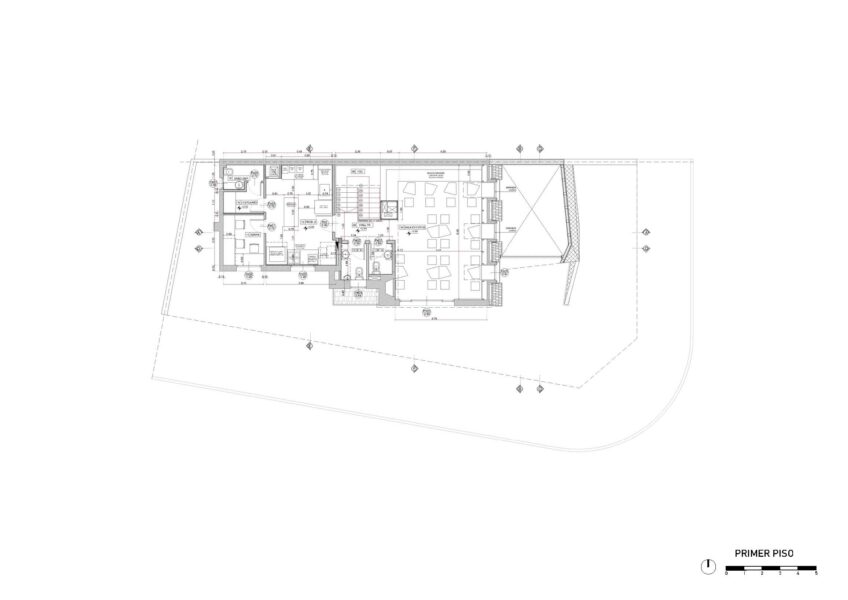
Programa
Heladería & cremería
Superficie
Planta baja 118 m2
Primer piso 97m2
Exterior 117 m2
Renders
Arq. Juan Ignacio Rosales
Fotografia
Federico Kulekdjian
Servicios contratados
DC
Diseño conceptual & Arte
HM Arquitectos
PA
Proyecto arquitectónico
HM Arquitectos
DE
Documentación ejecutiva de obra
HM Arquitectos
DO
Dirección & Administración de obra
HM Arquitectos
IN
Interiorismo
HM Arquitectos
Memoria descriptiva
GOODSTEN no es solo una cremería, nace de una experiencia de paisajes oníricos de otros mundos, como si se tratara de un planeta donde existe otra lógica. Paisajes desconocidos y fantásticos nos han remitido a piedras preciosas cuya superficie facetada nos inspiró para generar un sistema constructivo. Aquellas rocas que por dentro nos deslumbran con sus brillos y texturas acristaladas, como diamantes de otro planeta.
La alegoría de la “piedra preciosa” resultó impactando en decisiones creativas desde lo proyectual y lo constructivo, hasta en decisiones de branding/naming, incluso en los procesos de producción de los postres que se elaboran sobre placas de granito a temperaturas bajo cero.
Tradujimos esta idea en un sistema constructivo a través de un material que nos permitió moldear estas figuras facetadas, sin recaer en la literalidad de materiales pétreos. Buscábamos expresar una homogeneidad a través de una superficie continua de elementos que compongan una cascara diamantada, lográndolo mediante la repetición de tejuelas metálicas tratadas.
La propuesta es expresiva y a la vez sintética, es decir, propone un formalismo inquietante desde su silenciosa mono-materialidad. La construcción de un anexo en doble altura (que genera la verdadera espacialidad de la cremería) se adosa a la casa original logrando que ambos elementos convivan de manera respetuosa y armónica. La nueva estructura diamantada dialoga morfológicamente con los tejados inclinados típicos de un chalet del siglo XX.
La implantación de este anexo incorpora dos mansardas por dentro y una tercera por afuera, la cual responde a las exigencias de código de ventilación e iluminación del municipio. Motivo por el cual la cubierta modifica considerablemente su recorrido de abajo hacia arriba, permitiendo la ventilación e iluminación necesaria. Como resultado nos encontramos con una cubierta muy plástica desde su geometría. En el nivel cero construimos una pieza de hormigón sobre la cual, a modo de basamento se apoya toda la cubierta fusionándose bajo una configuración morfológica similar.
Creamos un sistema compositivo de triángulos y/o superficies facetadas que se ven reflejados en varios elementos diseñados particularmente a lo largo de todo el proyecto. Desde las aberturas en la edificación existente en las zonas de producción hasta la cubierta del anexo permitiendo el paso de luz de forma tamizada. A su vez esta misma geometría compone la estructura metálica del sistema de iluminación general asi como el diseño de solados exteriores en premoldeados de hormigón. Todo confluye en un mismo criterio compositivo.
La propuesta general interior está determinada por elementos del imaginario estético nórdico, como son por ejemplo los tapizados de cueros y pieles, muros revestidos en madera natural y mármoles claros. Todos ellos materiales nobles y en tonos monocromáticos generando sin mayor dificultad una perfecta integración entre el mundo onírico-fantástico y el sistema compositivo que hemos creado.
El programa de necesidades del cliente ha sido muy riguroso. La superficie destinada a las aéreas de elaboración del producto cubren casi el 50% de la superficie total de la obra, dividida en dos niveles y con dobles circulaciones para asegurar el uso perfectamente diferenciado entre las zonas públicas y las privadas.
Publicación de obra / Nacional e internacional
Archidiaries
India
Mayo 2024
Ver publicación >>
Clarin arquitectura n*926 Argentina
Mayo 2020
Ver publicación >>
Entrevista Los Destacados
Argentina
Diciembre 2019
Ver publicación >>
Cheff & Hotels
Chile
Noviembre 2019
Ver publicación >>
L’archi n*283
Francia
Noviembre 2018
Ver publicación >>
Summa n*165
Argentina
Julio 2018
Ver publicación >>
Interior Design
China
Mayo 2018
Ver publicación >>
Living n*120 Argentina
Abril 2018
Ver publicación >>
UK
Feb 2014 - Jul 2014 - May 2017
Ver publicación >>
Soler 5130 1° B
Código Postal ( 1425 )
Buenos Aires, Argentina
+54 (11) 4773 8658 ( ARG)
+1 (305) 851 3565 ( USA )
客服
消息
收藏
下载
最近



















