查看完整案例

收藏

下载
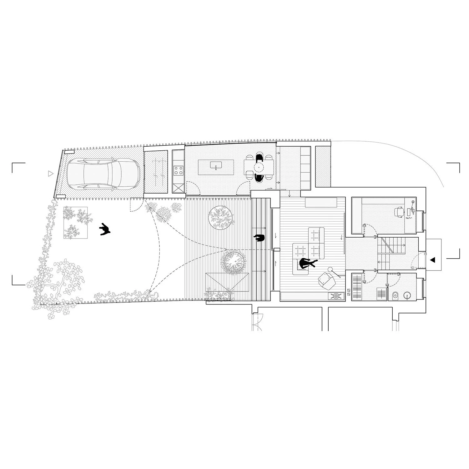
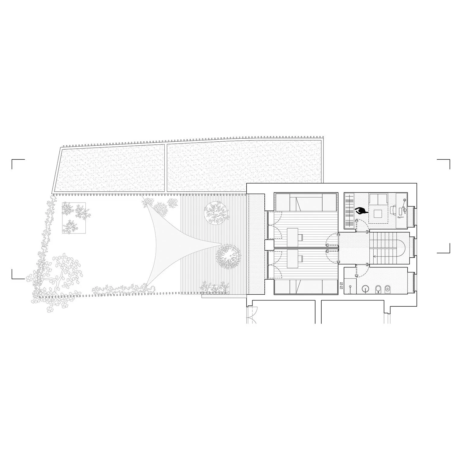
House with the garden
The project is divided in two interventions to solve the new living space. On one side, the existing building is completely refurbished, and on the other, a new extension is designed to contain the kitchen, dining space and garage. This new space is open to the private garden, generating a dialogue between the three volumes.
location: Ljubljana, Slovenia
project date: 2010 – 2011
completion date: 2017
area: 74 m2
type: residential
client: private
source: commission
photos: Flavio Coddou,
Flavio Coddou Photography
project team: Aljoša Dekleva, Tina Gregorič, Martina Marčan, Tea Smrke, Vid Zabel
客服
消息
收藏
下载
最近




















