查看完整案例

收藏

下载
Medium size home 27
Horizontal Tabs
Overview
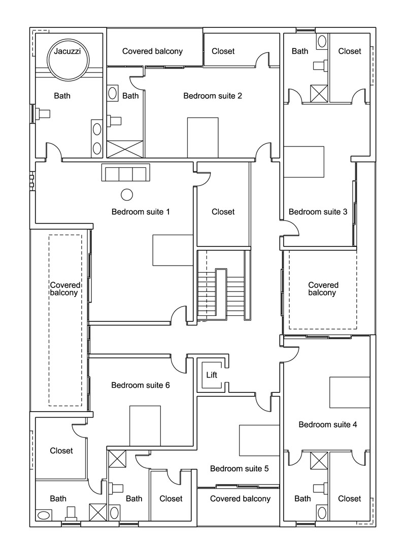
6 bed / bath contemporary home in modernist style. Ground floor ancillary spaces includes a triple garage, home gym, maid’s room and home bar, while upstairs bedroom suites lead out onto deep recessed, covered balconies at front and rear. All full height glazing is shaded to avoid excessive solar insolation in hot, sunny climates. Images show the design finished in fair faced concrete.
Medium size homes
Price: £1,250.00
Rate this:
Plan layouts
Ground Floor plan:
First Floor Plan:
Specification
Frontage width: 26.00m
Usable floor area: 638.18m2
Footprint area: 468.00m2
Recommended minimum site width: 30.00m
Room areas
Bedroom 1: 90.42m2
Bedroom 2: 49.45m2
Bedroom 3: 46.02m2
Bedroom 4: 43.08m2
Bedroom 5: 36.59m2
Bedroom 6: 43.43m2
Kitchen: 29.18m2
Lounge: 51.85m2
Dining room: 27.95m2
Reception: 43.03m2
Garage: 61.72m2
Utility room: 10.88m2
Gymnasium: 22.55m2
Maid’s room: 21.45m2
Home bar: 13.85m2
Interior renders
客服
消息
收藏
下载
最近
















