查看完整案例

收藏

下载
Le Penhuel et Associés 建筑事务所在法国Tremblay-en-France完成了Simone Veil学校综合体。该项目体现了事务所在应对气候紧急背景下,对教育空间进行可持续转型的设计理念。该创新性项目拒绝标准化模式,并重新诠释了“学校之家(school house)”这一概念,于今年11月荣获2025年法国Équerre d’Argent建筑奖。
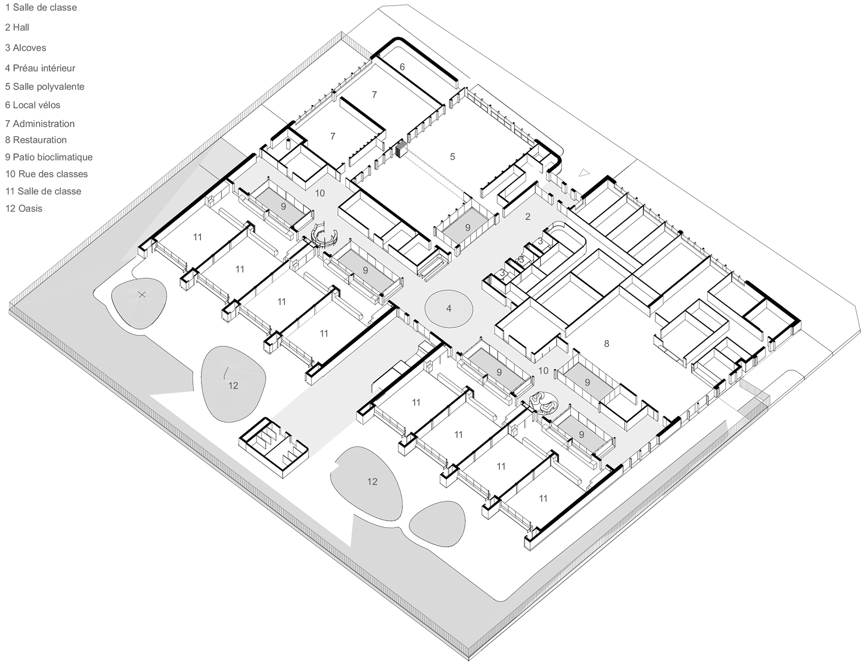
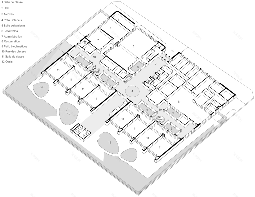
▼ 总体轴测图,General axonometric drawing © Le Penhuel & Associés
Le Penhuel et Associés has completed the Simone Veil school group in Tremblay-en- France (France). This facility embodies the firm’s approach to sustainably transforming educational spaces in response to the climate emergency. This innovative project, which avoids standardization and reinterprets the concept of the “school house,” won the Équerre d’argent 2025 Prize this November.
▼ 建筑正立面概览,Building front facade overview© Vladimir de Mollerat du Jeu
▼ 建筑正立面近景,Building front facade close view© Vladimir de Mollerat du Jeu
▼ 建筑侧立面概览,Building side facade overview© Vladimir de Mollerat du Jeu
▼ 建筑侧立面近景,Building side facade close view© Vladimir de Mollerat du Jeu
项目位于城市南侧一片安静的独立住宅区内。学校综合体包含八间教室、一间多功能厅、学校餐厅、行政办公区以及一套看护人员住宅。屋顶设置了一处运动场,并与社区协会共享使用。市政府的初衷是以扩展后的教学空间与公共区域,取代传统意义上仅在课余时间使用的“课外活动中心”。因此,学校内的所有空间如今均由小学与幼儿园儿童共同使用。项目目标是在保持建筑面积不变的前提下,营造一个更加宽敞、舒适且具有高度可变性的教学环境。
Located in a peaceful zone of detached homes on the south side of the municipality, the Simone Veil school group possesses eight classrooms, a multipurpose room, a school restaurant, an administration area, and a flat for the guardian. On its roof, a playing field is shared with neighborhood associations. The city’s proposal aimed to replace the traditional ‘leisure centre’ concept, which welcomed children outside school hours, with expanded classes and common areas. Consequently, all school areas are now shared between pupils and preschoolers. The goal was to maintain the same floor area while creating a more spacious, comfortable, and modular facility.
▼ 主入口,Main entrance© Vladimir de Mollerat du Jeu
▼ 室内概览 ,Interior overview© Vladimir de Mollerat du Jeu
▼ 俯瞰屋顶,Aerial view of rooftop© Vladimir de Mollerat du Jeu
▼ 屋顶运动场外观,Rooftop playing field exterior© Vladimir de Mollerat du Jeu
▼ 屋顶运动场室内,Rooftop playing field interior© Vladimir de Mollerat du Jeu
共用空间的居住化
INHABITING COMMON AREAS
学校的门厅位于整个建筑的核心位置,沿南北向布置,贯通整个校园并延伸至操场。它不仅仅是一个公共交通空间,更被设计为一个真正的“生活空间”,能够容纳多种形式的学习与交流活动。三个组织方式各异的壁龛空间,拓展了使用的可能性,鼓励并支持多样化的学习方式。
The school’s lobby occupies the heart of the institution. Oriented north-south, it serves the entire establishment up to the playground. More than a simple public area, it was designed as a genuine living space conducive to all forms of learning and exchange. Three alcoves, with varied organisation, increase possibilities of appropriation and encourage and enable diversified methods of learning.
▼ 门厅,Lobby © Vladimir de Mollerat du Jeu
“教室街道”自东向西贯穿整个建筑,形成另一条组织学校空间的主轴线。该轴线被室内活动空间分为两段,每一段均布置四间教室及其对应的庭院。每间教室入口处均设有前厅/衣帽间,并配备游戏架,可作为教学或娱乐使用。
The classrooms’ street crosses through the entire facility from east to west, forming another axis structuring the school. Split in two by the interior play area, each part of the axis is embellished with four classrooms and patios. There is a vestibule/cloakroom at each classroom entrance and stands for games, which can be used for pedagogical or playful purposes.
▼ “教室街道”,The classrooms’ street © Vladimir de Mollerat du Jeu
在两条空间主轴的交汇处,一个大型室内活动空间构成了学校真正的核心区域,大大拓展了空间的使用可能性。该多功能空间在早晚时段可用于迎接幼儿园儿童,同时补充多功能厅和体能活动室的使用。在强降雨天气下,它作为室外操场的延伸使用,同时也可承载展览与演出活动。
At the intersection of the two axes that structure the school, a large interior play area serves as the genuine central area of the establishment, increasing the number of possible uses. This multi-purpose space can be used in the morning and evening to welcome preschoolers, in addition to the multi-purpose rooms and motricity rooms. In case of heavy rain, it complements the exterior playground but also hosts exhibitions and shows.
▼空间主轴交汇处,Intersection of the two axes© Vladimir de Mollerat du Jeu
▼ 室内活动空间,Interior play area © Vladimir de Mollerat du Jeu
多功能教室
MULTI-PURPOSE CLASSROOMS
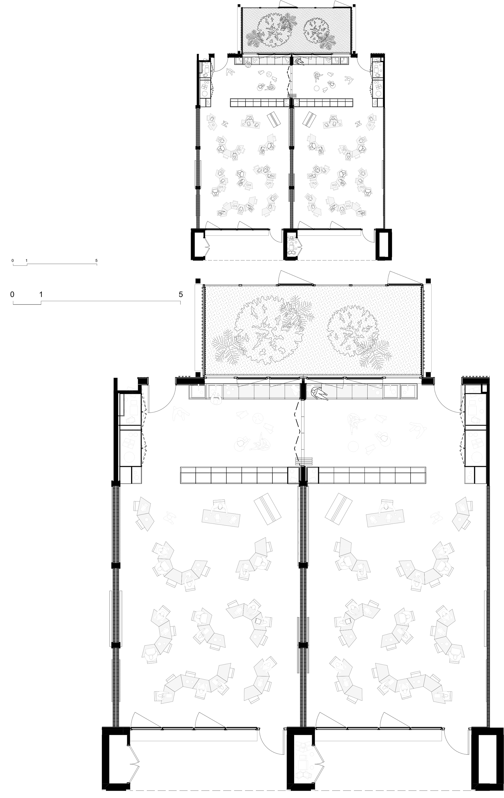
双朝向教室享有多重自然采光来源及良好的通风条件。其北侧面向庭院,南侧朝向操场,使同一教室内部呈现出不同的空间氛围。北侧在庭院采光的映照下,由两间教室共享的木质空间营造出安静、平和的学习区域;南侧则面向操场,体量更大,更具集体属性。每间教室还配备一处“私密”的游戏空间,面向“公共”操场。该遮蔽空间改善了室内外之间的流线关系,成为教室的自然延伸。位于南侧、由一排树木遮荫的操场由幼儿园与小学共同使用,形成一处真正的绿色场所,是儿童探索自然与进行户外活动的理想环境。屋顶设置了一处生物多样性空间,进一步完善了学校的室外活动体系。该区域包括种植蔬菜的花箱及大型野餐桌,有利于开展与自然相关的教学活动。运动场亦可在课间使用,鼓励学生参与体育活动。
▼ 教室轴测图,Classroom axonometric drawing © Le Penhuel & Associés
The dual-aspect classrooms benefit from multiple sources of natural light and very good ventilation. Their positioning between patios to the north and the school playground to the south ensures different ambiances in the same classroom. To the north, with light pouring in from the patio, a shared space built of wood between two classes creates a peaceful and calm area. To the south, the largest volume of the classes directly overlooking the playground is more collective. Each classroom also benefits from a ‘private’ play area overlooking the ‘common’ playground. This shaded area improves flows between the interior and exterior, becoming a real extension of the classrooms. The playground, situated to the south and shaded by a line of trees, is shared between kindergarten and elementary classes. A genuine green setting, it is an ideal framework for the discovery of nature and outdoor games. A space dedicated to biodiversity, laid out on the roof, completes the exterior spaces made available. It includes tubs for growing vegetables and large picnic tables, favoring teaching activities related to the natural world. Finally, the playing field will also be accessible during recreation times, thus encouraging the practice of physical activities.
▼ 多功能教室,Multi-purpose classrooms © Vladimir de Mollerat du Jeu
▼ 操场,Playground © Vladimir de Mollerat du Jeu
▼餐厅,Canteen © Vladimir de Mollerat du Jeu
▼共享休息室,Shared nap room © Vladimir de Mollerat du Jeu
尊重环境
RESPECTING THE ENVIRONMENT
作为一座学校建筑,其对环境的承诺理应清晰可见。这一原则贯穿于项目的材料选择与建筑运行方式之中。学校的承重石材立面取材自距离施工现场不足60公里的Bonneuil-en-Valois采石场。其厚度不仅保证了建筑良好的热惰性,也强化了体量雕塑感的表现。
By definition, a school building must make its commitment to the environment visible. This principle has been applied to the project in both the choice of materials and the functioning of the building. The school’s load-bearing stone façades come from the Bonneuil-en-Valois quarry, located less than 60km from the construction site. Its thickness ensures the building’s thermal inertia while enhancing the value of the facility’s sculpted volumes. Between the classrooms, mud bricks are added to the wooden structure, increasing the visibility of natural and bio-sourced materials in the building’s construction.
▼连廊,Colonnade © Vladimir de Mollerat du Jeu
▼ 石材立面与窗户细部,Stone facade and windows details© Vladimir de Mollerat du Jeu
在教室之间,夯土砖被引入木结构体系之中,进一步提升了天然材料与生物基材料在建筑中的可见度。庭院在公共空间中起到点缀与节奏组织的作用,使项目内所有空间均享有良好的自然采光、新鲜空气与舒适湿度。庭院的布局使为儿童设计的所有空间以及公共区域均可实现自然通风,从而真正转化为可被“居住”的场所与学习空间。运动区域屋顶安装了光伏板,其发电量超过建筑自身的能耗需求。其余屋顶则进行绿化种植,不仅提升了建筑的热工性能与雨水滞留能力,也为周边居民提供了宜人的景观视野。
The patios embellish and punctuate the common areas to the extent that all the spaces of the project benefit from very good natural lighting, fresh air, and comfortable humidity. Their placement naturally ventilates all the areas designed for children, as well as the common areas, which can then become genuine inhabited places and learning areas. The roof of the sporting area is equipped with photovoltaic panels producing more energy than the building consumes. The rest of the roof is planted, which improves thermal performance and total rainwater retention, while also providing inhabitants of the neighborhood with attractive views.
▼庭院,Courtyard © Vladimir de Mollerat du Jeu
▼走廊转角处,Hallway corner © Vladimir de Mollerat du Jeu
▼阅读角,Reading corner © Vladimir de Mollerat du Jeu
▼ 构造与装饰细部,construction and decoration details© Vladimir de Mollerat du Jeu
▼ 正立面夜景,Front facade night view© Vladimir de Mollerat du Jeu
▼ 运动场夜景,Rooftop playing field night view© Vladimir de Mollerat du Jeu
▼ 首层平面图,Ground floor plan© Le Penhuel & Associés
▼ 二层平面图,Second floor plan © Le Penhuel & Associés
▼ 教室空间放大平面,Zoomed classroom plan © Le Penhuel & Associés
▼ 剖面图,Sections© Le Penhuel & Associés
▼ 体育馆北立面构造详图 1:30
North façade detail of the gymnasium 1:30 © Le Penhuel & Associés
▼ 教室雨棚构造详图 1:20,Classroom canopy detail 1:20 © Le Penhuel & Associés
▼ 多功能厅构造详图 1:20,Multipurpose hall detail 1:20 © Le Penhuel & Associés
Client: City of Tremblay-en-France
Architects: Le Penhuel & Associés (Mandataire), Nebbia (Landscape architect), Emenda (sustainability / Environmental Engineering Consultant – HQE), Batiserf (Structural Engineering Consultant), BMF (Cost Consultant), Ergo Zen (Ergonomist), Impédance (Acoustic Engineering Consultant), ATEC (Cuisiniste)
Programme: School complex (8 classrooms) with innovative teaching methods and a sports hall shared with the city
Location: Tremblay-en-France (93)
Surface de plancher: 2400 m2 et 2330 m2 d’espaces extérieurs
Budget: 10 M €
HQE: Matériaux géo- et bio-sourcés (Structure bois, briques de terre crue, pierre porteuse), RE2020, BEPOS, E4C1
Date de livraison: 2025
Équipe projet: Warren Lepolard, Ersi Hoxha, Philippe Souaid
客服
消息
收藏
下载
最近

























































