查看完整案例

收藏

下载
Ë_245B Ë_245B
Un bungalow lumineux au style scandinave intemporel
Découvrez un bungalow d’exception, où chaque détail a été pensé pour allier confort, simplicité et esthétisme. Le corps central de la maison, mis en valeur par un plafond cathédrale, inonde le séjour et la chambre principale de lumière naturelle, amplifiant la sensation d’espace et d’ouverture.
Un intérieur en continuité avec l’extérieur
La cuisine et la salle à manger, connectées avec fluidité, s’ouvrent sur une vaste terrasse couverte. Cette transition douce entre intérieur et extérieur crée un lieu de vie harmonieux, où la nature devient partie intégrante du quotidien.
Avec ses deux chambres au rez - de - chaussée, cette version réinterprèté le bungalow classique avec une touche de modernité. L’aménagement privilégie la fonctionnalité, la clarté des volumes et une ambiance apaisante, fidèle aux codes du style scandinave.
Pensé pour répondre aux besoins d’aujourd’hui, ce concept propose une maison élégante, équilibrée et durable, où il fait bon vivre au rythme de la lumière et des saisons.
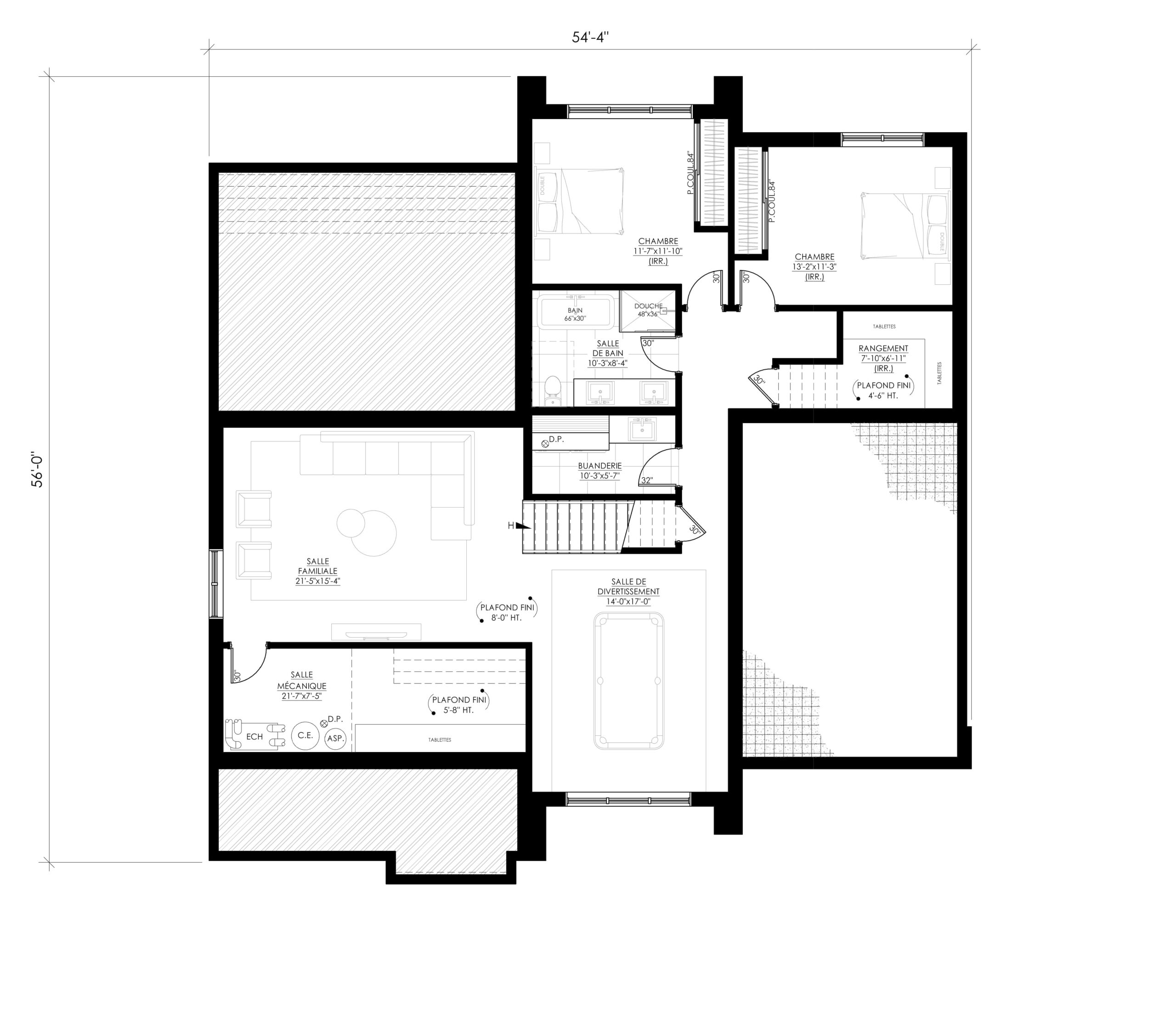
Superficie 1690 pi2
Chambre 2
Garage Oui
Salle de bains 1.5 et +
Étages 1
Coût de const. 495 000 $ à 618 000 $
Galerie photos
Ë_245B Présentation
Cuisine
Cuisine
Cuisine
Salle à manger
Salon
Salon
Salon
Salle à manger
Chambre à coucher
Salle de bain
Salle de bain
Salle de bain
Entrée
Arrière
Façade
Plan
Ë_245B
Inversé
Réalisations
Présentation Ë_245B
Salle à manger
Salon
Salon
Cuisine
Salle à manger
Salon
Cuisine
Salon
Chambre à coucher
Chambre à coucher
Salle de bain
Salle de bain
Salle de bain
Arrière
Façade
Ë_245B Présentation
Cuisine
Cuisine
Cuisine
Salle à manger
Salon
Salon
Salon
Salle à manger
Chambre à coucher
Salle de bain
Salle de bain
Salle de bain
Entrée
Arrière
Façade
Présentation Ë_245B
Salle à manger
Salon
Salon
Cuisine
Salle à manger
Salon
Cuisine
Salon
Chambre à coucher
Chambre à coucher
Salle de bain
Salle de bain
Salle de bain
Arrière
Façade
Variante du plan Ë_245B
Voir en détail Ë_245A Ë_245B
2 975 $
Modification de plan
Tous les plans sont modifiables.
Vous avez des questions? Consultez la FAQ
Variante du plan Ë_245B
Voir en détail Ë_245A
客服
消息
收藏
下载
最近






















