查看完整案例

收藏

下载
Parsonson Architects Ltd.
181 Cuba Street
Te Aro, Wellington, 6011
New Zealand
+64 4 384 2969
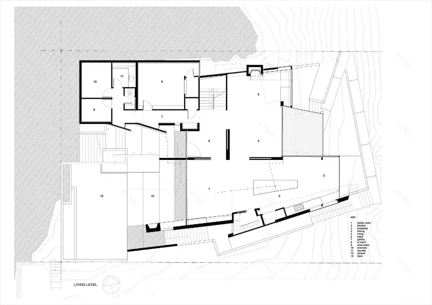
Sea View House 2012
The site sits just below the road facing east, looking across the botanical gardens out to Wellington Harbour.
The new house accommodates a large family of different age groups over 3 levels, with parents and younger children’s bedroom upstairs, older children’s bedrooms and a swimming pool on the bottom level and a variety of living spaces in between on the middle level, laid out to capture views and all day sun.
Two main gestures set up the structure of the house; outer sections of pitched corrugated iron roofs wrap and frame the house, these fit within the building envelope and create a relationship with the existing houses of the area, while a flat roofed lightly shaped wooden clad element running between the pitched roofs houses the garage, bedrooms and pool. The relationship between these two gestures creates varying geometries and spaces with differing characters, materials and levels of light.
Photography - Paul McCredie
Awards: NZIA Local Award for Architecture - 2014, HOME Magazine Home of the Year Shortlist 2013
客服
消息
收藏
下载
最近





























