查看完整案例

收藏

下载

翻译
Architects:DB Studios,Modative Design Studio
Area:55000ft²
Year:2025
Photographs:Visual Narratives
Manufacturers:Chawla Aluminium,Space Frame
Lead Architects:Mohammad Saifullah Siddiqui, Mohtasim Rehman, Zaigham Khurshid
Structure Design:Engineering & Services Design
Landscape Architect:Israr & Associates Landscape Architecture Practice, Mian Israr Ahmed
Contractor:Khalid & Co
Category:Industrial Architecture,Renovation
Design Team:Zainab Farooq
Draftsman:ShanZaib
Frames:Jazari Steel
City:Islamabad
Country:Pakistan
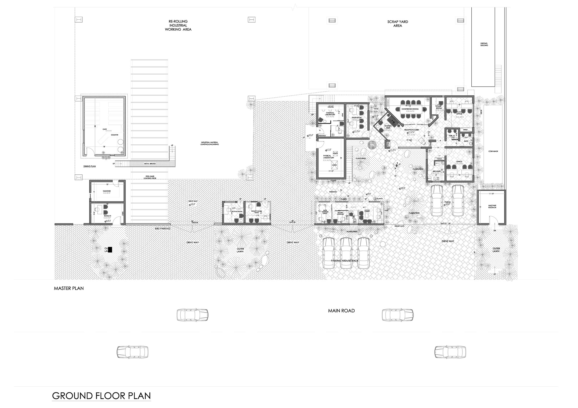
Text description provided by the architects. The Karachi Steel project reimagines a conventional industrial warehouse into a bold statement of brand identity. By using observation as the design approach, the real revealing challenge was not just to refurbish the structure but to redefine how the steel industry is perceived within its industrial setting, which presented a dense environment of noise, soot, and dust.
The building's corrugated façade with the space frame, making the entrance a striking vestibule, became the key to the refurbished structure's design language. Hovering over the existing grey volumes, which helps in creating a dynamic play of light and shadow while embedding the strength of steel into the architecture, the Karachi Steel building redefines the connection of the users with not just the process of steel production visually, but with the idea of conceiving space associated with such a tedious process. The joinery details and the geometry of the space frame vestibule at the entrance add both function and intrigue, offering a transition from the noisy, dusty environment into a harmonious workspace.
The harmonious workspace is further enhanced with the aid of landscape design. This design feature in a steel warehouse plays an equally vital role in the design of Karachi Steel. To declutter the visual and literal noise of the industrial site, pockets of greenery, within refurbished containers fitted with large windows to maximize daylight, are introduced as buffer zones within the building. These green spaces not only add contrast but also create continuity between the exterior and interior, softening the industrial context and its usability.
Inside, the office spaces were reimagined as open, brightly colored, well-lit, and inspiring spaces, distinct from conventional corporate environments, thereby shaping an atmosphere of creativity and collaboration. Programmatic moves such as relocating the existing mosque to unify staff and workers, despite giving the two users separate access, strengthen the connectivity and shared identity that this project aspires to achieve.
The result is a warehouse that ages gracefully, celebrates the materiality of steel, and transforms industrial limitations into an architectural language of resilience and innovation.
Project gallery
客服
消息
收藏
下载
最近

























