查看完整案例

收藏

下载

翻译
Architects:Atelier Tom Vanhee
Area:383m²
Year:2024
Photographs:Filip Dujardin
Manufacturers:Duravit,Forbo Flooring Systems,Schluter,Delta Light,Franke,Ideal Standard,MDB metal,Novy,Siemens,Smeg,TopCer,Zangra
Lead Architects:Tom Vanhee
Category:Houses,Renovation
Design Team:Atelier Tom Vanhee
Engineering & Consulting > Structural:De Clercq (ir Pieter -Jan De Clercq)
General Contractor:H.E.M.
City:Bruxelles
Country:Belgium
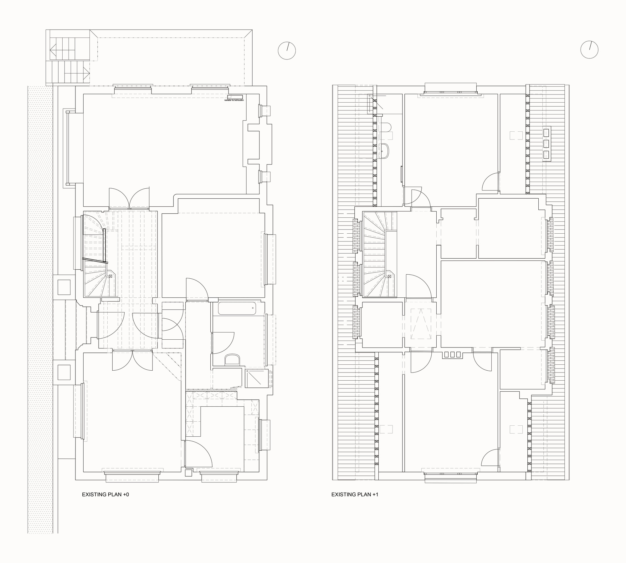
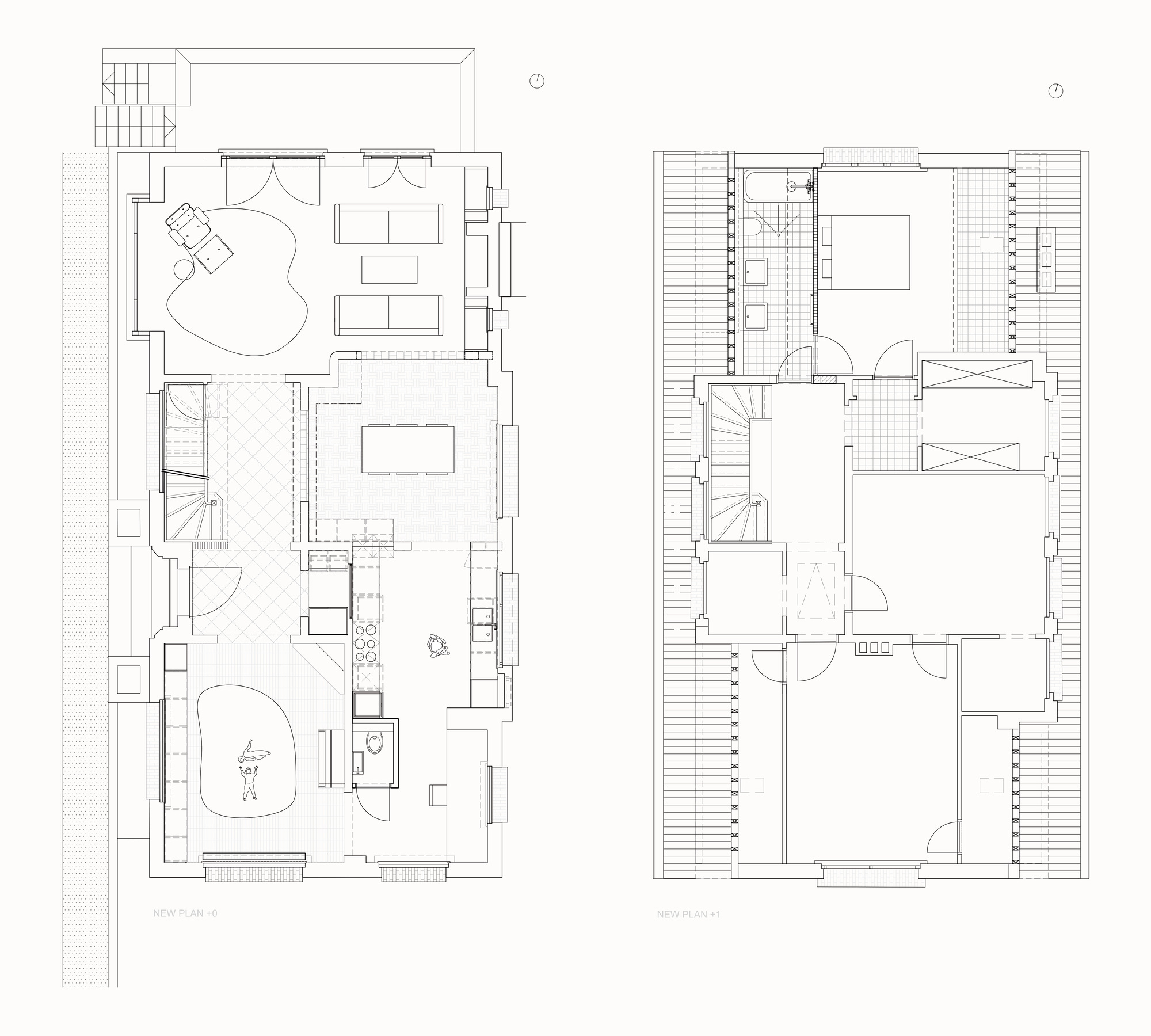
Text description provided by the architects. The renovation of the house in Brussels represents a thoughtful transformation of a traditional detached home into a vibrant and functional living space. Initially characterized by its small, dark rooms and disconnected layout, the house has an open, interconnected design that maximizes natural light and enhances everyday living.
The core of the renovation involved reconfiguring the interior to establish a seamless flow between spaces. Internal walls that once segmented the rooms were removed, creating an open-plan layout that connects the living areas more fluidly. This approach not only enhances the spatial experience but also fosters a sense of continuity throughout the home. The kitchen, which was previously isolated from the rest of the house, has been repositioned as a central hub of activity. With its new, strategically placed windows and an updated layout, the kitchen now serves as a welcoming space that integrates seamlessly with the living and dining areas.
Significant attention was given to improving natural light and energy efficiency. New windows with sleek gray aluminum frames were installed throughout the house, providing a modern aesthetic that complements the traditional elements of the building. These windows enhance both light incidence. The kitchen window is lowered to align with the countertop, allowing for optimal daylight and creating a more inviting cooking environment. In addition to enhancing light, the windows improve energy efficiency by replacing outdated single-glazed units with modern double-glazed versions. This upgrade is also impactful in the basement, where new windows and a durable metal door have replaced older, less efficient features.
The project also preserved and highlighted the home's structural framework. Exposing the original structural elements not only maintains the building's integrity but also creates a striking visual feature that guides the spatial flow. Custom-designed cupboards, which meander through the ground floor, provide both practical storage solutions and an aesthetic link between different areas of the home. This design choice enhances the home's functionality while adding a distinctive element to the interior.
Externally, the renovation made minimal changes, ensuring that the updated features harmonize with the home's original architecture. The gray aluminum window frames and carefully selected materials maintain a cohesive and elegant look that respects the building's historical character.
Overall, the renovation has transformed the house into a bright, functional, and energy-efficient home. By combining contemporary design elements with the preservation of original features, the project has created a living environment that is both inviting and practical, offering a renewed sense of openness and connection that enhances daily life.
Project gallery
客服
消息
收藏
下载
最近
























