查看完整案例

收藏

下载
建筑应当沉默,让光与风诉说。——安藤忠雄
“空,方能纳万物;静,始可生共鸣。”我们始终在关注私宅空间应该如何生长——它包裹着居者的念想、希冀、向美的追求,也携带着设计者的思考和符号。关于家,想象的模样很多,纷繁之后,它会安安静静落下,干干净净填满生命色彩。
设计师熊翔飞的新作《静奢白境》,跳脱出装饰的表象,再次回应着居住的本质——家,是向光生长的方向——光,不仅仅是实质的,亦是藏于心灵与精神深处的不灭的种子。本案从白色基底和几何美感出发,用一场关于光、风与呼吸的空间叙事,重新定义了别墅生活的深层可能。它不张扬,却极具力量;它看似简约,仍充满温度。
01推门入境,向光而生
一扇门,连接着内外亦分隔着两个世界;而家的故事,从我们推门走向玄关便开始了。
一道纯白的几何隔断,以利落之姿切割空间,像精心设计的扉页,为空间定下静奢基调。深色木质台面温润沉稳,透明花器中一枝绿意斜逸而出,在光与影的轻抚下摇曳生姿。
此时,玄关不止是一处物理的过渡区,更是一道精神的阈限——门外是尘世喧嚣,门内是心灵归处。玄关不语,却总是诉说着:欢迎回家,欢迎回到你的世界。
昏暗、压抑、缺少生机,往往是人们对地下室的刻板印象。而在这个家中,设计师却将它视为一场“向光而生”的实验起点。
巧妙设置的双采光井,像天空赠予的礼物。一处引入客厅上空,挑高的处理让光线如瀑倾泻;另一处轻盈洒入茶室与餐厅,形成自然的光影节奏。新风系统为这里注入了山间般的清新空气,让每个角落都能够真实地“呼吸”。
风与光携手,彻底打破地下层的先天局限,将这里转化为一个明亮、通透、可与自然对话的“地上式”生活场,成为可以阅读、品茗、冥想或家庭聚会的活力中心——一处真正“活过来”的精神绿洲。
客厅延续极简的笔触,挑高的格局让空间更显开阔。大幅抽象画以黑、白、灰的韵律呼应整体,壁炉里跳动的火焰,则在冷静的调性中注入一丝温暖的生气。这里的一切都在欢跃“生活的影子就是最美的装饰”。
02层叠而上,上下求索
连接地下与地上的,是被赋予美学的楼梯。它不仅是垂直的通道,也是各个空间与人互动的桥梁,更是空间叙事中承上启下的诗行。
大理石的厚重与玻璃扶手的轻盈,在光影中形成独特的节奏。行走其间,仿佛步入一场光的仪式;拾阶而上,从地下室的明亮宁静,迈向更开放的生活场景。
开放式的餐厨区以纯白为基调,将电器与收纳隐于无形。中岛台是家的中心舞台,烟火与静谧在合奏——一人食时的安静专注,家人团聚时的温暖欢笑——生活秩序油然而生。一束绿植、一件花器,让烹饪的日常升华为充满仪式感的美学体验。
会客厅以“于从容处见诗意”的姿态铺陈开来。大理石背景墙宛如水墨长卷,天然纹理中暗藏山水意境;木质以温润弧线包裹石质的清冷,刚柔相济间尽显东方哲思。弧形沙发围合出静谧场域,同色地毯如云朵漂浮蔓延。通透窗景将室外绿意与天光引入室内,树影婆娑成为空间最生动的画卷。
滑动看更多
03安放身心之归处
所有的动线都导向最私密又自由的一站——卧室,身体与精神彻底放松的场域。白墙与原木对话,织物与光影共舞,共同构筑了一个温柔的庇护所;这里没有复杂的造型,也没有喧哗的色彩,只有窗外隐约的树影,和居者均匀的呼吸声。设计悄然退隐,将舞台完全交还给睡眠、休憩与私密的情绪。
从玄关的诗意启程,到地下室的明亮重生,经楼梯的艺术串联,再到客餐厨的烟火温情,最终归于卧室的静谧安宁——这个家似乎拥有自己的呼吸节奏。
熊翔飞以极简为形,以光、风、自然为魂,将技术隐于美学之后,没有多余的语言,只有轻柔自在的状态——而家的本质正如此,让身心自然呼吸、从容生长。
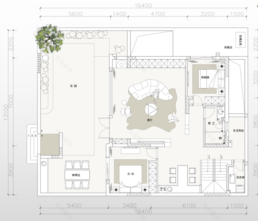
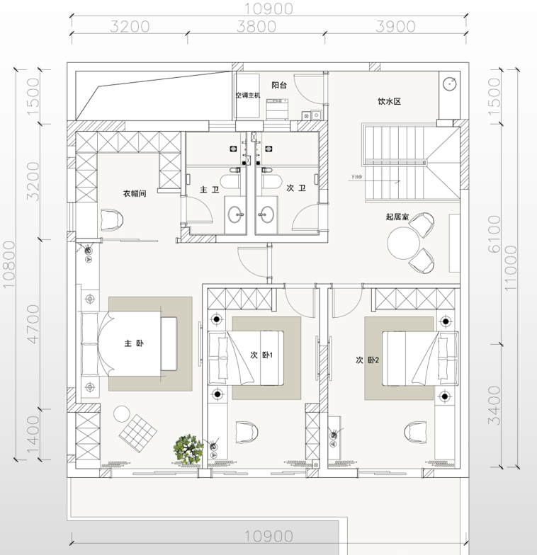
滑动看平面图 | -2F/-1F/1F/2F
项目资料
项目名称 | 静奢白境
项目地点 | 重庆市两江新区 北大资源
设计机构 | 重庆威尼设计
主案设计 | 熊翔飞
参与设计 | 朱婷婷
项目面积 | 450m²
工程造价 | 300w
项目摄影 | 李亚星
完工时间 | 2025年
主要材料 | 汉斯格雅、杜拉维特、和致照明、钵镁世家等
熊翔飞
重庆威尼设计 创始人/设计总监
熊翔飞
从业24年,始终秉持【设计源自生活,源于对生活品质的追求,源于生活经验的积累】,为不同的客户营造属于她们的理想之家。
公司主要服务范围:硬装设计 / 软装设计 / 全案设计
部分荣誉奖项
2025 金住奖 重庆十大居住空间设计师
2024 金堂奖 杰出住宅公寓设计
2023 HCA高定家居设计“百杰设计师”
2023 京东设计大赛“住宅空间设计TOP100”
2023/2022 CIFF设计千人计划 入选设计师
2022 室内ID C “绿色住宅空间设计奖”
2022 中国大宅设计重庆影响力人物
2022 “绿色设计奖-中国2022年室内设计年度评选”重庆站推广大使
2021 GRP 中意国际金指奖
2020 创意双城2020创意生活设计金蝴蝶奖
2020 “自然 共生”G 设计精英大赛 佳作奖
2020 华语设计领袖榜2020年度百位卓越设计人物
2019 M 设计大赛佳作奖
2029 RIDA国际设计三等奖
2019 40UNDER40中国(重庆)设计杰出青年
2019 IDS国际设计先锋榜 铜奖
点击查看其他作品
照母山舜山府
九里晴川
480㎡新东方韵味空间
延伸阅读
首发 X 张人月 |
首发 | 空气墙:光的再生成
首发 | 阿布:摇滚空间
首发 X 汤会|江山樾
首发 X 杨佼佼 | 妙改!两套房变大平层
资料 | 重庆威尼设计
编辑 | Wendy
《DESIGNER设计师》杂志
设计师DESIGNER
我们独立报道:活动 | 作品 | 艺术 | 人物
客服
消息
收藏
下载
最近
















































