查看完整案例

收藏

下载

翻译
Architects:BIOSIS
Area:15000m²
Year:2025
Photographs:Elisabeth Heier
Category:Commercial Architecture,Shopping Centers
Office Lead Architects:Mikkel Thams Olsen, Morten Vedelsbøl
Design Team:BIOSIS
City:Bergen
Country:Norway
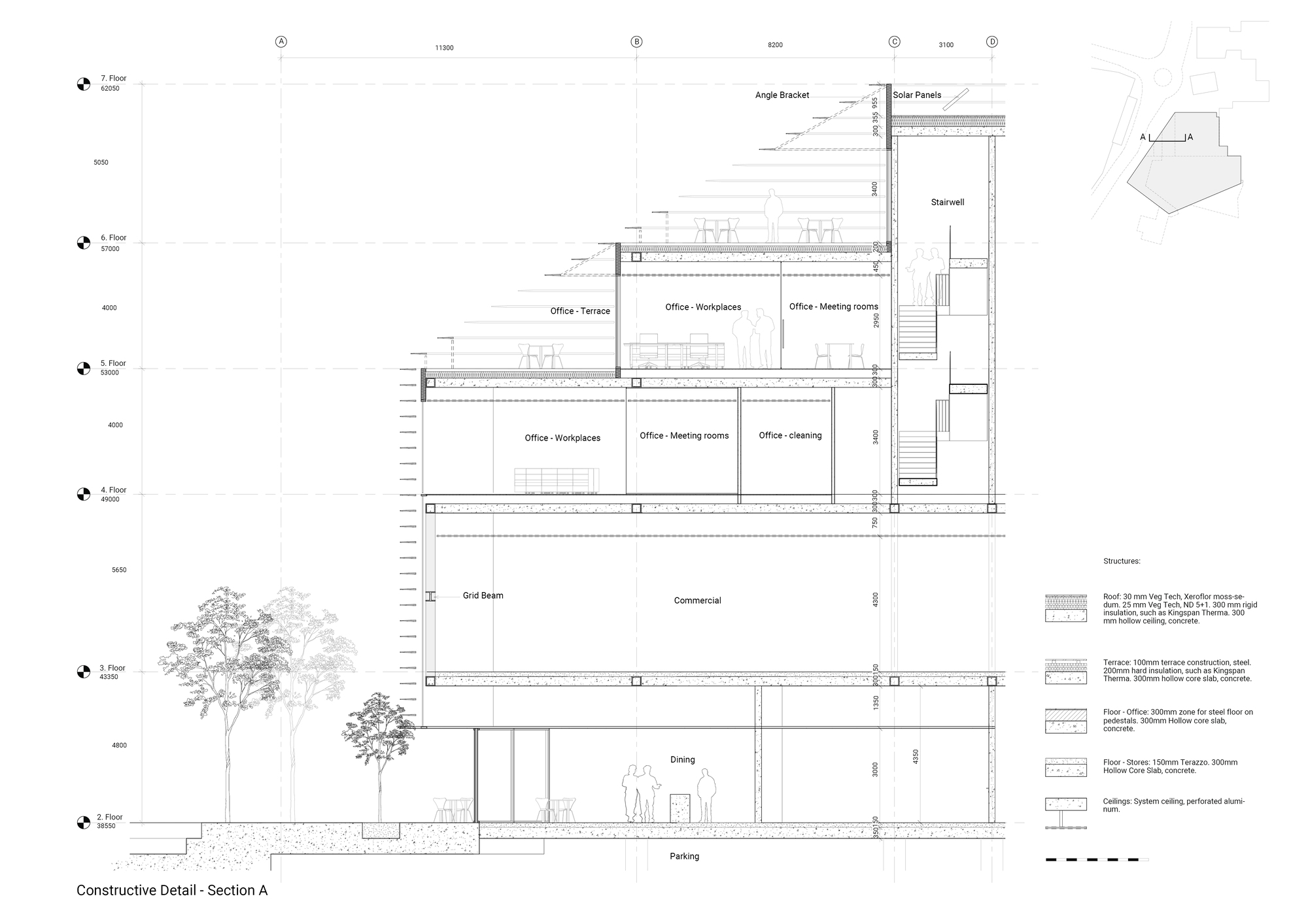
Text description provided by the architects. In Bergen - one of Europe's rainiest cities - Copenhagen-based BIOSIS has completed Lagunen II, a climate-adaptive, community-focused expansion of Norway's largest shopping centre. The 15,000-square-meter extension redefines the role of the contemporary mall by transforming it into an open, light-filled urban environment shaped directly by the coastal climate and the daily rhythms of its surrounding neighborhood.
Rather than treating weather as a constraint, BIOSIS uses Bergen's rain as a generative design driver. A bold cantilevered roof forms the project's architectural signature: a sweeping canopy that shelters public space while its warm timber soffits cast a soft glow outward into the city. The structure creates a protective microclimate that allows street life to thrive even during long periods of rain, turning a challenge into an atmospheric asset. Transparent façades, deep overhangs, and porous ground-floor frontages dissolve the traditional barrier between inside and outside, inviting residents and visitors to flow naturally through public squares, cafés, and pedestrian streets.
At the core of the extension is a bright central atrium that pulls daylight deep into the building, ensuring generous natural illumination despite Bergen's low winter light. Around this atrium, the program is organized vertically: retail on the lower and middle floors - including Bergen's first Zara store - restaurants and cafés at street level, and flexible office environments on the upper levels. These light-filled workspaces balance openness and privacy while maintaining a strong connection to the activity below, supported by shared amenities that encourage cross-program interaction throughout the day.
The result is a destination that moves beyond conventional retail typology. With workplaces, hospitality, dining, and leisure integrated into one coherent framework, Lagunen II functions as a lively mixed-use anchor for the surrounding residential district. Its design supports activity from morning to evening, making the building an essential part of local daily life rather than a standalone commercial object.
Climate responsiveness extends throughout the project. Horizontal aluminium fins - partially made from recycled materials - provide nuanced solar protection, while planted terraces and green walls enhance biodiversity and soften the large building mass. Light, air, and ecological performance are treated as equal priorities alongside programmatic needs. The project targets Energy Class A and BREEAM In-Use certification, reflecting its emphasis on long-term sustainability and operational resilience.
For Lagunen Storsenter's CEO, Knut Eliassen, the architectural approach reinforces the centre's social role: "Lagunen II had to do more than attract shoppers - it needed to contribute meaningfully to everyday life." With more than 200 businesses across the original mall and its expansion, Lagunen now welcomes over eight million annual visitors, strengthened by a new extension that positions the complex as both a regional destination and a community meeting place. Lagunen II offers a model for how large-scale retail environments can evolve in the face of shifting urban patterns and climate realities. By designing with weather instead of against it, BIOSIS proposes a more open, resilient, and socially rooted vision for the future of mixed-use architecture.
Project gallery
客服
消息
收藏
下载
最近





























