查看完整案例

收藏

下载

翻译
Многофункциональные офисные пространства для IT-компании
Год проектирования: 2024
Площадь общая: 320 м2
Местоположение: г. Санкт-Петербург
Команда проекта: дизайнер Ира Шестопалова, руководитель Роман Захаров
Архитектурное бюро ZARYA
Запросы от компании IT-специалистов поступали поэтапно. Первая задача дизайнеров стояла разработать мультифункциональное пространство (144 м2) для сотрудников, руководителей и приглашаемых специалистов.
Пространство, в котором можно:
- принимать спикеров и команду для прослушивания лекций
- отдыхать между задачами просто ничего не делая
- сидеть с ноутбуком, выбрав любую зону в качестве смены обстановки
- проводить координации между отделами
- по вечерам петь караоке и играть в настолки.
И кроме еще множества видов деятельности, разместить в помещении многочисленные награды компании - гордость и напоминание для коллектива о проделанной работе и тихая презентация для гостей.
Первое, что заложило основу для планировки - скругленная стена с окнами - идеально подходящая для создания амфитеатра для гостей лекций. Напротив - место спикера с размещением экрана.
Эта же зона в свободное время может использоваться как место для работы с ноутбуком или полноценной работы за столом. Для этого предусмотрены раскладные рабочие столы. Они прячутся в зону хранения.
По соседству - кофепоинт с высокой посадкой за коммунальным столом и вдоль окон. Здесь высота подоконников снова послужила нам на руку.
В линейке мебели спрятаны холодильник с напитками, кофемашина, а так же принтер и закрытые шкафы для хранения складной мебели.
Центральную зону заняла переговорная. Она же выставочная зона - сформирована частично глухой перегородкой, частично - стеклянной. И в дополнение - плотные шторы. Все, чтобы иметь возможность трансформации в зависимости от задач.
Нельзя не упомянуть несущую колонну, которую мы спрятали в мультимедийный цилиндр. А для выставки наград сформировали рядом витрины с подсветкой.
Вечерами за большим столом можно собираться компанией для игр.
Отдельного внимания заслуживает небольшое место уединения - темный уголок, решенный в едином терракотовом цвете: ковролин и звукопоглощающие панели. При желании, можно расслабиться на диване и полежать в наушниках с закрытыми глазами. Иногда бывает такая потребность в больших офисах.
Подобный функционал, но открытого типа размещен напротив амфитеатра: диван на несколько человек и кресла. В эту зону мы специально поместили домашний ковер, подвесные абажуры, торшер для отсылки к неформальному общению или отдыху. Внутри команды мы называли эту зону Квартирой.
Кресло ↓ Spun от Magis, в нем не только удобно, но и весело.
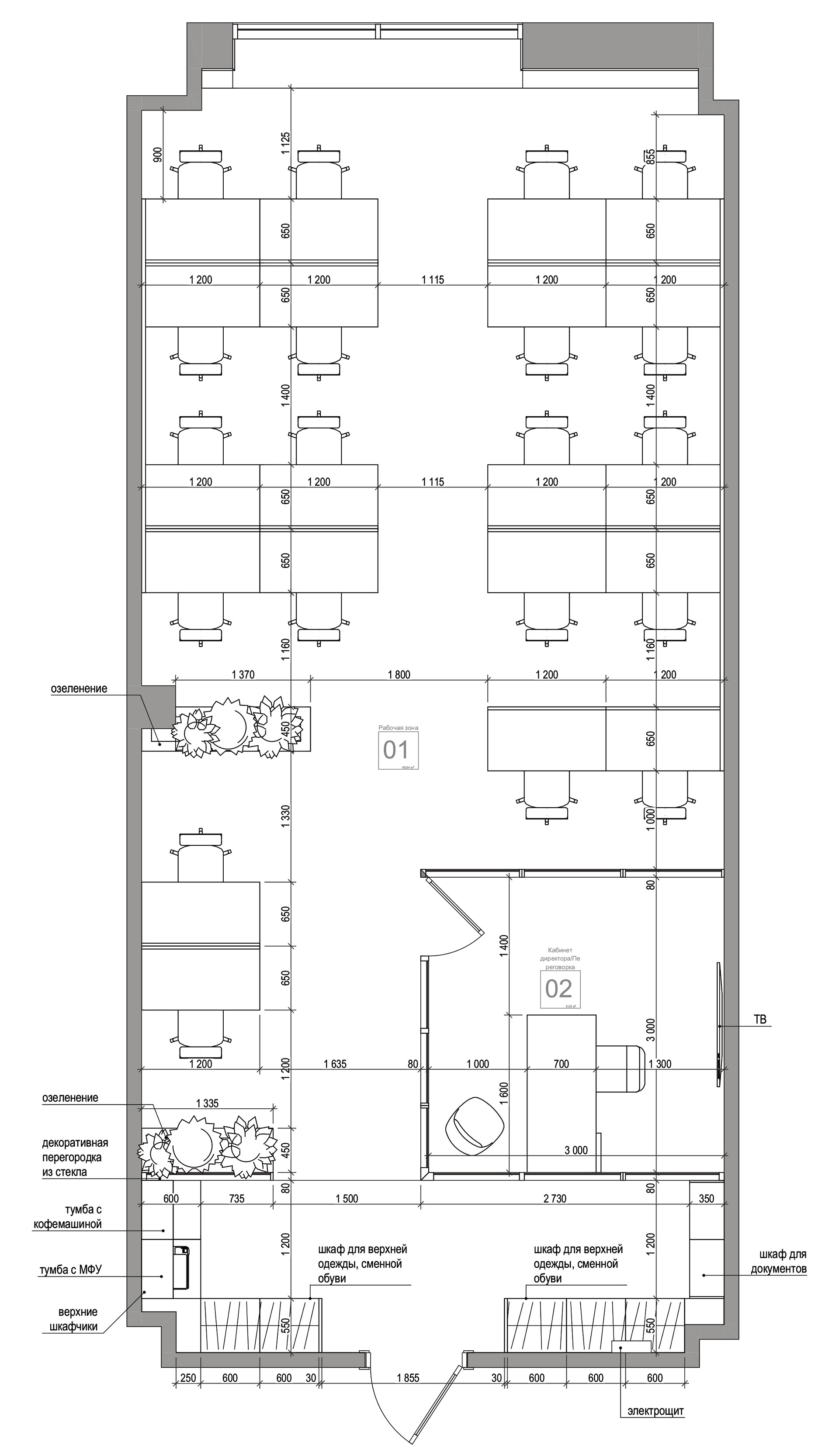
Второй крупной задачей была разработка офисного пространства одного из отделов компании. Грамотное размещение определенного количества рабочих мест и сопутствующего оборудования.
После согласования расстановки мебели, была определена цветовая гамма: спокойные нейтральные оттенки в сочетании с акцентным красным.
Входная зона послужила буфером между постоянным потоком сотрудников и рабочей атмосферой. Здесь мы разместили хранение для верхней одежды и личных вещей, кофепоинт, принтер и канцелярию. Блок отделили от рабочей зоны стеклянной перегородкой с градиентным стеклом.
Руководитель отдела занимает небольшой кабинет с гостевым креслом и экраном для презентаций.
Рабочие места компактные. Здесь продолжается визуальная акцентная линия на акустических перегородках и рабочих креслах.
По запросу от отдела мы предложили графический прием трансляции заслуг и наград коллектива. Стеновые рейки и черно-белая графика, отражающая начало пути, развитие отдела, историю коллектива, которую они могут пополнять каждый год.
Уже в процессе формирования интерьера заказчики попросили дать предложение на интеграцию их идейного борда. Ребята в команде создавали для себя заметки и обновляли их каждый квартал.
Вместо настенного декора нами была разработана подвесная панель в аналогичной цветовой гамме, на которую можно транслировать свои поставленные цели, решения, приоритеты, планировать встречи и отображать обратную связь.
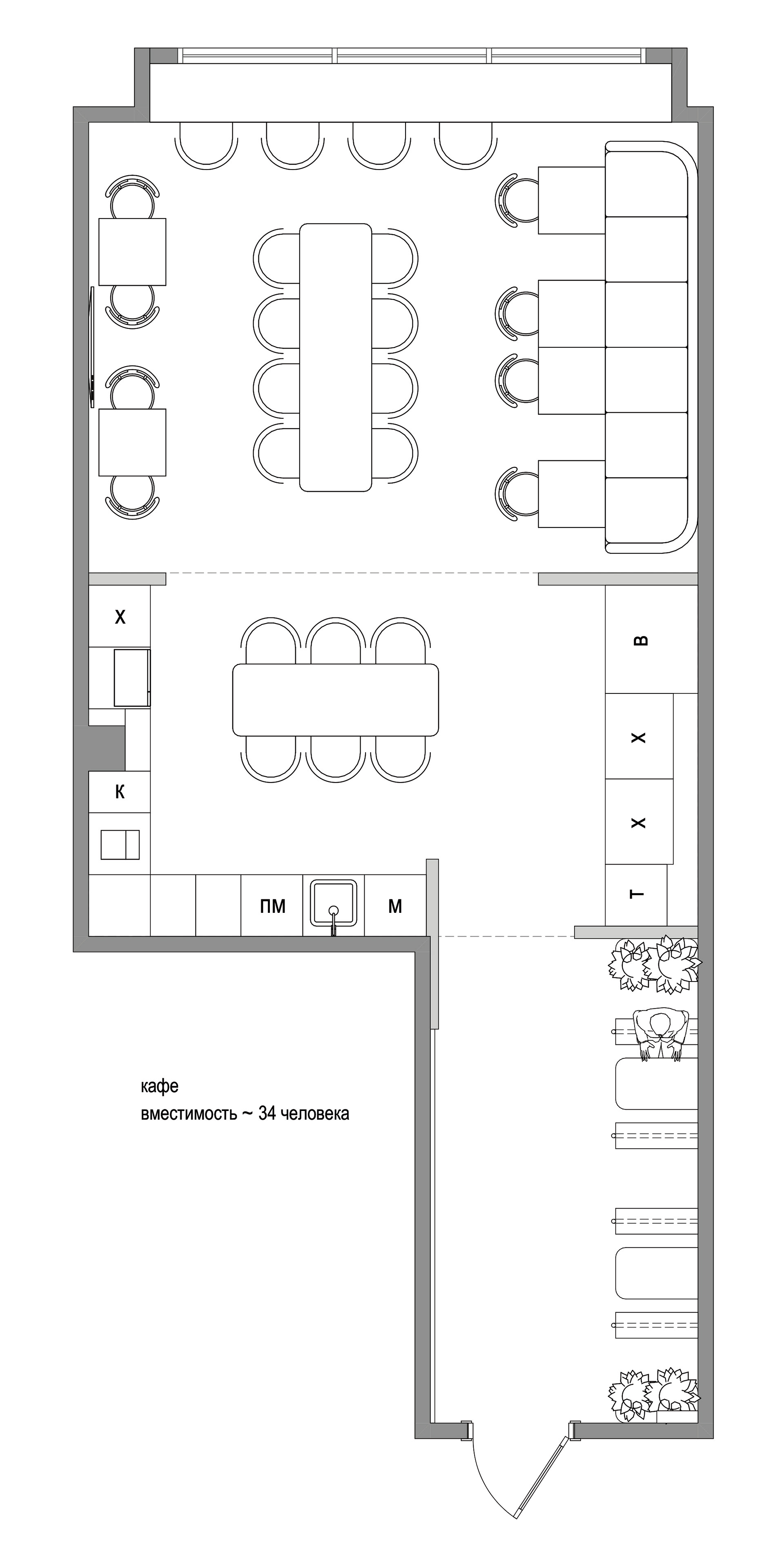
Третьим помещением для разработки дизайн-концепции стало Кафе для сотрудников.
Само помещение продиктовало расстановку мебели и оборудования.
Проход на кухню представляет собой узкий коридор. И примерив различные варианты, остановились на том, что здесь хорошо встают высокие столики и пуфы полубарной высоты, чтобы на выходе можно было сделать остановку с кофе, поболтать и (это может быть неочевидно) не мешать проходу остальным идущим на обед.
Кухонную зону выделили визуально от столовой благодаря цветовому решению. Здесь все необходимое для сотрудников, чтобы чувствовать себя комфортно: кофемашина со встроенными в тумбу стаканчиками, посудомоечная и свч, два холодильника, пурифайер, мойка, большой мусорный бак. Все скрыто за фасадами, чтобы минимизировать визуальный шум.
Линейку кухни дополняют витрины с кассовым аппаратом от дружественного магазина свежих готовых продуктов.
Разогрев еду перемещаемся в зону столовой. Длинный диван и отдельно стоящие столики с возможностью объединения для больших компаний.
Центр композиции - войлочный подвесной светильник.
По запросу компании была необходимость разместить тв для возможных встреч/мероприятий и даже созвонов в этом месте. Экран удалось вписать в интерьер, задействуя графические элементы из бренд-бука компании. Их мы продублировали на свободные стены вдоль посадочных мест.
Далее перемещаемся в небольшое помещение 40 м² - Спортзал, в котором ранее сотрудники компании приходили передохнуть игрой в настольный теннис.
Получив обратную связь об увлечениях коллектива, мы по максимуму постарались разместить новый функционал в это пространство.
Существующий стол заменили на аналогичный складной вариант, и в освободившееся место предложили активности по типу боксерской груши, растяжку на ковриках, рукоход и кикер. На входе интегрировали в существующие ниши пурифайер и хранение инвентаря.
Помещение было решено стилизовать под баскетбольную площадку. Разметку зон мы намеренно показали под уклоном для динамичного восприятия. Все пространство буквально стало площадкой для игр в прямом и переносном смысле: рисунок баскетбольных зон начинается на полу, перетекает на стену, затем на потолке подвесной светильник дублирует линии. На одной из стен разместили прочное акриловое зеркало для визуального расширения пространства.
客服
消息
收藏
下载
最近

































