查看完整案例

收藏

下载

翻译
Architects:Circle Studio Architects
Area:197m²
Year:2024
Photographs:Jade Cantwell
Manufacturers:Big River Group,Eco Timber,Miele appliances
Lead Architects:Yvonne Meng
Category:Houses
Lead Team:Yvonne Meng
General Contractor:Metacon Pty Ltd
Engineering & Consulting > Structural:R Bliem and Associates
Engineering & Consulting > Environmental Sustainability:Urban Digestor
City:Seddon
Country:Australia
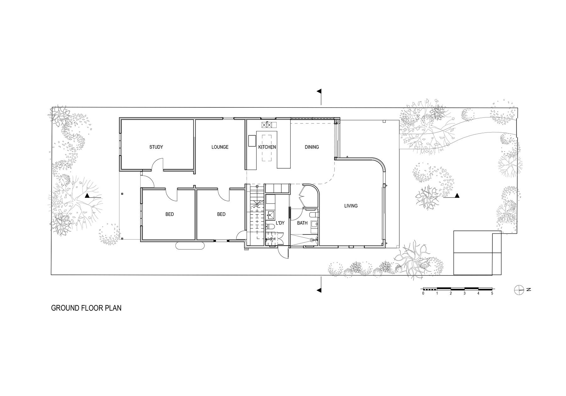
Text description provided by the architects. Peeking above a 1915 Edwardian cottage sits a white curved shell, a contemporary extension to a weatherboard home in a heritage pocket in inner-west Melbourne. Cereus House brings light, height, and flow to the existing dwelling through the addition of two curved forms that overlook the north-facing backyard. The clients wanted a solid, thermally comfortable home with bright spaces and a connection to the outside. It needed to accommodate working from home, be a sanctuary for retreat, and connect to the couple's property behind for when family and friends visit. A part of the brief was to retain an oversized cereus cactus in the backyard's east.
Flowing volumes contrast with the existing. Using a common 1m radius, the ground floor extension curves in plan, while the upper floor curves in section. Curves are used to soften interior spaces, allowing living spaces to flow from the kitchen, and the deck to flow into the backyard. Curved rafters normally used for bullnose verandahs are scaled up in the roof and exposed like ribs in the ceiling.
The ceiling over the living room is lowered to accommodate the balcony and define different zones of use. Spaces are organised for different modes of working; a secluded office sits at the front of the house, and a bright studio upstairs has access to attic storage and a large deck nestled in the treeline. A small aperture in the deck allows one to look out to the backyard below, while the rest is screened for privacy. The clients love books, so timber shelves were integrated into a leftover space next to the staircase. The existing house was stripped back, insulated, and double-glazed for maximum thermal comfort.
The extension is a contemporary contrast to the original house, and avoids simply putting a 'box' on top, which can look jarring from the street. The upper shell is set back and distinct from the Edwardian roofline; however, curves in the roof soften the form and reduce the visual bulk. Timber cladding was used as a natural material facing the backyard. Upstairs, metal cladding was used for ease of maintenance in a colour that references the weatherboard.
Due to the heritage overlay, the original roof needed to look intact. This proved a challenge with planning, as the clients wished to access the attic from upstairs; this meant cutting into the existing roof. Access was achieved by a low walkway that connects the new and the old. It is set below the existing ridge line and not visible from the street.
A construction challenge was how to properly support the works to the attic and walkway. The existing foundations were insufficient to carry a new load. The entire floor of the original home was replaced with a new concrete slab. The house was gutted from the inside and walls propped up while a slab with hand-dug footings in a 'hit-and-miss' system was poured from the inside to ensure structural integrity, better thermal mass, and minimise ongoing repair costs.
Project gallery
客服
消息
收藏
下载
最近
























