查看完整案例

收藏

下载
1. 背景:存量建筑时代的挑战
Project Overview
自1980年代——日本泡沫经济时期公寓建设激增の年代以来,已经过去了四十多年。随之而来的是,市场上既有住房存量的老龄化趋势日益显著。东京都市区新登记二手公寓的平均楼龄已从2019年的25.84年上升至2024年的30.22年,这一趋势预计仍将持续。面对如此庞大的存量,目前的主流价值观依然单一——要么盲目追求“新即是好”,要么止步于浮于表面的浅层翻新。
More than forty years have passed since the 1980s—a period when Japanese condominium (mansion) construction surged during the economic bubble. Today, the aging of this housing stock is a critical issue. The average age of pre-owned condominiums in the Tokyo metropolitan area rose from 25.84 years in 2019 to 30.22 years in 2024. Despite this vast stock, mainstream values remain monolithic, equating “new” with “good,” or settling for superficial renovations.
▼室内概览,overview of the interior © Takuro Kunitomo
2. 重新定义“平凡 (Ordinary)”
Ordinary
在这一背景下,本项目试图重新发现并重构日本标准公寓所蕴含的固有价值。在此使用的“平凡 (Ordinary)”一词并非指统计学上的平均值,也不仅仅是为了求稳;它被定义为日常生活中毫无违和感、被共同感知的“感官轮廓 (Sensory Contours)”(注1)。它静静地存在于下意识的行为背后,拥有一种无法被还原为特定用途或价值的普适性。
This project attempts to rediscover and reconfigure the inherent value within the standard Japanese condominium. The term “Ordinary” here does not refer to a statistical average; rather, it defines the “sensory contours” (1) shared in daily life without dissonance. It functions quietly behind unconscious actions, possessing a versatility that cannot be reduced to specific uses.
▼厨房和木制立柱,Kitchen and studs © Takuro Kunitomo
3. 设计策略:三种“升级改造”的操作
Design Strategy: Three Operations of Upcycling
设计并非追求形式的叠加或新奇感,而是通过解读既有平面布局、基层和材料中蕴含的合理性与匿名性展开。本项目摒弃了传统的“全拆除 (Full-skeleton)”式全面更新策略,而是采用三种操作作为一种“升级改造 (Upcycling)”,赋予既有元素新的意义:
▼拆卸阶段及图像,Demolition Phase and image © Takayuki Hayashi
Rather than pursuing additive forms or novelty, the design began by decoding the rationality inherent in existing floor plans and materials. Eschewing “full-skeleton” renewal, the project employs three operations to assign new meanings to existing elements:
▼线形元素,Linear elements © Takuro Kunitomo
ⅰ)揭露骨架:木制立柱的显现 (Manifestation of Studs) 拆除既有墙体的石膏板,暴露出原本作为基层材料的木制立柱(Studs),并将其保留为空间的骨架。1990年代以后主流的轻钢龙骨(LGS)多为中空薄壁构件,而这一时期的木制立柱则是严格遵循日本传统“尺贯法 (Shaku-kan-ho)”模数(303mm或455mm)的实木结构构件。通过将其从遮蔽状态中解放,它们转化为直接支持日常功能的设备——如支撑隔板和台面的竖梃,或开关的安装底座。此外,这些作为“线形元素 (Linear elements)”所营造的柔和功能分区,是对日本传统空间边界概念——如障子、木格栅、竿缘——在现代公寓语境下的重新诠释。
▼图解,diagram © Takayuki Hayashi
1.Manifestation of Studs The gypsum boards were removed to reveal the wooden studs, which were retained as the spatial framework. Unlike the Light Gauge Steel (LGS) common after the 1990s, the wooden studs of this era are solid structural members adhering to the traditional Shaku-kan-ho module (303mm or 455mm). By liberating them from their hidden role, they were transformed into devices supporting daily functions—serving as mullions for shelves or bases for switches. Their texture as “linear elements” reinterprets traditional Japanese spatial boundaries—such as shoji and lattices—within a modern context.
▼空间骨架,Spatial skeleton © Takuro Kunitomo
▼木制立柱,Studs © Takuro Kunitomo
ⅱ)还原结构本色 (Stripping the Structure to its Raw State) 日本的钢筋混凝土(RC)公寓拥有极高的施工精度,即便是在原本计划被饰面掩盖的部分。在本项目中,剥离墙纸后的基层处理(Keren)不再被视为涂刷前的修补步骤,而是被作为空间的最终肌理进行细致处理。这种对细节的关注体现了根植于木作文化中特有的日本式勤勉与诚信。结构体本身被定位为日本公寓所特有的“土着性饰面 (Indigenous finish)”。
▼细部,details © Takayuki Hayashi
2.Stripping the Structure to its Raw State Japanese reinforced concrete (RC) condominiums possess high construction precision, even when intended to be concealed. In this project, the surface preparation (keren) after stripping wallpaper was treated not as a repair step, but as the final texture. This attention to detail reflects a unique Japanese integrity rooted in carpentry culture, positioning the structure itself as an “indigenous finish.”
▼土着性饰面,Indigenous finish © Takuro Kunitomo
ⅲ)对框架结构的响应 (Response to the Rigid Frame Structure) 老旧公寓中因结构系统和管道路径而产生的大型露梁,传统上一直被视为沉重的障碍物。本项目在梁下安装了“内檐 (Internal eaves)”,并结合间接照明,将其重新定义为同时照亮梁体和天花板的设备。由此,结构限制被转化为赋予空间视觉深度的元素。
3.Response to the Rigid Frame Structure The large, exposed beams typical of older condominiums have traditionally been seen as oppressive obstacles. This plan installs “internal eaves” beneath the beams, integrating indirect lighting to redefine them as elements that provide visual depth. Structural constraints are thus transformed into atmospheric devices.
▼梁体和天花板,Beam body and ceiling © Takuro Kunitomo
▼内檐,Internal eaves © Takuro Kunitomo
结语
Conclusion
通过这些操作,空间获得了一种公寓特有的尺度感与空间层次的重叠,超越了“和风”或怀旧复古等表象美学。这种方法具备作为一种“型 (Kata)”的普适性,可以推广至其他区域,为基于既有条件重构多样化的“平凡”提供了线索。此外,这种局部更新累积而成的升级改造方式,将拆除废弃物减少到标准全装修的一半以下,直接降低了环境负荷。不以“更新”为终极目标,而是通过审视“平凡”来辨别无需改变的要素。这种设计态度展现了其在当代房地产市场中的可行性(注2),是针对庞大的既有住房存量所提出的一种诚实的建筑价值。
Through these operations, the space transcends superficial aesthetics like “Wa” (Japanese style) or retro nostalgia. This method functions as a “kata” (form) that can be expanded to other contexts, providing a clue for reconfiguring the “ordinary.” By accumulating partial updates, demolition waste was reduced to less than half of a standard renovation, directly lowering the environmental footprint. This design demonstrates that scrutinizing what does not need to change is a viable and sincere architectural value in today’s real estate market (2).
▼地板细部,Floor details © Takuro Kunitomo
注释: 1:引用深泽直人 (Naoto Fukasawa) 的“Ordinary”概念。2:由于多种原因,该物业作为二手房入市,并在短时间内转手给了下一位居住者。
Notes:1: Referencing Naoto Fukasawa’s concept of “Ordinary.” 2: This property was placed on the market as a for-sale unit and was passed on to the next inhabitant within a short period.
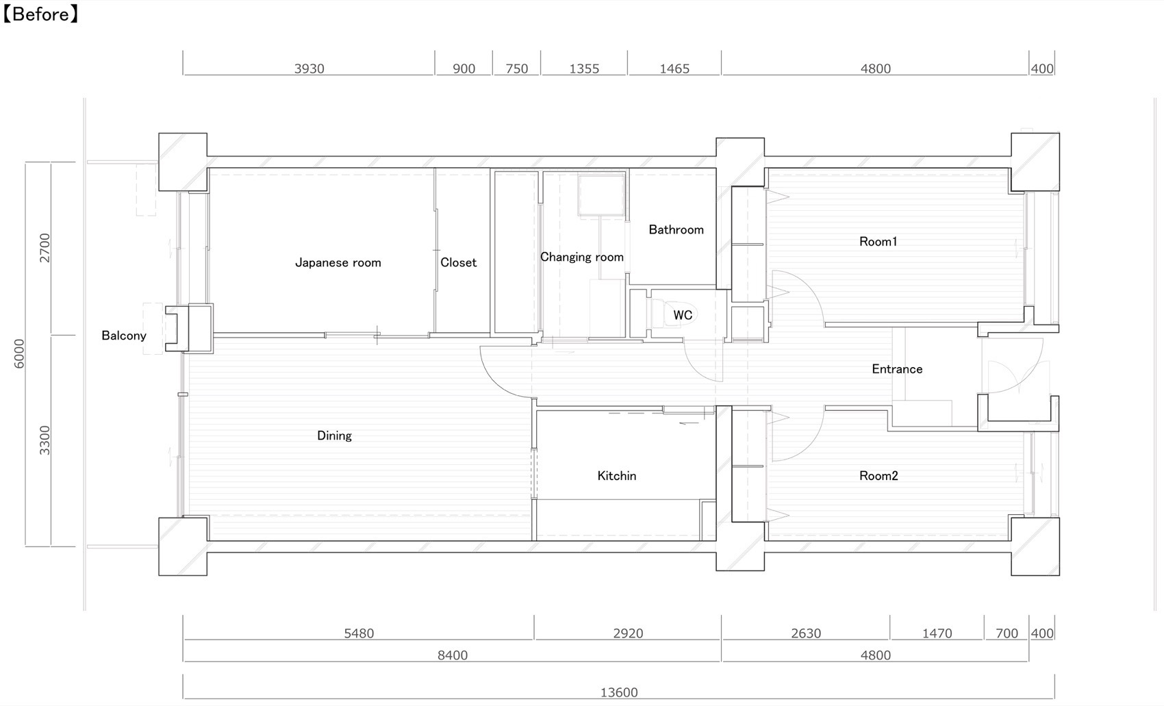
▼改造前平面,plan before renewal © Takayuki Hayashi
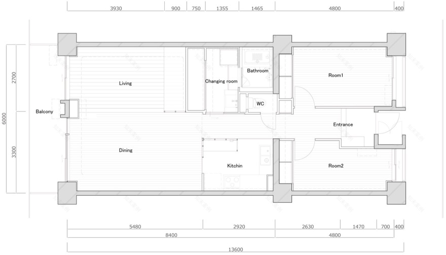
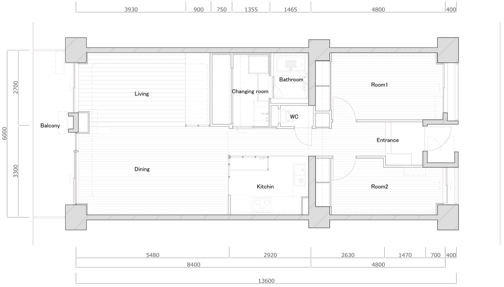
▼平面,plan © Takayuki Hayashi
Main Information
Project Name: An Ordinary Renovation of an Apartment
Office Name: THa
Firm Location: Fukuoka,Japan
Completion Year (Renovation/Original) :2025/1983
Gross Built Area (m2) (Renovation/Original): 79.95 m²/ 35,181.11㎡
Project Location: Itabashi, Tokyo, Japan
Program / Use / Building Function: Program: Residential / Use: Apartment / Building Function: Residential Interior / Apartment Renovation
Lead Architects: Takayuki Hayashi
Photographer
Photo Credits: Takuro Kunitomo
客服
消息
收藏
下载
最近


























