查看完整案例

收藏

下载

翻译
INTERIÉR HORSKÉ CHATY
V celém návrhu jsem se inspirovala skandinávským stylem, protože mě oslovuje jeho jednoduchost, světlo a propojení s přírodou. Použila jsem hlavně dřevo a přírodní materiály, které do prostoru vnášejí teplo a klid.
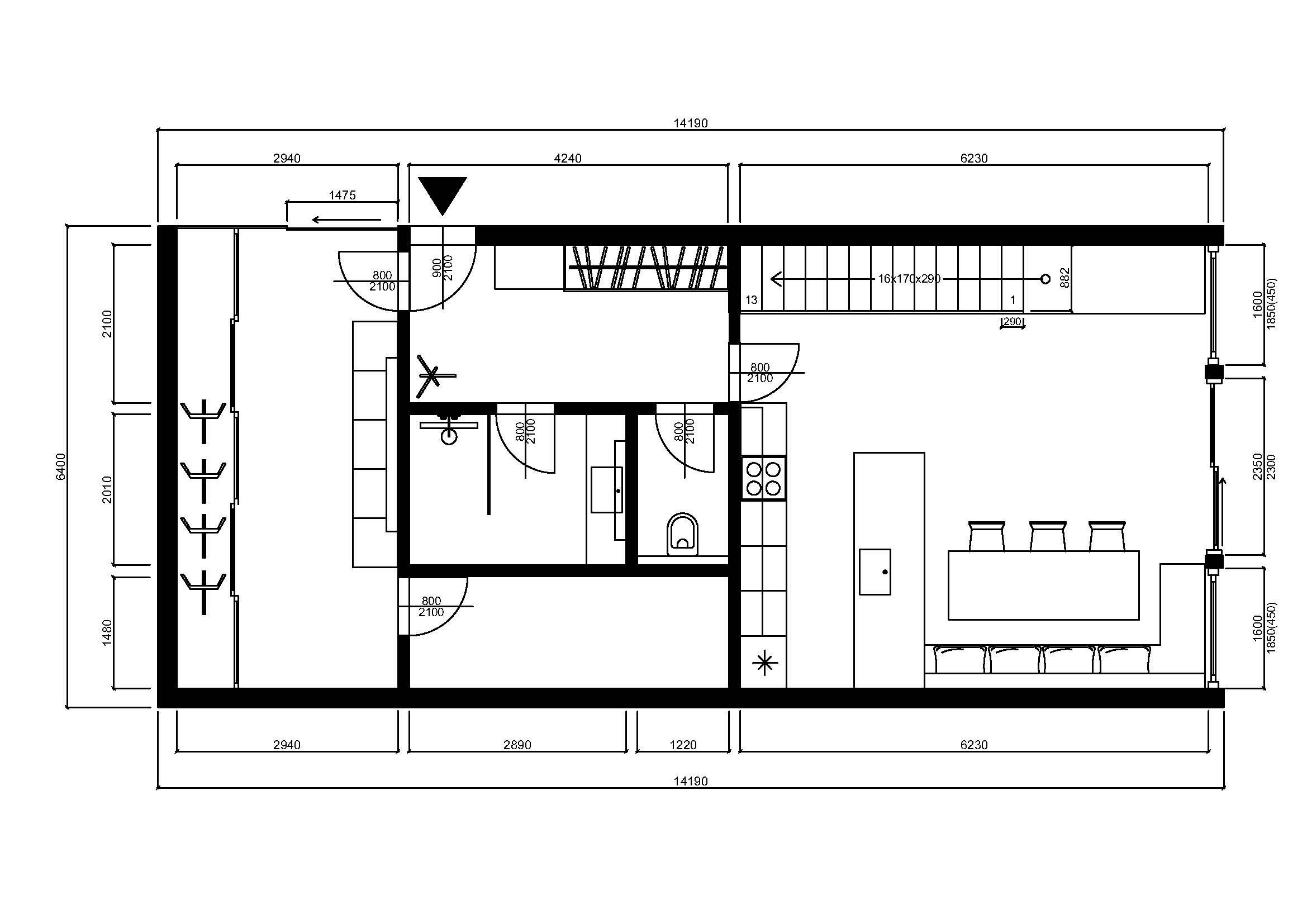
Dispozice 1.NP
Dispozice 2.NP
1.NP
Dominantou jídelního prostoru jsou elegantní židle od české značky TON, které díky svému nadčasovému designu skvěle ladí se skandinávským stylem chaty a dodávají jí lehkost i útulnost.
2.NP
Součástí ložnice je pohodlné lounge křeslo od české značky Master and Master, které dodává prostoru styl a relaxační atmosféru.
Dětský pokoj nabízí dostatek místa na hraní, chytré úložné prostory a hravý prvek v podobě lavice u okna. Pod ní se ukrývají výsuvné boxy, které slouží nejen na hračky, ale dají se otočit a využít i jako sezení – ideální pro dětské návštěvy nebo chvíle s knížkou.
V koupelně v patře se nachází pračka schovaná za posuvnými dvířky, díky čemuž zůstává prostor opticky čistý a uspořádaný.
PŮDORYSY
客服
消息
收藏
下载
最近




















