查看完整案例

收藏

下载

翻译
Architects:Garbin Arquitetos
Area:747m²
Year:2025
Photographs:Fran Parente
Lead Architects:Bruna e Gabriel Garbin
Category:Residential Architecture,Houses
City:Ibiúna
Country:Brazil
Text description provided by the architects. Implanted on a rugged plot of land at the edge of one of the arms of the Ibiúna reservoir, in the interior of São Paulo, Casa CR JL emerges from a careful reading of the topography and the existing landscape. The project begins with an understanding of the steep slope of the lot and the strong presence of water as structuring elements of the architectural proposal. From the outset, a solution was sought that not only adapted to the land but utilized its characteristics as spatial and landscape potential. The residence was designed for a young couple, with the premise of accommodating transformations over time, which led to the adoption of a modular system capable of allowing coherent future expansions. Currently, the house features five suites, a direct result of this progressive growth strategy.
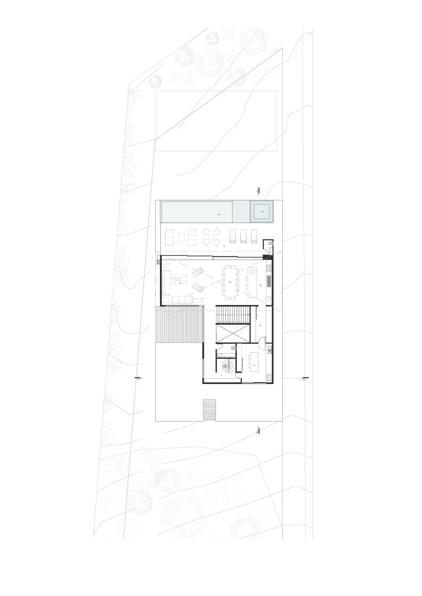
One of the main challenges of the project was reconciling the steep terrain with the need for clear and comfortable circulation, while also ensuring constant visual integration with the reservoir. The solution found was to organize access and uses on well-defined levels, allowing the architecture to rest on the ground in a balanced manner, without significant earthmoving, and maintaining a direct relationship with the landscape in all the main environments.
Access occurs through the ground floor of the lot, which provides direct access to a staircase leading to the upper social floor, where the living spaces are concentrated. On this level, the living room and gourmet kitchen are organized in an integrated manner, with large openings facing the reservoir, prioritizing the view and cross ventilation. At the edge of the upper slab, the pool was precisely placed, with its water mirror aligned to the horizon, reinforcing the visual continuity between the house and the natural surroundings.
The materiality follows the constructive logic of the project. The lower floor is configured as a solid base, executed in exposed precast concrete slabs, while the upper volume is closed with Accoya wood, chosen for its durability and resistance to the elements. Inside, the adoption of a single flooring in cement slabs reinforces the spatial continuity between the environments. By articulating precise implantation, a modular system, and a direct relationship with the landscape, Casa CR JL proposes a clear, durable architecture that is open to adaptation over time.
Project gallery
客服
消息
收藏
下载
最近























