查看完整案例

收藏

下载

翻译
Architects:Studio Sanshou
Area:109m²
Year:2025
Photographs:Ong Chan Hao
Lead Architects:Shaeron Santosa and Eng Shou Jian
Category:Apartment Interiors
Design Team:Shaeron Santosa, Eng Shou Jian
Country:Singapore
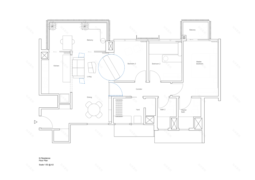
Text description provided by the architects. A 360-degree turnstile is the heart of our design, transforming the home into a changing medley of spaces. When closed, the wall blends into a shade of pink. With a slow, dramatic turn, the spaces beyond are revealed. Now, a maroon shelf and its contents are on full display.
Challenged by the client's brief to create connected but separated spaces, we re-interpreted the function of a wall that is usually a static and permanent delineation of boundaries. Between the kitchen and living room, the existing glass partition is replaced with a marble portal to create an open and permeable space, while still highlighting the transition between functional and social. Between the living room and the study, the wall is rebuilt as an active piece of furniture that continuously changes the extent and use of its adjoining spaces. One face performs an extroverted role, housing the television; the other face an introverted one where books, belongings, and wares are kept.
A key design detail is the concealment of cables and wires within the rotating wall. A conduit is inserted into the pivot for a continuous 360-degree turn of the wall. The joinery piece is built around this heavy-duty pivot that can carry up to 500kg, with its sides reinforced and cantilevering from the middle segment.
In line with the kinetic essence of the home, the marble coffee table can be deconstructed and reassembled with use. Cut to an organic geometry, the table does not have a fixed arrangement, and can be combined as a singular piece or separated when the wall is in its full rotation.
In a country where space is invaluable, the project at Ki Residence seeks to introduce theatre and transience within the confines of an apartment. Walls are not permanent boundaries, but perform a function. In motion, the layout of the home is re-framed and re-adjusted with its use throughout the day and weeks.
Project gallery
客服
消息
收藏
下载
最近



















