查看完整案例

收藏

下载
作为创新办公座具解决方案的行业领导者,精一股份希望在现有的工厂园区中整合办公、研发、展示及配套功能。原有的工业布局虽然高效务实,却缺乏现代总部所追求的以人为本体验。我们的多专业整合团队以协作为核心,将这一工业场地重新构想为一个充满活力、以人和创新为导向的园区,既促进跨团队合作与社群交流,也展现出精一股份的国际视野与品牌远见。
JE Furniture, a leader in innovative seating solutions, wanted to bring together its offices, R&D labs, showrooms and amenities within an existing factory park. While the site’s industrial layout was practical and efficient, it lacked the human-centred qualities of a modern HQ. Our integrated team turned the site into a connected, people-focused campus that encourages collaboration, innovation and community, reflecting JE’s global reputation and ambitions.
▼项目鸟瞰,Aerial-view of the project © Sean Liu
整合驱动创新,实现总部愿景
Building on a vision of innovation through an integrative framework
客户希望将旗下多个品牌汇聚于一个开放、简约且以社群为导向的总部空间,展现其在设计与工程领域的专业实力。以整合驱动创新为愿景,项目将原本分散的品牌与功能融合为一个统一而有机的环境。过去彼此独立的空间,如今构成了一个相互连接的生态系统,促进协作并强化身份认同。坐落于佛山的工业环境中,这一设计将人、流程与体验无缝融合。
The client wanted to bring several brands together in a minimalist, community-driven space that reflects their creative and engineering expertise. Building on a vision of innovation through an integrative framework, the project unites previously separate brands and functions into one cohesive environment. What was once a collection of distinct spaces is now an interconnected ecosystem that fosters collaboration and shared identity. Set within Foshan’s industrial landscape, the design connects people, processes and experiences.
▼入口广场鸟瞰,Aerial-view of the entrance © Sean Liu
我们的多学科团队深入理解客户愿景,并将其转化为空间语言。以精一股份的“精准、创新、以人为本”为核心,我们将这些品牌精神融入到建筑与体验之中。从项目伊始,建筑、工程、设计与施工管理团队便紧密协作,以确保愿景得以精准实现。
Our multidisciplinary team was well placed to bring this vision to life. By understanding JE’s focus on precision, innovation and its people-first culture, we turned these values into a workplace that feels authentic to the brand. From the start, architecture, engineering, construction management and design worked together to seamlessly align vision with execution.
▼景观水池,Landscape pond © Sean Liu
借助 3D 建模、虚拟现实和交互式审查等数字化工具,我们让整个流程保持高效、透明与可控。这种协作方式既延续了原有工业结构的效率,又塑造出灵活而具前瞻性的空间,体现企业精神并支持持续创新。
Using tools such as 3D modelling, VR and IR reviews, we kept every stage of the project accurate, efficient and transparent for everyone involved. This collaborative approach maintained the efficiency of the industrial shell. It also shaped a flexible, future-proof environment that reflects the company’s identity and supports ongoing innovation.
▼户外座椅,Outdoor seating area © Sean Liu
工程赋能,提升建筑生命力
Engineering performance woven into the architecture
更新从景观与外立面入手,由建筑、设计与工程团队协同推进。通过一体化的工作模式,项目建立了统一的视觉语言,同时显著提升了性能与通达性。设计策略在自然与工业之间取得平衡,绿植、水景与自然光与钢结构和体量比例形成对话。高性能幕墙系统在提升热舒适度的同时引入更多自然光,降低能源消耗。
The transformation started with the landscape and façade, developed by our architecture, design and engineering teams. This integrated approach created a unified identity while improving the site’s performance and accessibility. The design strategy that connects the campus aligns natural and industrial components: greenery, water and daylight balanced with steel, structure and scale. A high-performing façade system enhances thermal comfort, increases daylight and reduces energy use.
▼室内绿植,Indoor greenery © Sean Liu
金属质感的外立面元素延续至室内,确保材料与比例的一致性与精度。定制化天花系统将照明、空气分配与声学控制整合于一体,使空间更简洁、灵活、易维护。建筑内部原有的空置空间被重塑为新的中庭,成为整个园区的核心。通过结构重构与精细施工管理,新增楼层与雕塑感楼梯将展厅、研发与办公空间自然串联。先进的施工管理技术确保多专业协作的精准与可行,以清晰的空间结构优化了动线与功能流向,强化了核心区域之间的联系。
Metal components and proportions from the exterior continue through the interiors, ensuring visual consistency and technical efficiency across materials and details. A bespoke ceiling system combines lighting, air distribution and acoustic control within an integrated architectural and MEP framework. This keeps workspaces clear, adaptable and easy to maintain. We reconfigured the building layout around a new atrium formed from a former void. Structural re-engineering and construction management brought in new floor plates and a feature staircase, connecting the showroom, R&D and workplace floors. The reorganisation improves wayfinding and operational flow, creating a clear layout that strengthens connection between key areas. Using advanced construction management technologies, the team ensured precision, buildability and seamless coordination between disciplines.
▼室内金属元素,Interior metal components © Sean Liu
以人为本,连接目标与使命
Connecting people and purpose into space
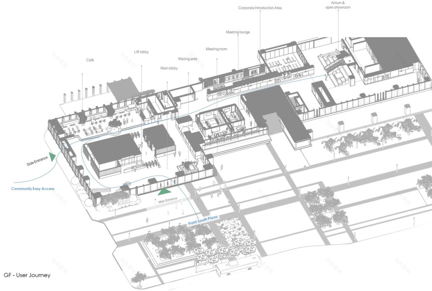
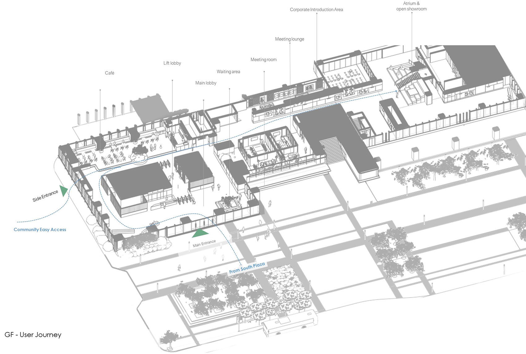
整合理念贯穿整个园区,每个空间都在功能与体验之间找到平衡,形成支持人们在不同活动与场景中开展多元活动的生态系统。▼轴测图,Axon diagram © 穆氏建筑
The same integrated approach shaped the wider campus. Beyond the key areas, our work extended to the full campus experience. Each space blends function with experience, forming a connected ecosystem that supports people in their daily routines across activities and purposes.
宾至如归 · 欢迎体验:入口与大堂为整个园区定下温暖基调。被水景与绿植环绕的前场自然引导访客步入室内;阳光与金属细节交织,形成开放而有序的动线。大堂作为社交枢纽,连接南广场与新建公交站,营造欢迎且归属的氛围。
Welcoming and belonging: The arrival sequence and lobby set the tone for the campus identity. A generous forecourt framed by water and greenery provides a calm transition from street to workspace. Inside, crafted metal details and natural light define the lobby’s character and guide movement through the space. Designed as a social hub, this space welcomes staff and visitors, linking directly to the South Plaza and the bus stop redesigned by our team.
▼大堂,Lobby © Sean Liu
互联互通 · 流动交流: 紧邻主要动线的咖啡厅与休息区延续了入口的亲和感,成为员工跨团队交流的自然节点。通过设计与策略规划,这些区域鼓励着自发互动,并在社交区域和办公区域之间形成自然的过渡与停留。温润的材质与柔和的光线呼应传统工艺之美,也为空间注入了人文温度。
Transiting and connecting: As the first interior spaces on arrival, the Café and Lounge continue the welcoming feel of the entrance. Positioned along main circulation routes, they act as informal meeting points that connect people. Combining interior design and workplace strategy, these areas encourage interaction and create moments of pause between the community and work spaces, using warm timber and soft lighting to evoke traditional craftsmanship and bring a human touch to the workplace.
▼咖啡厅与休息区,Café and Lounge © Sean Liu
相遇共创 · 协作中枢:重新构想的中庭成为园区的视觉与社交中心。雕塑感楼梯与连桥将垂直动线转化为交流机会,串联不同楼层与团队,营造开放与活力并存的氛围。
Moving and meeting: Reimagined through structural and spatial design, the atrium is the social and visual heart of the campus. A sculptural stair and bridges turn movement into moments of connection, linking functions and teams across levels and creating a shared sense of energy.
▼中庭空间,Atrium space © Sean Liu
灵动办公 · 高效共研: 中庭与研发实验室等核心空间灵活且高效,支持测试、协作与展示。建筑与工程的深度整合为团队提供舒适可调的环境,使设计、打样与展示在同一空间高效完成。
Working and innovating: Flexible and inspiring environments like the atrium or R&D Lab support testing and collaboration through coordinated design and engineering. Integrated systems maintain comfort and adaptability, enabling teams to design, prototype and present within the same space.
▼研发实验室,R&D Lab © Sean Liu
匠心展示 · 品牌体验: 建筑与灯光相辅相成,为展厅和客户接待区营造出简约而精致的展示环境。从产品的研发到呈现,我们打造了一条清晰的参观动线,让访客与员工都能直观感受精一对工艺与创新的坚持。
Displaying and sharing: Architecture and lighting design work together to create a refined, neutral setting for product display in the Showroom and Client Areas. We created a clear journey from making to showcasing, reflecting JE’s mission and attention to details to visitors and staff.
▼展厅,Showroom © Sean Liu
▼客户接待区,Client area © Sean Liu
静享自然 · 社群共融:园区北侧被改造为“北公园”绿化区。生态花园、遮荫步道与本土植物共同营造出宁静的氛围,既支持生态系统的循环,为员工与访客提供亲近自然的场所,促进身心放松与社群连接。
Recharging and socialising: Landscape and conscious design practices turn the edge of the site into a green belt called the North Park. With rain gardens, shaded paths and native plants, this green space supports local wildlife and creates a calm place for people to relax, walk or connect outdoors.
▼绿化区鸟瞰,Aerial-view of green belt © Sean Liu
▼亲近自然的场所,Place to connect outdoors © Sean Liu
协同共生,驱动可持续社群
A campus that performs and serves its community
客户希望通过将团队集中在同一空间,优化协作与创新流程,同时为佛山工业区的更新注入新的活力。项目自始至终以可持续与健康为核心理念,通过旧址再利用减少拆除与碳排放,并以高性能系统提升舒适度与能效。
By bringing all teams under one roof, the client wanted to streamline collaboration and innovation while contributing to the renewal of Foshan’s industrial district. Sustainability and wellbeing were central from the start. Adaptive reuse reduced demolition and embodied carbon, while high-performance systems improved comfort and efficiency.
▼办公区,Office area © Sean Liu
“我们的全新总部将同事、客户与合作伙伴汇聚于品牌的核心之地,在这里,归属感、自豪感与彼此的连接共同塑造出更紧密的社群,激发源源不断的创新动力。”
“Our new HQ brings colleagues, clients and partners together at the heart of our brand, where belonging, pride and connection shape a stronger community and fuel innovation.”
▼会议室,Conference room © Sean Liu
节能冷水机组、需求控制通风与日光感应照明共同降低能耗,收集的雨水用于室内水景与景观灌溉。通过将自然与共享空间相结合,园区不仅是工作场所,更成为区域更新与可持续发展的新标杆。通过将高性能的办公系统与社会、环境及城市目标融合,园区展现了旧址再利用的持久价值,在实现企业效率与品牌提升的同时,推动了更广泛的社会与生态共赢。
The project keeps energy use low through efficient chillers, demand-controlled ventilation and daylight-responsive lighting. Rainwater is collected to feed the indoor water feature and surrounding landscape. Integrating nature and shared amenities, the campus goes beyond a traditional workspace to offer a model for regeneration and sustainable growth in the area. By bringing together high-performance workplace systems with social, environmental and urban goals, the campus demonstrates how adaptive reuse can bring lasting impact. It delivers efficiency, supports wellbeing and creates long-term value for both the business and the local community.
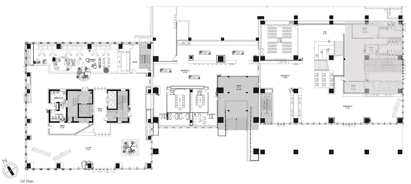
▼平面图,Plan © 穆氏建筑
项目名称:精一股份智能家居产业园,佛山
项目类型:建筑升级+室内设计
设计方:穆氏建筑设计
完成年份:2025年
设计团队:穆氏建筑设计
项目地址:广东省佛山市
建筑面积:13000 ㎡
摄影版权:版权归属穆氏建筑设计,摄影师Sean Liu 肖恩
客户:精一股份
Project name:JE Furniture HQ, Foshan
Project type:Building Upgrades & Interior Design
Design:M Moser Associates
Completion Year:2025
Leader designer& Team:M Moser Associates
Project location:Foshan, Guangdong, China
Gross built area: 13000 ㎡
Photo credit: M Moser Associates / photographer: Sean Liu
Clients:JE Group
客服
消息
收藏
下载
最近




























