查看完整案例

收藏

下载

翻译
Architects:Pacarizi Studio
Area:350m²
Year:2025
Photographs:Gezim Pacarizi,Lundrim Karameta
Category:Residential Architecture,Houses
Lead Team:Gezim Pacarizi
Design Team:Pacarizi Studio
City:Ishull-Lezhë
Country:Albania
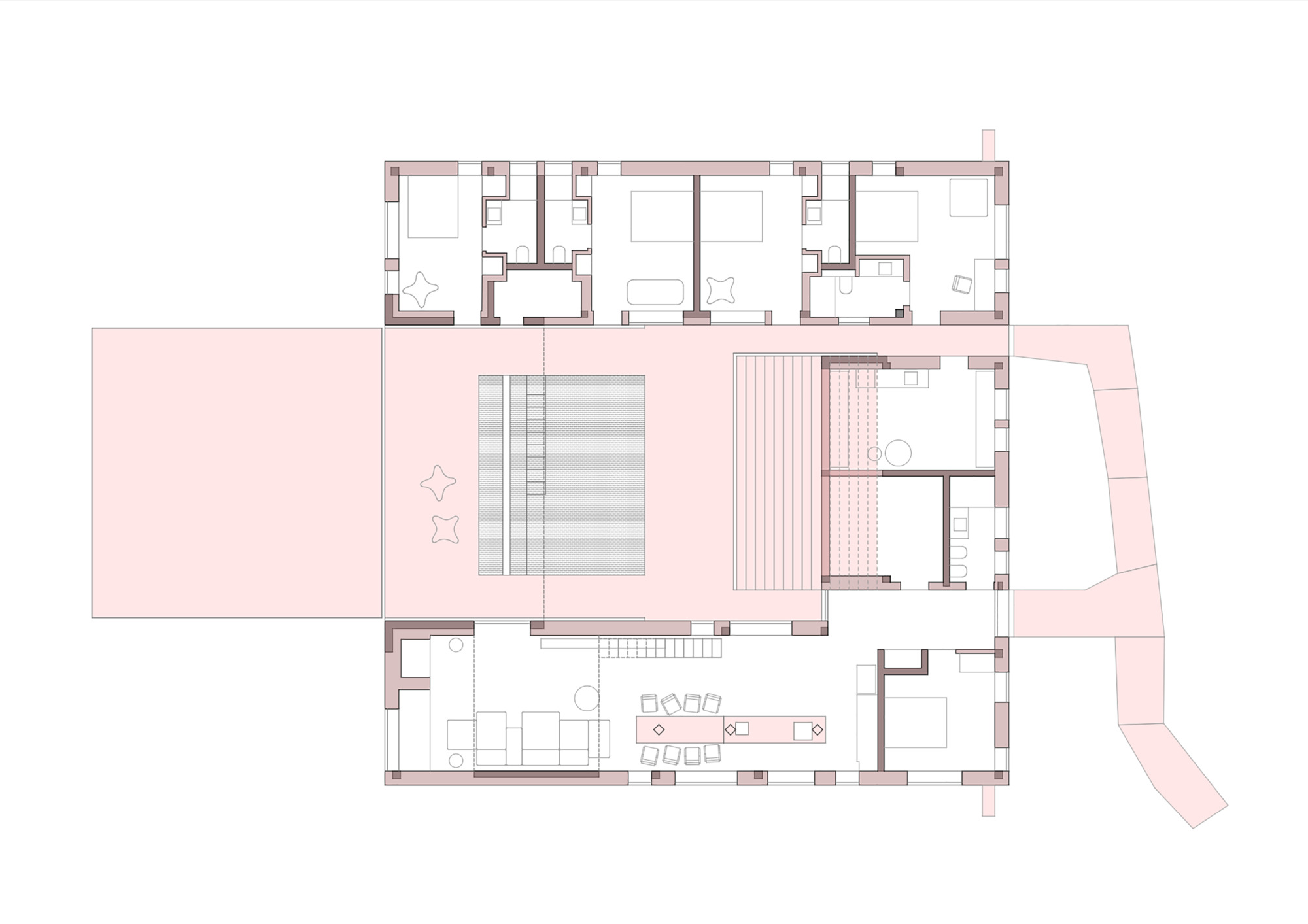
Text description provided by the architects. The house balances outside and inside, living in the garden of a coastal village. The living volume and rooms are arranged around an open court with the pool at its center. The grand stair continues the courtyard space to the roof level, opening vistas toward nearby and distant landscapes.
Red House is a village, a multigenerational home, for a composed and dispersed family. An open courtyard house was placed in the periphery of a very large farming garden with olive, pomegranate, and orange trees. This courtyard, the center of the house, being partly covered, acts as a real summer living space, connecting all the parts of the house, inviting one to enjoy the garden and the views. This theatrical space permits architecture that looks into itself. What you see through the window is a landscape, a tree, but also the architecture itself. This ability of architecture to be able to satisfy itself becomes the central theme of the project.
Single-family houses represent more than 50% of all buildings in Albania. Family life has changed. Existing models, a mixture of tradition and modernity, no longer respond to new challenges. An aging population, the emigration of younger generations, and increased transportation have blurred the distinction between permanent and holiday homes, between city and periphery.
Red House seeks to respond to the redefinition of a single multigenerational home for a composed and dispersed family, through an architecture that understands and makes use of the climatic potential and conditions of the area. This low-cost, low-tech house offers an example of a local and circular building economy. Its architectural quality lies in its resilience to consumer society, offering a comfortable and healthy living environment. Architecture becomes an invitation to understand and enjoy the simplicity of village life and the gifts of nature, while quietly becoming a portrait of the people who live within it.
The basic structure is concrete. The exterior walls are made of 46 cm thick local hollow bricks. All thermal insulation was created using a mixture of straw, sand, and lime with casein as a binder. The same mixture was used for all plastering. We replaced cement with casein. Red iron oxide was mixed into the material and applied throughout. The casein–lime combination is a living material that will last almost forever, meaning the house will never need to be repainted.
The floors are made of local pinkish marble and wood. We purchased casein from nearby farms and produced our own lime. The construction generated almost no waste. Large fixed windows frame the views and bring in light, while only small windows open for natural ventilation. Local teams of four to five workers built the house, which was simplified as much as possible to increase usable space and reduce the cost of expensive amenities.
Sustainability was achieved through simplicity—by building locally, using natural materials, and creating a house that the clients truly love.
Project gallery
客服
消息
收藏
下载
最近

































