查看完整案例

收藏

下载
位于不来梅西部的Überseestadt是欧洲规模最大的城市更新项目之一。该项目在原Übersee港区范围内推进,占地约 300 公顷,正逐步塑造一片全新的城市城区。其中,Überseeinsel半岛保留了食品制造商家乐氏(Kellogg’s)曾经的生产设施,成为工业遗产更新的重要节点。
Revitalised Industrial Architecture on the Überseeinsel in Bremen: DMAA Transforms the Kellogg’s Silos Into a Hotel. Location and context: mixed-use quarter on Bremen’s waterfront. The ‘Überseestadt’, one of Europe’s largest urban development projects, is taking shape in the West of Bremen. A new urban district covering around 300 hectares is being created on the former Überseehafen. Part of the area is occupied by the ‘Überseeinsel’ peninsula, which is home to the former production facilities of the food manufacturers Kellogg’s.
▼项目概览,overall of the project© Piet Niemann
整体更新策略旨在威悉河沿岸、毗邻市中心的位置,构建一个充满活力的混合功能综合体。临水一侧最具辨识度的核心元素,正是建于20世纪70年代的家乐氏筒仓——这一场地的非官方地标与精神象征,如今由DMAA建筑事务所改造为酒店,延续其工业身份的同时赋予其新的城市功能。
▼项目改造前后,before and after© DMAA
The comprehensive refurbishment concept involves the creation of a dynamic mixed-use complex on the River Weser and in close proximity to downtown Bremen. The unofficial landmark and striking focus of the complex on the water’s edge is provided by the Kellogg’s silos from the 1970s, which give the location its identity and have now been transformed into a hotel by the architectural office DMAA. Silos with a symbolic character.
▼滨水视角,view from the water© Piet Niemann
这些筒仓曾用于储存多达 5,000 吨的玉米、小麦或燕麦,其改造在结构与审美层面都极具挑战性。DMAA 的设计回应了业主的明确要求:在更新过程中最大限度地保留筒仓的工业特征与象征力量,使其成为新城区中的标志性存在。▼分析图,analysis diagram© DMAA
The remodeling of the Kellogg’s silos, which had previously held up to 5,000 tons of corn, wheat or oats, was an architecturally enticing and aesthetically complex challenge. DMAA’s project idea reflected the client’s concrete instructions to retain the industrial character and symbolic power of the silos.
▼街景视角,street view© Piet Niemann
▼酒店半鸟瞰,half-aerial view of the hotel© Piet Niemann
▼仰视改造后的筒仓,looking up to the silos© Piet Niemann
▼立面,facade© Piet Niemann
▼立面细部,details of the facade© Piet Niemann
标志性的红色 “Kellogg’s” 标识依旧矗立在约40米高的筒仓之上。筒仓外壳内部被改造为117间圆形与半圆形酒店客房。原本作为维生素仓库的低层附属建筑,则被更新为包含会议功能的五层办公空间,其屋顶转化为一处可俯瞰周边景观的公共活动平台。▼项目改造前后,before and after© DMAA
The iconic red ‘Kellogg’s’ logo towers above the distinctive 40 metre-high silos, whose shells now contain 117 circular and semi-circular hotel rooms. The lower annexe, which was formerly used as a vitamin store, has been converted to contain five storeies of office space with conference rooms, while its rooftop is now home to an event space with panoramic views.
▼滨水休闲区,hospitality space along the river© Piet Niemann
▼标志性的红色 “Kellogg’s” 标识,
The iconic red ‘Kellogg’s’ logo towers © Piet Niemann
客房的引入通过在厚达16厘米的混凝土筒体上切割窗洞得以实现。狭长而克制的开口在不同高度框取威悉河景观。筒仓漏斗状的出料口被整合进酒店大堂的空间设计中,各筒体之间亦被打通,以形成新的交通与进入系统。仅酒店改造部分,就切割并移除了约3,500立方米混凝土。
The transformation of the silos into rooms was made possible by the cutting of window openings into the 16-cm-thick concrete cylinders. Strikingly narrow slits offer views of the Weser at different heights. The silos’ funnel-shaped outlets were integrated into the design of the hotel lobby. New connecting structures were opened up between the cylinders to facilitate entry to the rooms. 3,500 m³ of concrete had to be cut out and removed by wheelbarrow in the hotel alone.
▼客房内部,interior of the guest room© Piet Niemann
▼走廊,hallway© Piet Niemann
▼客房细部,details of the guest room© Piet Niemann
▼楼梯,staircase© Piet Niemann
▼建筑细部,details of the structure© Piet Niemann
改造后的筒仓与相邻、由原稻谷仓库转型而来的市场大厅共同构成一套完整的公共配套体系,涵盖餐饮空间、内部酿酒坊以及面向威悉河展开的大尺度露台,使这一工业遗址在新的城市语境中重新焕发生命力。▼项目改造前后,before and after© DMAA
The silos and the adjacent rice store, which has been converted into a market hall, provide a wide range of communal services, restaurants, an in-house brewery and spacious terraces overlooking the Weser.
▼仓库改造为酒吧,bar© Piet Niemann
▼酒吧细部,details of the bar© Piet Niemann
▼接待空间,waiting area of the hotel© Piet Niemann
▼建造过程,construction process© Andreas Müller Fotografie
▼Überseeinsel区总体规划,master plan of Überseeinsel© DMAA
▼场地平面图,site plan© DMAA
▼总平面图,master plan© DMAA
▼改造后的仓库一层平面图,ground floor plan of the reislager© DMAA
▼改造后的仓库二层平面图,first floor plan of the reislager© DMAA
▼改造后的仓库三层平面图,second floor plan of the reislager© DMAA
▼改造后的仓库四平面图,third floor plan of the reislager© DMAA
▼改造后的仓库立面图,elevations of the reislager© DMAA
▼改造后的仓库剖面图,sections of the reislager© DMAA
▼筒仓酒店底层平面图,ground floor of the silo hotel© DMAA
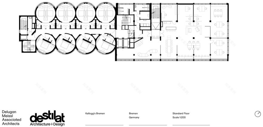
▼筒仓酒店标准层平面图,standard floor of the silo hotel© DMAA
▼筒仓酒店八层平面图,seventh floor of the silo hotel© DMAA
▼筒仓酒店顶层活动空间平面图,attic event floor of the silo hotel© DMAA
▼筒仓酒店立面图,elevations of the silo hotel© DMAA
▼筒仓酒店剖面图,sections of the silo hotel© DMAA
Project Information
Category:Hotel & SPA / Mixed Use / Refurbishment
Address:Auf der Muggenburg 30, 28217 Bremen
Start of Planning:2018
Start of Construction:2020
Completion:2024
Gross Surface Area:Reislager 9,447.02 m²;Silo 9,142.52 m²
Construction Volume:Reislager 37,336.94 m³;Silo 32,263.81 m³
Site Area:Reislager 4,965 m²;Silo 2,195 m²
Height:Reislager 24.5 m;Silo 52.4 m
Number of Levels:Silo 14;Reislager 4
Number of Basements:1
Project Manager:Eva Schrade
Project Team:Birgit Miksch;Julia Oblitcova;Klaudia Prikrill;Martin Schneider
Visualization:Toni Nachev
Executive Planning:dt+p, An der Reeperbahn 10, 28217 Bremen (Reislager);Gruppe GME Architekten, Paulsbergstraße 11, 28832 Achim (Silo)
Structural Engineering:Wittler Ingenieure GmbH, Parkstraße 14, 28209 Bremen
Lighting Design:Die Lichtplaner, Hans-Wolf-Str. 19, 65556 Limburg-Staffel
Building Services Engineering:Schweigatz Heizungs- und Sanitärbau GmbH, Fuldastraße 38, 26135 Oldenburg
Building Physics:Wittler Ingenieure GmbH, Parkstraße 14, 28209 Bremen
客服
消息
收藏
下载
最近




























































