查看完整案例

收藏

下载
摘要
Abstract
Lisi花园住宅楼是一座七层的集合住宅,其设计理念建立在“模块化”之上:建筑的所有构件均采用预制方式完成,但并非所有模块完全一致。对于装配式建造仍处于起步阶段的格鲁吉亚而言,这一实践具有显著的实验性与前瞻性。项目灵感一方面来自美国建筑师詹姆斯·怀恩斯(James Wines)的拼贴作品《Highrise of Homes》中“温室式居住空间”的设想,另一方面也呼应了布罗德斯基与乌特金(Brodsky & Utkin)的《可居住骨灰堂(Columbarium Habitable)》。设计由此提出一种“花园住宅叠合”的概念——将带有花园的独立住宅垂直堆叠,形成一座完整的住宅建筑。
▼项目灵感来源,inspiration of the project© Architects of Invention
The 7-storey building is notionally modular, with all elements, but not all modules, being constructed offsite. This represents a radical innovation for Georgian architecture, where offsite construction is still in its infancy. Inspired by both American architect James Wines’ collage “Highrise of Homes”, with its greenhouse style living spaces, and by architects Brodsky & Utkin’s “Columbarium Habitable”, the concept for this scheme is houses with gardens stacked on top of each other to form a single residential block.
▼街景,street view© Grigorii Sokolinskii
▼外观概览,overall of the project© Grigorii Sokolinskii
模块化起居空间以椭圆形与矩形体量交替排列,在网格式立面中形成清晰而富有节奏感的竖向秩序。相较于詹姆斯·怀恩斯的原始构想,Lisi 花园住宅楼进一步强化了阳台的使用属性,使其成为真正可种植、可停留的户外花园空间。项目在“集体居住”的前提下强调“个体性”——在高密度城市环境中营造一种垂直社区,使居住者既能享有郊区住宅般的私密与开放,又能共享城市生活的便利。它突破了传统公寓住宅的空间模式,将空间尺度、自然采光与景观融合作为核心设计价值。
▼灵感来源,inspiration of the building© Architects of Invention
The modular living rooms are configured as alternating oval and rectangular forms that create a rhythmical vertical pattern within the grid facade. As a modification to James Wines’ vision, the Garden House’s verandas offer ample space for outdoor planting. The project celebrates individuality within collectivity — a vertical community where residents experience the privacy and openness of suburban living, but in a compact, urban form. It challenges conventional notions of apartment living, proposing instead an environment where spatial generosity, daylight, and landscape integration are paramount.
▼正立面,front facade© Grigorii Sokolinskii
▼立面细部,details of the facade© Grigorii Sokolinskii
总体描述
General description
基地位于第比利斯西北部的萨布尔塔洛(Saburtalo)区,靠近利西湖(Lisi Lake)的坡地上,可俯瞰城市景观。该片区总体规划邀请多家国际事务所参与,包括 Architects of Invention、里卡多·博菲尔(Ricardo Bofill)以及 UNStudio,共同构建一组五至七层的新建住宅楼,与周边的独栋住宅形成并置关系。
The site is located to the North-West of Tbilisi, in the Saburtalo district, on a sloping hill near Lisi lake, with views over the city. A series of high-profile practices – Architects of Invention, Riccardo Bofill and UN Studio – have been commissioned to populate the masterplan with radically different, new build, 5 – 7 storey residential blocks, that will sit alongside a number of private houses.
▼外观,exterior view© Grigorii Sokolinskii
▼七个布局各异的住宅楼层,seven residential floors with diverse layouts © Grigorii Sokolinskii
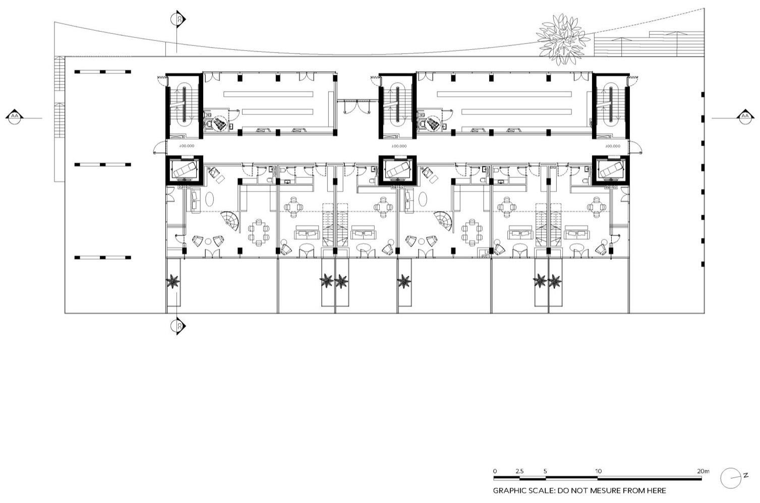
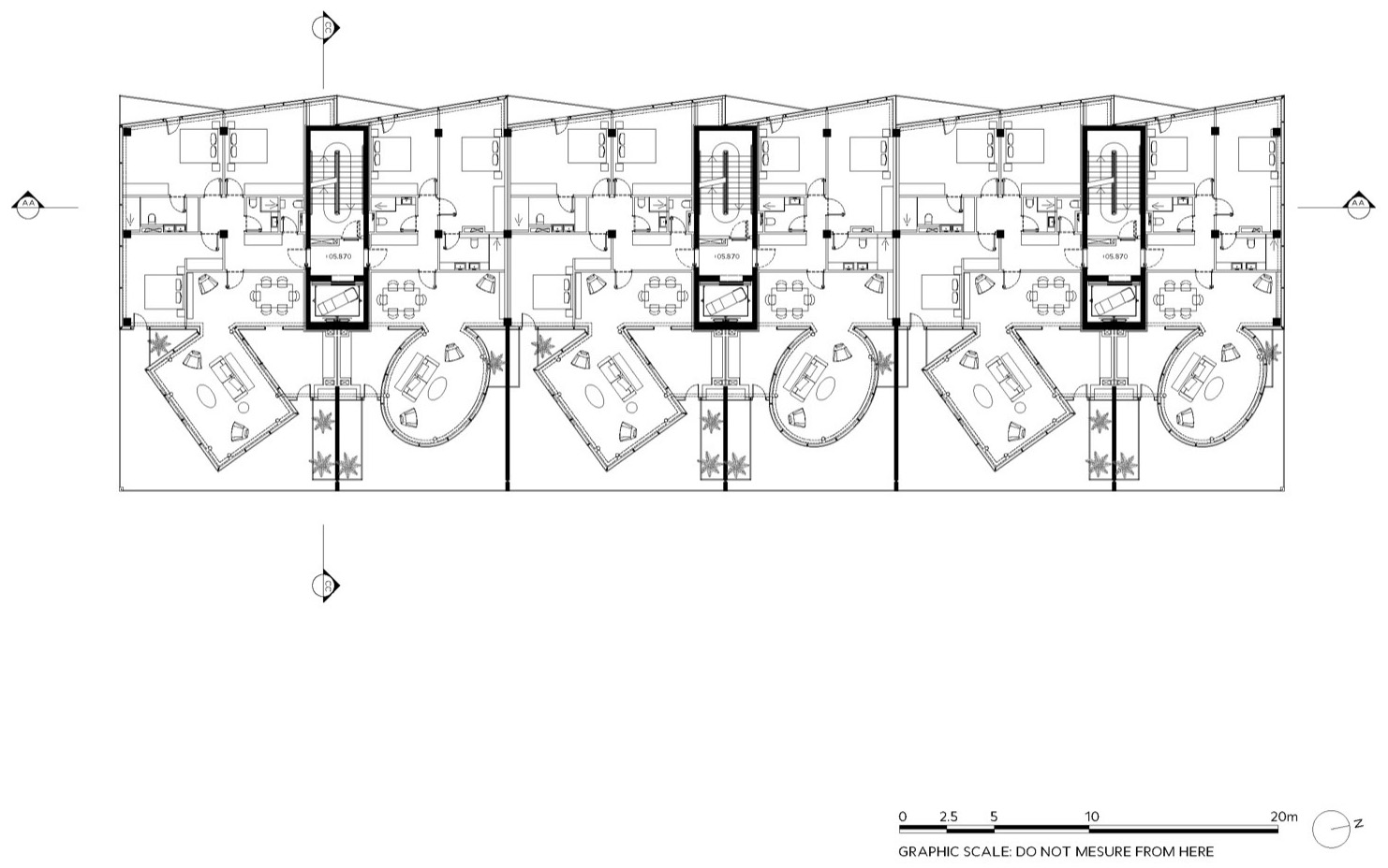
Lisi花园住宅楼共设 42 个住宅单元,分布于七个布局各异的住宅楼层;底层为商业空间,地下设置停车场。建筑在竖向上被划分为三个体块,每个体块均设有一组单向楼梯与电梯核心筒,每层对应两户住宅。标准层住宅为东西双朝向布局,而顶部楼层则布置为尺度更为优越的复式公寓。
The Garden House consists of 42 units over 7, uniquely configured residential floors, with ground floor commercial space and basement car parking. The building is vertically divided into three blocks. Each block contains a one-way staircase and an elevator cell with two flats located on each landing. The apartments on the standard floors have views both to the east and west, while the upper floors offer more luxurious, duplex apartments.
▼建筑在竖向上被划分为三个体块,the building is vertically divided into three blocks© Grigorii Sokolinskii
建筑整体朝向经过精确控制:向东眺望第比利斯城市景观,向西面向起伏的丘陵地形。多数住宅具备双面采光与通风条件。立面在平直与曲面之间交替变化,呈现出高度几何控制下的雕塑感,并随日照条件不断发生视觉转变。
The building’s orientation captures panoramic views to the east over Tbilisi and to the west toward the hills. Most units are dual-aspect, allowing for abundant natural light and cross-ventilation. The façades display a remarkable degree of geometric precision, alternating between flat and curved surfaces to create a sculptural expression that shifts with the daylight.
▼由绿坡看建筑,viewing the building from the green slope© Grigorii Sokolinskii
▼侧立面,profile of the building© Grigorii Sokolinskii
概念:语境与策略
Concept. Context & Strategy
项目置身于一套开发管控规划(Development Regulation Plan, DRP)之中,该规划对建筑高度、占地范围与总体体量作出了明确限制。设计团队在这一框架内提出的核心策略,是在满足法规要求的同时,突破常规住宅体块的组织方式。最终方案通过模块化“花园住宅”的垂直叠合,重新诠释了总体规划所要求的居住密度,同时最大限度地提升自然采光、通风条件与户外空间的品质。
▼分析图,analysis diagram© Architects of Invention
The project emerged within the framework of a Development Regulation Plan (DRP) that dictated specific parameters for site use — including maximum height, footprint, and overall building volume. Within these constraints, the design team developed a clear strategy: to create an architectural form that simultaneously adheres to regulation and transcends conventional block typologies. The resulting building reinterprets the masterplan’s density requirements through an elegant stacking of modular “garden houses”, each designed to maximise natural light, ventilation, and outdoor space.
▼阳台,balcony© Grigorii Sokolinskii
▼朝向城市一侧的“玻璃房”,the “glass house” facing the city side © Grigorii Sokolinskii
▼朝向城市一侧的“玻璃房”,the “glass house” facing the city side© Grigorii Sokolinskii
▼方形玻璃房,the square “glass house” facing the city side© Grigorii Sokolinskii
▼室内视角,interior views© Grigorii Sokolinskii
消防规范是设计中的关键制约因素之一。依据格鲁吉亚现行建筑法规,单一疏散核心所服务的单层面积不得超过 500 平方米。由此,建筑被划分为三个独立的交通核心,每个核心每层仅服务两户住宅。这一策略不仅满足了规范要求,也减少了公共空间的共享强度,强化了居住单元的半私密属性。所有住宅均采用双朝向布局,可同时面向城市与山丘。朝向城市一侧设置的“玻璃房”——半围合的冬季花园空间——作为室内与室外之间的过渡界面,使露台在全年不同季节均可使用。这些尺度慷慨的阳台经过与开发方的反复协调,最终成为项目最具辨识度的建筑特征之一。
One of the major design challenges was to reconcile fire-safety regulations with spatial freedom. Georgian building codes stipulate that no single escape core should serve more than 500 sqm per floor. This led to a tripartite vertical division, yielding three distinct circulation cores, each serving two units per level. This solution not only complied with regulation but also enhanced user experience by reducing shared circulation and creating a sense of semi-privacy within each cluster of homes. The dual-aspect layout ensures that each apartment enjoys views toward both the city and the adjacent hills. The “glass rooms” — semi-enclosed winter gardens facing the city — act as mediators between interior and exterior, enabling year-round use of the terraces. These generous balconies were the subject of extensive negotiation with the developer, ultimately becoming a defining architectural feature of the scheme.
▼由色彩区分的三个楼梯间,three stairwells with color distinctions© Grigorii Sokolinskii
设计充分回应基地的坡地条件,将停车空间隐藏于地形之中,并抬升住宅层以获取更佳视野,从而形成一座在模块化逻辑与空间表现之间取得平衡的建筑形态。
The design strategy embraces the topography and orientation of the site, using the slope to conceal parking levels and elevate residential floors for optimal vistas. The result is a carefully balanced composition — a modular yet expressive structure that responds to both environmental and regulatory constraints while prioritising quality of living and architectural character.
▼走廊,hallway© Grigorii Sokolinskii
建造:材料与结构
Construction. Materials & Structure
Lisi花园住宅楼采用钢—混凝土混合结构体系,在建造效率、结构稳定性与建筑表达之间取得平衡。三座钢筋混凝土核心筒为建筑提供主要的竖向稳定,并整合交通与设备系统。楼板采用混凝土华夫板结构,通过三角网格减少材料用量,同时提升承载能力、改善振动控制,并增强建筑热容量,以支持被动式节能策略。
Lisi Garden House employs a hybrid concrete-and-steel structural system designed for efficiency, resilience, and elegance. Three reinforced concrete cores anchor the building, providing vertical stability and housing the circulation and services. The floors are defined by a distinctive concrete waffle slab — a triangulated grid that both reduces material use and increases load-bearing performance. This structural approach enhances vibration control, reduces reinforcement density, and contributes to the building’s thermal mass, supporting energy efficiency through passive means.
▼建筑立面,facade of the building© Grigorii Sokolinskii
▼建筑侧立面,side facade of the building© Grigorii Sokolinskii
▼近景细部,closer views© Grigorii Sokolinskii
立面系统由高性能双层中空玻璃与纤细的铝合金框架构成,并与局部外露混凝土交替出现。部分区域采用背漆玻璃处理,用以遮蔽结构或设备空间,保持立面整体的纯净与统一。阳台与露台铺设白色大理石板材,在简洁克制的材料体系中引入细腻而耐久的质感。
The façade is composed of high-quality double-glazed glass panels set within slender aluminium frames, alternating with areas of exposed concrete. Some sections feature back-painted glass to conceal structural or service zones, maintaining visual uniformity. The balconies and terraces are finished with white marble slabs, a durable and elegant surface that complements the minimalist palette.
▼支撑结构,structure© Grigorii Sokolinskii
可持续性贯穿于建筑整体逻辑之中:预制化建造显著减少了现场施工时间与建筑废料;简化的材料体系降低了长期维护成本;外露混凝土几乎无需额外养护,而高气密性的玻璃立面则有效控制热损失与太阳辐射。整体结构以其简洁、耐久与高性能特质,成为格鲁吉亚当代城市语境中一种具有示范意义的住宅原型。
Sustainability is inherent in the building’s logic: offsite prefabrication reduced on-site waste and construction time, while the use of fewer materials enhances long-term maintainability. The exposed concrete requires minimal upkeep, and the façade system ensures thermal efficiency through airtight glazing and solar gain control. The structure’s simplicity and durability make it a low-maintenance, high performance design — a modern prototype for sustainable housing in Georgia’s evolving urban context.
▼夜景,night view© Grigorii Sokolinskii
▼总平面图,site plan© Architects of Invention
▼地下层平面图,basement floor plan© Architects of Invention
▼底层平面图,ground floor plan© Architects of Invention
▼二层平面图,first floor plan© Architects of Invention
▼三层平面图,second floor plan© Architects of Invention
▼四层平面图,third floor plan© Architects of Invention
▼五层平面图,fourth floor plan© Architects of Invention
▼六层平面图,fifth floor plan© Architects of Invention
▼七层平面图,sixth floor plan© Architects of Invention
▼顶层平面图,top floor plan© Architects of Invention
▼立面图,elevations© Architects of Invention
▼剖面图,sections© Architects of Invention
▼细部详图,construction details© Architects of Invention
Fact Sheet
Status:Built
Location:Lisi Green Town, Tbilisi, Georgia
Gross Built Area:11,500 m²
Budget:USD 25 million
Stories:7
Structure:Combined steel and concrete
Programme:Car park, retail, residential flats, duplex apartments
Client:Lisi Fo Ltd., Nodar Adeishvili
Consultants:
Structure:Cubicon
M&E:NEC
Urban Planning:IERI
Geology:Sainjgeo
Transport:GZA
Design Team (London):
Nikoloz Japaridze
Simon Gatehouse
Elena Cruz Alcami
Vako Kelbakiani
Design Team (Tbilisi):
Eka Kankava
Davit Tsanava
Tatu Batiashvili
Nino Margvelashvili
Photography:Grigorii Sokolinskii
客服
消息
收藏
下载
最近


























































































