查看完整案例

收藏

下载

翻译
Architects:Unknown Surface Studio
Area:450m²
Year:2025
Photographs:Rungkit Charoenwat
Manufacturers:Lamptitude,Modernform,Siamtak,Timbercharm
Lead Architects:Cievanard Nattabowonphal, Piyanat Songkhorh, Nonglak Boonsaeng
Category:Houses
Lead Team:Cievanard Nattabowonphal, Piyanat Songkhorh, Nonglak Boonsaeng
Interior Design:REAL AS TECT
Project Management:REAL AS TECT
City:Bangkok
Country:Thailand
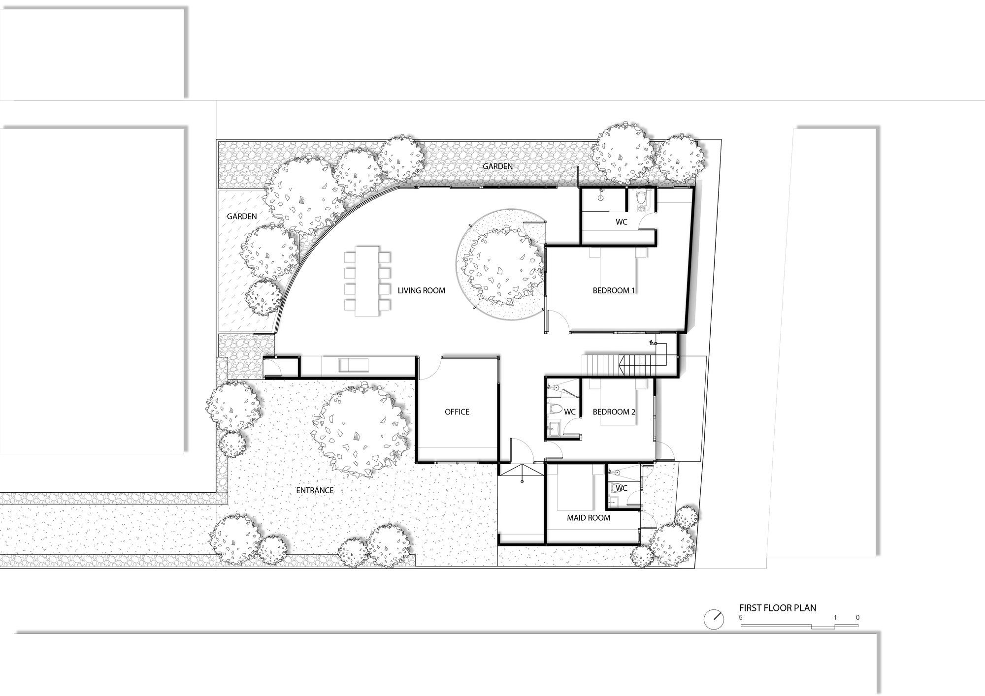
Text description provided by the architects. Amidst the restless energy of Bangkok's Ladprao district, Terrarium House sits quietly on a unique, ladle-shaped plot. With a narrow three-meter access road leading to a square site hemmed in by neighbors on all four sides, the land initially seemed landlocked. However, the design turns this constraint into its greatest asset, flipping the perspective to create an inward-looking sanctuary—a private world entirely detached from the chaos outside.
The experience begins with a carefully choreographed "Sequence of Arrival." The long, narrow entrance is transformed into a transitional tunnel. Flanked by natural stone walls and sheltered by a stretching wooden ceiling, this passage suppresses the city's noise and builds anticipation, creating a moment of calm before revealing the space within.
At the heart of the home lies the Central Courtyard. Preserving the site's original trees, the architecture wraps around nature like a glass vitrine—a living terrarium. This green core functions as a passive light source, filtering sunlight through layers of foliage. As the sun moves, it paints shifting shadows across the wooden interiors, changing the atmosphere of the house with every passing hour.
Despite being enclosed by surrounding buildings, the interior feels boundless. A double-height living area and curved glass walls dissolve the corners, creating a seamless visual flow between the ground floor and the upper level. The second floor is designed as a private Penthouse, housing an art collection and the Master Bedroom, all maintaining a continuous dialogue with the internal garden.
As the residence of a master contractor, the house is a manifesto of craftsmanship. Seven distinct species of wood were meticulously selected and chemically bleached to achieve a singular, harmonious hue reminiscent of Hinoki cypress. Structurally, the design is innovative and honest; a column-free system relies on steel and Takian wood frames to bear the weight of the roof, exposing the raw beauty of the materials. In Terrarium House, architecture and nature do not just coexist; they embrace, creating a timeless oasis where the city feels a world away.
Project gallery
客服
消息
收藏
下载
最近



































