查看完整案例

收藏

下载
项目名称:Lisi花园住宅楼
位置:格鲁吉亚
设计单位:Architects of Invention
图片数量:67张
摘要Abstract
Lisi花园住宅楼是一座七层的集合住宅,其设计理念建立在“模块化”之上:建筑的所有构件均采用预制方式完成,但并非所有模块完全一致。对于装配式建造仍处于起步阶段的格鲁吉亚而言,这一实践具有显著的实验性与前瞻性。项目灵感一方面来自美国建筑师詹姆斯·怀恩斯(James Wines)的拼贴作品《Highrise of Homes》中“温室式居住空间”的设想,另一方面也呼应了布罗德斯基与乌特金(Brodsky & Utkin)的《可居住骨灰堂(Columbarium Habitable)》。设计由此提出一种“花园住宅叠合”的概念——将带有花园的独立住宅垂直堆叠,形成一座完整的住宅建筑。
▼街景,street view© Grigorii Sokolinskii
▼外观概览,overall of the project© Grigorii Sokolinskii
模块化起居空间以椭圆形与矩形体量交替排列,在网格式立面中形成清晰而富有节奏感的竖向秩序。相较于詹姆斯·怀恩斯的原始构想,Lisi 花园住宅楼进一步强化了阳台的使用属性,使其成为真正可种植、可停留的户外花园空间。项目在“集体居住”的前提下强调“个体性”——在高密度城市环境中营造一种垂直社区,使居住者既能享有郊区住宅般的私密与开放,又能共享城市生活的便利。它突破了传统公寓住宅的空间模式,将空间尺度、自然采光与景观融合作为核心设计价值。
▼正立面,front facade© Grigorii Sokolinskii
▼立面细部,details of the facade© Grigorii Sokolinskii
总体描述General description
基地位于第比利斯西北部的萨布尔塔洛(Saburtalo)区,靠近利西湖(Lisi Lake)的坡地上,可俯瞰城市景观。该片区总体规划邀请多家国际事务所参与,包括 Architects of Invention、里卡多·博菲尔(Ricardo Bofill)以及 UNStudio,共同构建一组五至七层的新建住宅楼,与周边的独栋住宅形成并置关系。
▼外观,exterior view© Grigorii Sokolinskii
▼七个布局各异的住宅楼层,seven residential floors with diverse layouts© Grigorii Sokolinskii
Lisi花园住宅楼共设 42 个住宅单元,分布于七个布局各异的住宅楼层;底层为商业空间,地下设置停车场。建筑在竖向上被划分为三个体块,每个体块均设有一组单向楼梯与电梯核心筒,每层对应两户住宅。标准层住宅为东西双朝向布局,而顶部楼层则布置为尺度更为优越的复式公寓。
▼建筑在竖向上被划分为三个体块,the building is vertically divided into three blocks© Grigorii Sokolinskii
建筑整体朝向经过精确控制:向东眺望第比利斯城市景观,向西面向起伏的丘陵地形。多数住宅具备双面采光与通风条件。立面在平直与曲面之间交替变化,呈现出高度几何控制下的雕塑感,并随日照条件不断发生视觉转变。
▼由绿坡看建筑,viewing the building from the green slope© Grigorii Sokolinskii
▼侧立面,profile of the building© Grigorii Sokolinskii
概念:语境与策略Concept. Context & Strategy
项目置身于一套开发管控规划(Development Regulation Plan, DRP)之中,该规划对建筑高度、占地范围与总体体量作出了明确限制。设计团队在这一框架内提出的核心策略,是在满足法规要求的同时,突破常规住宅体块的组织方式。最终方案通过模块化“花园住宅”的垂直叠合,重新诠释了总体规划所要求的居住密度,同时最大限度地提升自然采光、通风条件与户外空间的品质。
▼分析图,analysis diagram© Architects of Invention
▼阳台,balcony© Grigorii Sokolinskii
▼朝向城市一侧的“玻璃房”,the “glass house” facing the city side© Grigorii Sokolinskii
▼朝向城市一侧的“玻璃房”,the “glass house” facing the city side© Grigorii Sokolinskii
▼方形玻璃房,the square “glass house” facing the city side© Grigorii Sokolinskii
▼室内视角,interior views© Grigorii Sokolinskii
消防规范是设计中的关键制约因素之一。依据格鲁吉亚现行建筑法规,单一疏散核心所服务的单层面积不得超过 500 平方米。由此,建筑被划分为三个独立的交通核心,每个核心每层仅服务两户住宅。这一策略不仅满足了规范要求,也减少了公共空间的共享强度,强化了居住单元的半私密属性。所有住宅均采用双朝向布局,可同时面向城市与山丘。朝向城市一侧设置的“玻璃房”——半围合的冬季花园空间——作为室内与室外之间的过渡界面,使露台在全年不同季节均可使用。这些尺度慷慨的阳台经过与开发方的反复协调,最终成为项目最具辨识度的建筑特征之一。
▼由色彩区分的三个楼梯间,three stairwells with color distinctions© Grigorii Sokolinskii
设计充分回应基地的坡地条件,将停车空间隐藏于地形之中,并抬升住宅层以获取更佳视野,从而形成一座在模块化逻辑与空间表现之间取得平衡的建筑形态。
The design strategy embraces the topography and orientation of the site, using the slope to conceal parking levels and elevate residential floors for optimal vistas. The result is a carefully balanced composition — a modular yet expressive structure that responds to both environmental and regulatory constraints while prioritising quality of living and architectural character.
▼走廊,hallway© Grigorii Sokolinskii
建造:材料与结构Construction. Materials & Structure
Lisi花园住宅楼采用钢—混凝土混合结构体系,在建造效率、结构稳定性与建筑表达之间取得平衡。三座钢筋混凝土核心筒为建筑提供主要的竖向稳定,并整合交通与设备系统。楼板采用混凝土华夫板结构,通过三角网格减少材料用量,同时提升承载能力、改善振动控制,并增强建筑热容量,以支持被动式节能策略。
▼建筑立面,facade of the building© Grigorii Sokolinskii
▼建筑侧立面,side facade of the building© Grigorii Sokolinskii
▼近景细部,closer views© Grigorii Sokolinskii
立面系统由高性能双层中空玻璃与纤细的铝合金框架构成,并与局部外露混凝土交替出现。部分区域采用背漆玻璃处理,用以遮蔽结构或设备空间,保持立面整体的纯净与统一。阳台与露台铺设白色大理石板材,在简洁克制的材料体系中引入细腻而耐久的质感。▼支撑结构,structure© Grigorii Sokolinskii
可持续性贯穿于建筑整体逻辑之中:预制化建造显著减少了现场施工时间与建筑废料;简化的材料体系降低了长期维护成本;外露混凝土几乎无需额外养护,而高气密性的玻璃立面则有效控制热损失与太阳辐射。整体结构以其简洁、耐久与高性能特质,成为格鲁吉亚当代城市语境中一种具有示范意义的住宅原型。▼夜景,night view© Grigorii Sokolinskii
▼总平面图,site plan© Architects of Invention
▼地下层平面图,basement floor plan© Architects of Invention
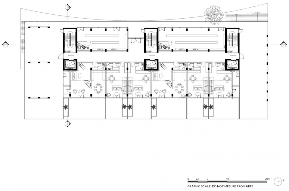
▼底层平面图,ground floor plan© Architects of Invention
▼二层平面图,first floor plan© Architects of Invention
▼三层平面图,second floor plan© Architects of Invention
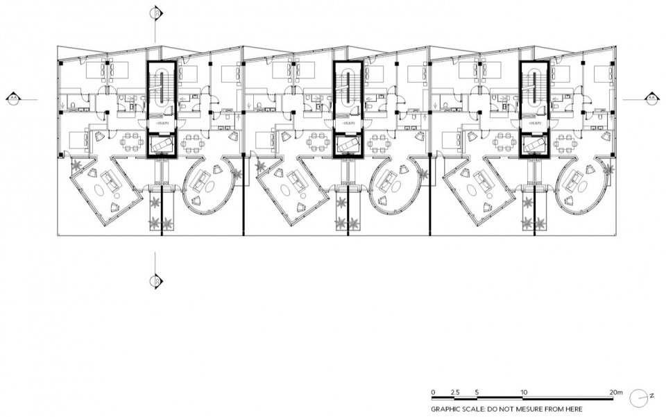
▼四层平面图,third floor plan© Architects of Invention
▼五层平面图,fourth floor plan© Architects of Invention
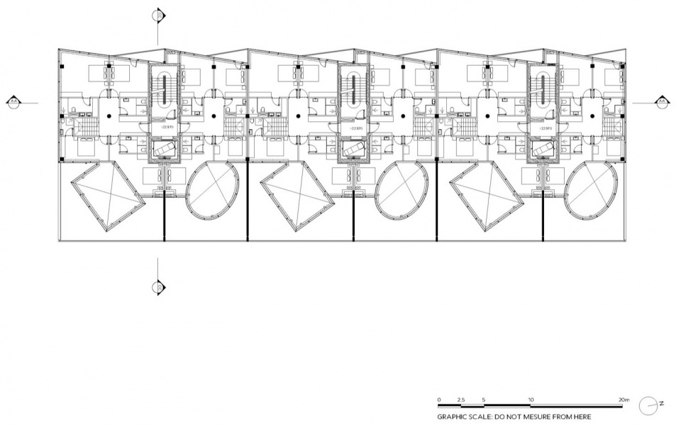
▼六层平面图,fifth floor plan© Architects of Invention
▼七层平面图,sixth floor plan© Architects of Invention
▼顶层平面图,top floor plan© Architects of Invention
▼立面图,elevations© Architects of Invention
▼剖面图,sections© Architects of Invention
▼细部详图,construction details© Architects of Invention
Fact Sheet
Status:Built
Location:Lisi Green Town, Tbilisi, Georgia
Gross Built Area:11,500 m²
Budget:USD 25 million
Stories:7
Structure:Combined steel and concrete
Programme:Car park, retail, residential flats, duplex apartments
Client:Lisi Fo Ltd., Nodar Adeishvili
Consultants:
Structure:Cubicon
M&E:NEC
Urban Planning:IERI
Geology:Sainjgeo
Transport:GZA
Design Team (London):Nikoloz Japaridze Simon Gatehouse Elena Cruz Alcami Vako Kelbakiani
Design Team (Tbilisi):Eka Kankava Davit Tsanava Tatu Batiashvili Nino Margvelashvili
Photography:Grigorii Sokolinskii
客服
消息
收藏
下载
最近




























































