查看完整案例

收藏

下载

翻译
Architects:Liminal Architecture
Year:2023
Photographs:Natasha Mulhall
Category:Social Housing,Community
City:Tasmania
Country:Australia
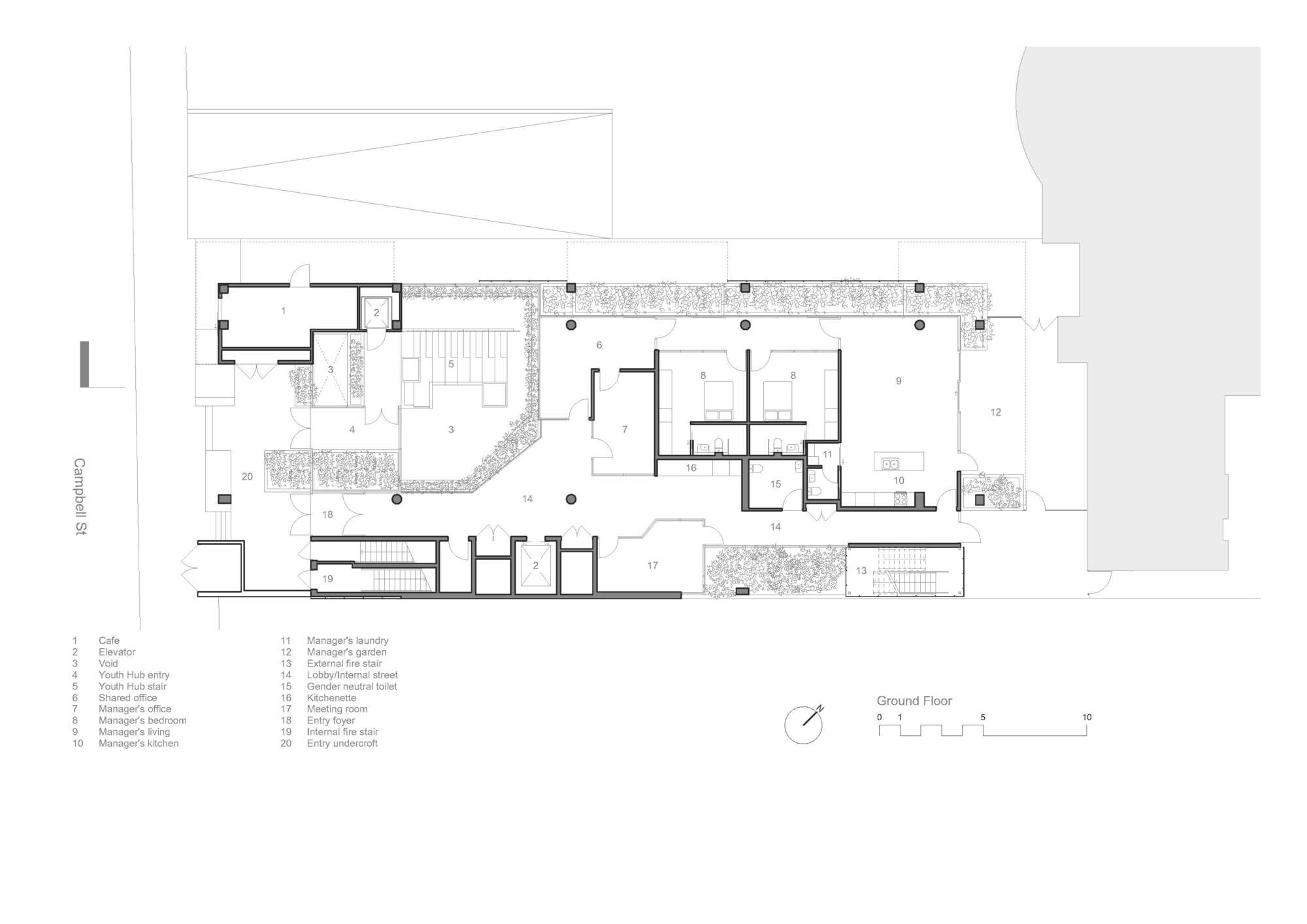
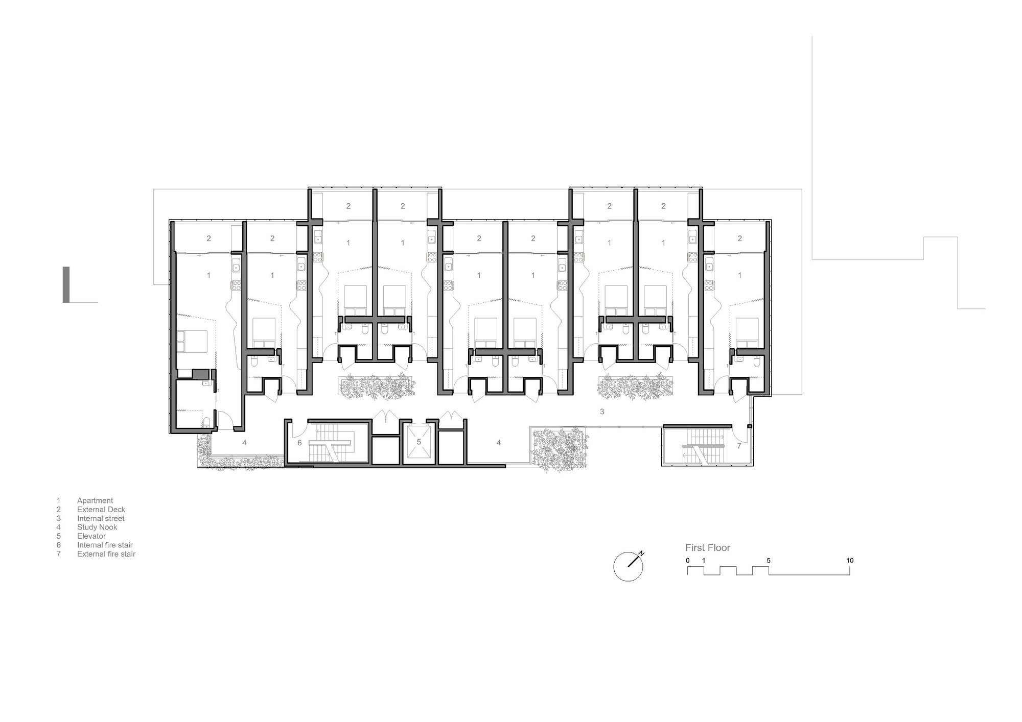
Text description provided by the architects. The Youth 2 Independence Campbell Street project (Y2I) reimagines social housing for young adults. At its core, it provides accommodation for youths interwoven with Community Hub support, social activities, and life-long learning opportunities.
Rising five stories above an underused concrete podium covering two levels of carparking, Y2I reclaims wasted urban space and transforms it into a vibrant, activated contribution to the city. Embraced by the warmth of the custom LIMINAL-orange perforated screening, the housing hub presents a city 'marker' within the greater urban context.
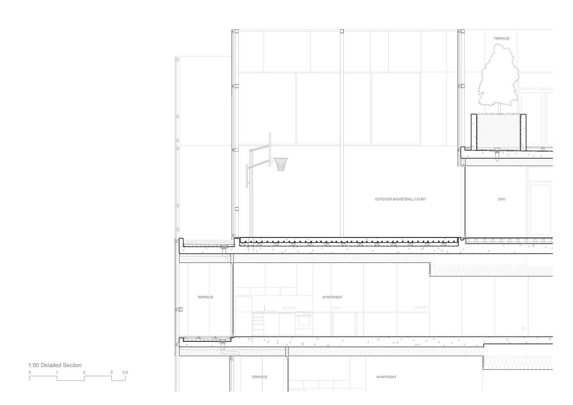
From rooftop social areas and edible gardens, to an elevated 3-point basketball court encouraging fun, fitness, and cohesion, Y2I fosters a sense of belonging and empowers residents to form sustainable independence to build their own brighter futures.
Together with Homes Tasmania and Anglicare, LIMINAL sees the development as an opportunity to demonstrate a progressive approach to affordable housing models.
Project gallery
客服
消息
收藏
下载
最近

































