查看完整案例

收藏

下载
木色、光影与四季共生
回归日常生活之美
在城市喧嚣与自我本真的边界处,家不应只是居住的容器,更是容纳情绪、滋养心灵的精神居所。
本案设计以“简单化、生活化、个性化”为核心理念,摒弃风格束缚与表面浮华,深度重塑空间与居住者的内在链接,让日常回归本真,最终实现“简单即美好,生活即艺术”的居住理想。
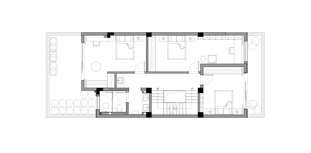
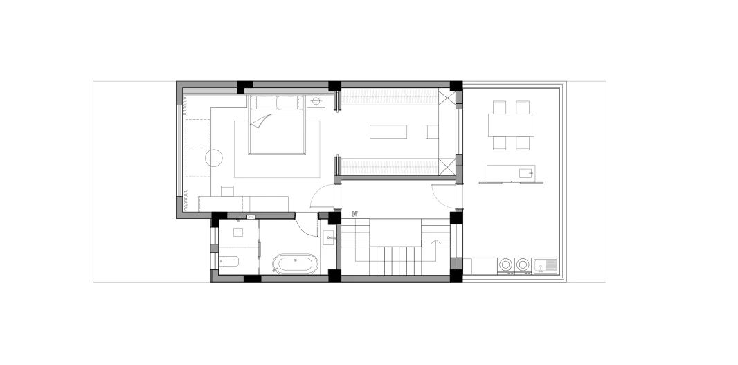
平面图
△ 地下室平面布局图
△ 一层平面布局图
△ 二层平面布局图
△ 三层平面布局图
左右滑动,查看更多
01
地下一层
光影流转 别有洞天
通过开挖地下天井的设计巧思,将阳光与新鲜空气引入地下,彻底打破地下室昏暗潮湿的固有印象。棉麻沙发的柔软、艺术作品的韵致、木质基底的温润,与漫入的自然光线交织相融,无论是坐于软榻翻书,或是倚窗一隅小憩,这里演变为与清风私语、邀明月相伴的休闲秘境。
02
楼梯
木语流年 串联脉络
从进户楼梯到室内楼梯,以结构化雕塑的设计语言,让楼梯贯穿室内外及四层空间,既增强了整体空间的连贯性与流动性,又成为视觉焦点。行走其间,空间场景随脚步自然转换,家的不同面貌徐徐展开,每一次上下楼都成为一场愉悦的视觉漫游。
03
客厅
书香萦绕 复古慵懒
客餐厅采用错层设计,既拉开空间层次,又让会客厅、餐厅互不干扰。整个公区满铺黑胡桃木,温润木纹打底,搭配选品考究的中古风家具,时光沉淀感悄然漫开。客厅到顶的玻璃柜体里,书籍与藏品静静陈列,孩子踮脚翻书、客人驻足赏玩,满室书香萦绕。浅色系模块化沙发与木色形成柔和对比,一旁中古单椅裹着暖阳,午后蜷坐于此喝咖啡,慵懒感恰好填满日常。
落地窗将室外庭院的绿意框作动态画景,茶台倚窗而设,风穿窗缝时,携着院角草木的清浅气息入内。开放格中茶杯错落陈列,随手取一只温在茶盘旁,煮茶的水汽袅袅升起,抬眼能望见窗外光斑在枝叶间跳跃,书香混着茶香漫开,室内的闲适与室外的生机轻轻相触,时光又多了份自然的意趣。
03
餐厅
三餐四季 烟火日常
餐厅区域早已超越本来的就餐意义,成为家庭的生活秀场。黑胡桃木的沉稳质感、圆桌的包容形态与岛台的实用便利相互交织,让三餐四季都成为可赏可感的日常风景,家人围坐的温情在此静静流淌。
04
卧室
浸润暖意 自然共生
主卧背景墙一半是温润木饰面,一半留着素净白墙,角落复古灯垂着暖光,移动收纳柜凹凸有致,复古音响静立一旁,每个物件都浸润着生活暖意。飘窗倚在窗边,指尖翻书,阳光漫过纸页,室外树影落在软垫上,斑驳晃动。不用刻意做什么,这方小角落就把松弛与温馨,悄悄裹满了整个空间。
父母房与两间小孩房,核心设计在于为每个房间配备私属露台与空中花园。在这里,居住者可沉浸式感受四季更迭:春有花草繁茂,夏有树荫清凉,秋有落叶静美,冬有暖阳和煦。露台与花园成为阅读、遐想、亲子互动的秘密基地,让居住者在日常中与自然亲密相拥,滋养身心。
END.
项目信息
项目名称:万科溪谷园W宅
项目地点:苏州,昆山
项目面积:383㎡
完工时间:
2025年10月
设计机构:肯吾设计事务所
设计主案:王健、李子青
部分品牌:
墅标门窗、微沃微水泥-艺术涂料、HAVE整木订制、西顿照明、华为智能、格度、予所、吱音、lifenew进口家居馆
文案策划:EDG贰道杠传媒
项目摄影:李耀祥
主创设计师 王健/李子青
上海肯吾设计事务所,2018年创立于上海,2019年成立昆山工作室。专注于空间的多元化设计研究和全案托管。从建筑、景观、室内、软装整体思考,建立全局一体化设计理念。以出色的设计为独具慧眼的客户量身定制专属的独特空间。设计以人为本,独具匠心,体现人性化和艺术性。摒弃风格和形式主义,从每个项目的具体要求出发。通过深入的分析和研究,为每个项目提供独一无二的解决方案,通过设计体现设计本身及设计之外的价值。
客服
消息
收藏
下载
最近































