查看完整案例

收藏

下载

翻译
Architects:Bruschini Arquitetura
Area:250m²
Year:2024
Photographs:Pedro Napolitano Prata
Lead Architect:Fabio Bruschini
Category:Houses
Technical Team:Karina Matias, Angelo Buzelli
Engineering & Consulting > Others:100 engenharia
Engineering & Consulting > Structural:Timbau Estruturas - madeira engenheirada
Landscape Design:Ciça Gorski
City:São Bento do Sapucaí
Country:Brazil
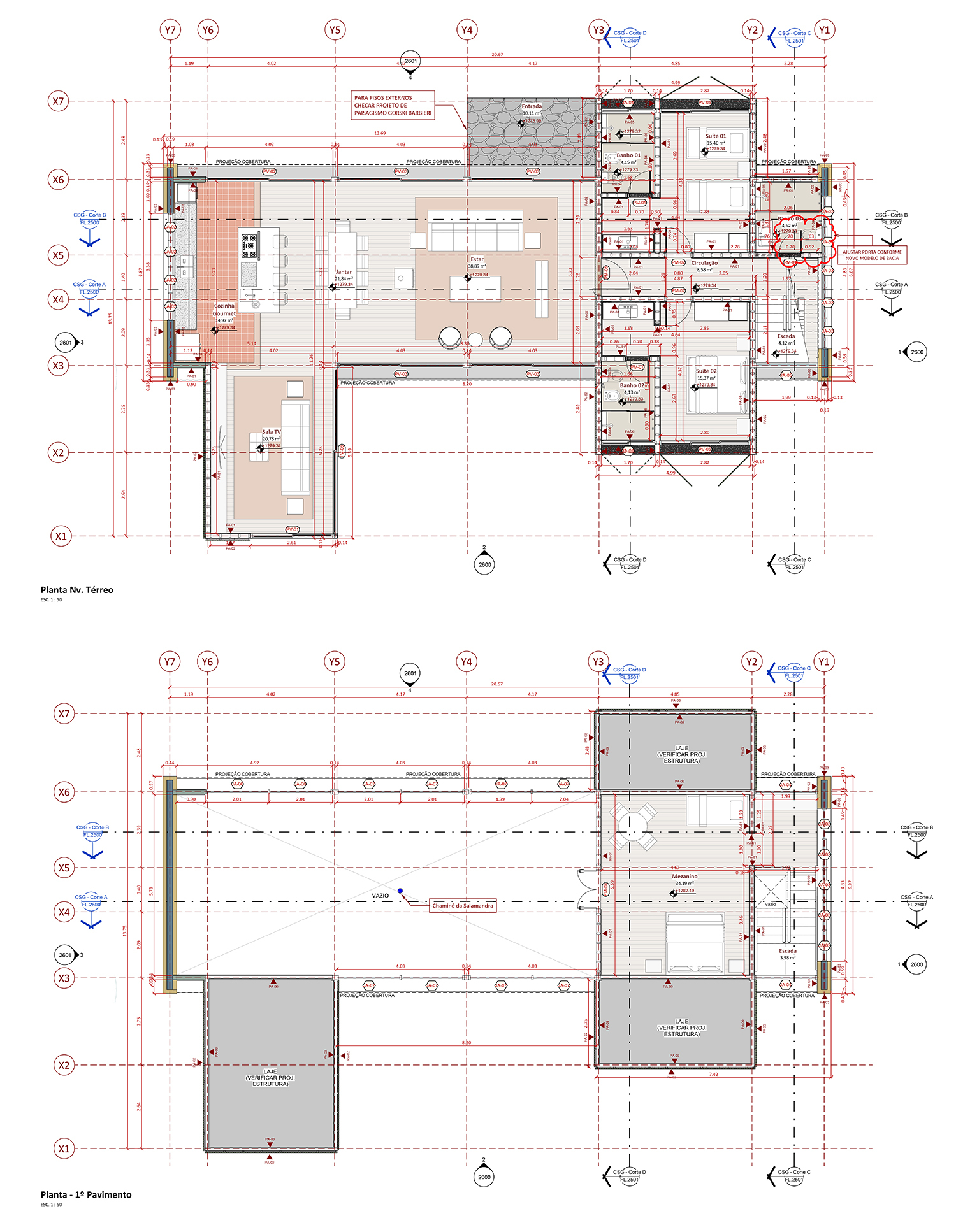
Text description provided by the architects. This project originated from the basic shape of a country house. A simple pavilion with a gabled roof. From there, we filled in this starting point through the lens of more contemporary and current architecture. The owners' desire was for a simple, beautiful, and extremely functional design, with a very streamlined architectural program:
In the main block, elongated, we placed the living room, dining room, and integrated kitchen. With a generous ceiling height, we created a mezzanine that serves a versatile purpose, functioning both as a bedroom and as an intimate lounge. From this main block, covered by the gabled roof, three modules with flat roofs emerge, which house the suites and the TV room. These spaces already have a lower ceiling height, providing a cozier atmosphere for the moments spent in their respective activities. This alternation between heights, while creating a pleasant sensation for those moving through the rooms, also creates an interesting volumetric effect, clearly defining the true use of each space. The project reveals itself at a single, quick glance. The house features aluminum frame closures and makes extensive use of transparency, bringing the view into all environments.
As for the finishes, we used stone, texture, and glass as supporting elements to the main material, which is wood. It appears in two main forms. First, in the structure, made of glued laminated timber (GLT), and secondly, in the facade, with the use of stained pine slats in green, trying in some way to blend in with the landscape.
A principle of our residential projects is the use of prefabricated and modular construction techniques. Coupled with the difficult access to the lot, a beautiful plateau facing Pedra do Baú, we opted for a dry construction method, with minimal waste generation, through the use of a wood structure (GLT) and woodframe closures, with stone walls at the ends of the house being the only two conventional masonry walls (besides the service block).
Project gallery
客服
消息
收藏
下载
最近



























