查看完整案例

收藏

下载
© Alex Shoots Buildings
空间是身体与感官的启蒙者,早在人们咿呀学语之前,自然、光影和诗意的美学就已在心灵深处播种生根。一个人的成长始于自我与世界之间的对话,而教育的真谛也远不止于书本。从边玩边学的幼儿园再到深入研究的大学,人们在每个年龄段的发展需求总是处于不断变化的状态之中,因此,教育空间应当从学生的身心角度出发,提供真正符合这种成长需求的环境。
© Alex Shoots Buildings
© Alex Shoots Buildings
在意大利北部城市帕多瓦的郊外,AACM 建筑工作室汲取当地的文化与乡村建筑遗产,打造了一座充满自然诗意的幼儿园。建筑师以传统农居的大坡度茅草屋顶为灵感来源,并利用鲜明醒目的朱红色陶瓦将这一传统建筑元素转变为可以引导孩子们探索、观察和想象的现代设计,提供富有活力的游戏与学习空间。
© Alex Shoots Buildings
幼儿园的外观看似整体而统一,但内部却巧妙地插入了许多与教室直接相连的庭院,通过视觉上的连接和通透的立面模糊了建筑与四周绿地环境的界限。在建筑的中心处,一个被称为“集市”的开放空间可让孩子们进行非正式学习的课外活动,环绕其周的教室均通过坡屋顶的采光井向天空打开,营造出被自然萦绕的氛围。
© Alex Shoots Buildings
左右滑动查看更多图片
© YuChen Chao Photography
新北市青山国中小位于一片降雨频繁的地区,学校虽长期致力于户外实践训练的教育发展,但却仍需克服气候问题带来的阻碍。为此,317studio以青山森林为主题,为学校打造了一间室内的专属活动教室。
© YuChen Chao Photography
主题教室不仅可作为课程与社团活动的空间,也能用作校际交流的基地。室内空间的设计灵感源自围坐在篝火旁的意象,灵活的设计将教学、实践训练和小组活动等不同类型的空间功能融为一体,通过可移动的桌椅和特殊的吊顶满足不同情境下的空间使用需求,克服了传统教室设计的局限性。
© YuChen Chao Photography
© Gradignan School
对于学龄儿童来说,在学校度过的时光是其成长阶段的重要组成部分,而教学环境也在潜移默化中影响着他们的身心发展。这座位于格拉迪尼昂的学校建立在绿树成荫的公园中,Ateliers Mathieu Laporte从儿童的角度出发,旨在打造一个真正让他们感到舒适自在的地方。
© Gradignan School
学校分为幼儿园和小学两个分部,呈 T 字形交汇,并在底层将餐厅、厨房以及教职工设施和办公室集中在一起,形成便于管理的布局。主入口所在处以一面 100 米长的玻璃幕墙热情迎接学生和访客,而整个建筑则巧妙地隐藏在木材、金属和玻璃构成的轻盈外衣之下,让孩子们能够充分感受到光线、材料和景观,对环境建立深刻的认识。
© Gradignan School
左右滑动查看更多图片
© Nate Cook, ONI Studio
© Nate Cook, ONI Studio
新建建筑最醒目的视觉特征是覆盖了整个顶层的混凝土格状花园,绿意盎然的开放设计不仅提供了露天的公共休憩空间,也借助玻璃屋顶为室内引入了充足的光线。室内设计延续屋顶的结构美学,将相似的网格应用在天花板中,建立了富有秩序性的视觉印象。此外,大楼的功能布局也充分考虑不同群体的共享性,增加了一系列小型的壁龛供人们即兴交流使用,营造出多元友好的社区环境。
© Nate Cook, ONI Studio
© Mónica Barreneche
在混凝土的静默与木材的回响之间,一座新建筑悄然落地生根,为哥伦比亚安第斯大学的音乐系学子提供了一个满足专业训练需求的空间。赢得设计竞赛团队由Carolina Jaimes、Juan Esteban López和Alejandro Puentes组成,他们力求将新建建筑融入环境,以超越表象形式的深意延续了具有重要历史价值的校园景观。
© Mónica Barreneche
建筑的选址是空间叙事的核心,建筑师巧妙利用山坡地形,将大楼的三分之二沉入地下,确保室外景观动线和观景效果的完整性。朴素的材料与去装饰化的室内设计引起了建筑与环境的深层对话,从而营造出谦逊的空间氛围。
© Mónica Barreneche
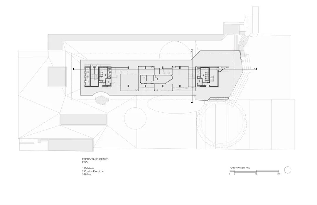
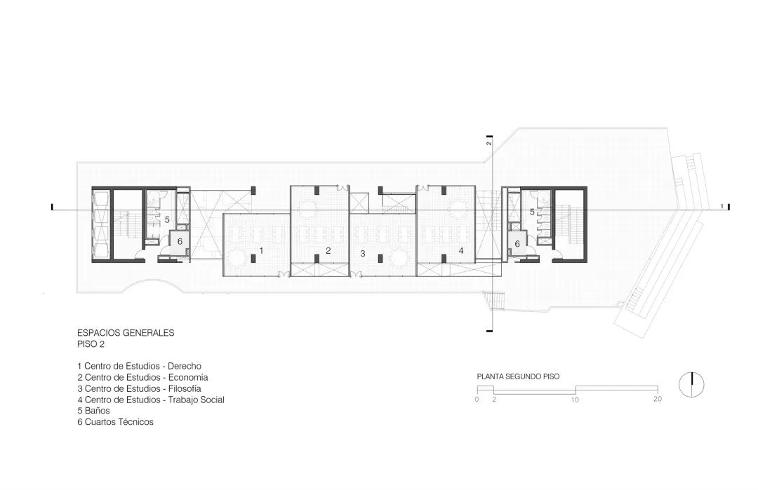
© taller de arquitectura de bogotá
© taller de arquitectura de bogotá
左右滑动查看更多图片
策划:NeiWai
编辑: YouChuan
校对:ZiYu
排版:NingBai
客服
消息
收藏
下载
最近















































































































