查看完整案例

收藏

下载
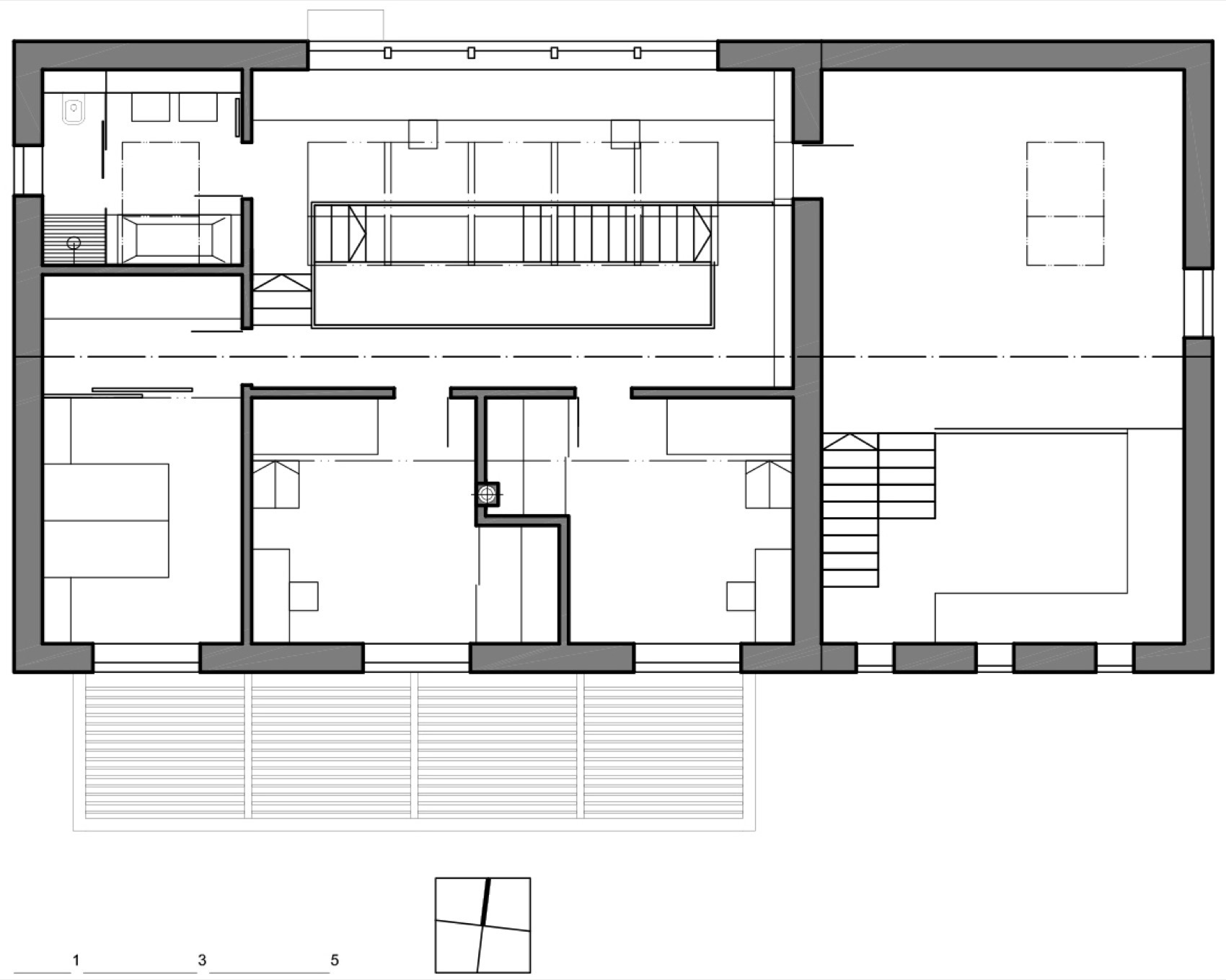
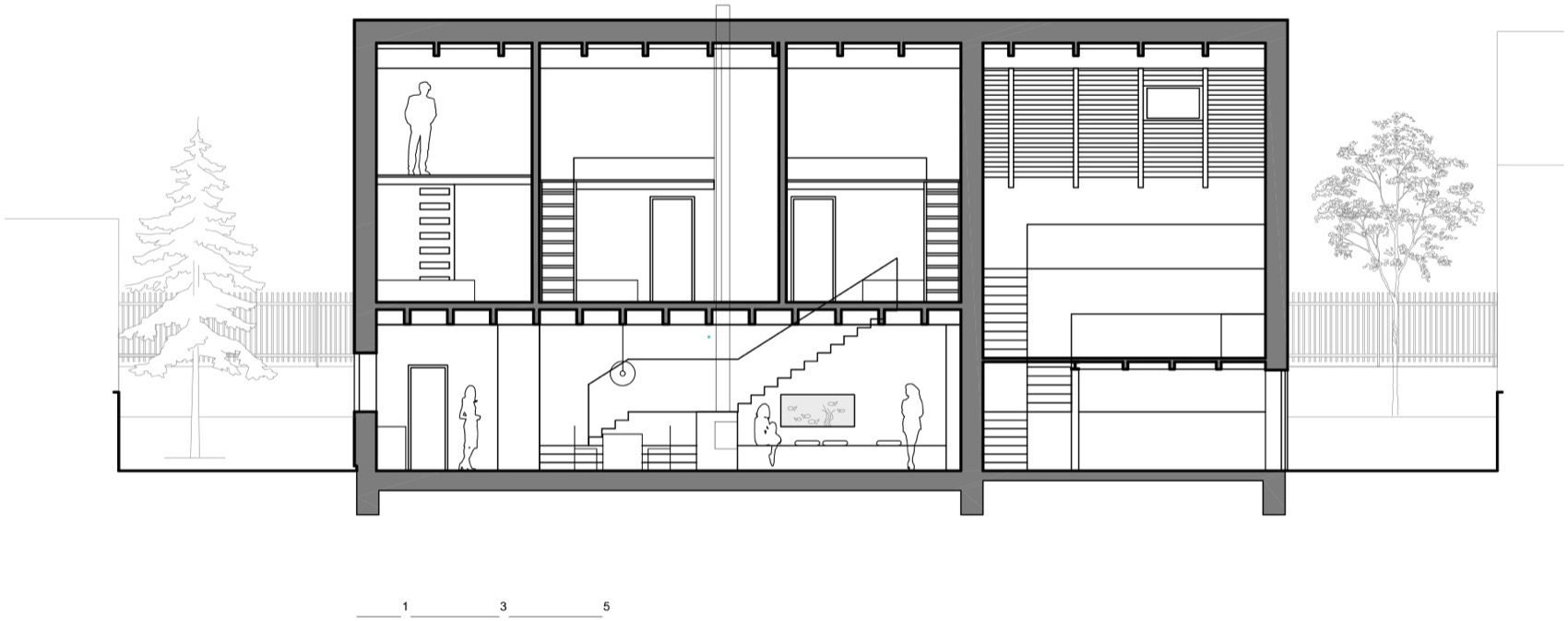
位于弗拉尼(Vraný)的这座住宅,坐落于一片野性而成熟的花园之中。花园在相邻住宅的山墙之间层层铺展,向下延伸至弗拉尼溪流。场地整体向南倾斜,使住宅同时向花园及周边景观敞开。室内空间的组织与倾斜地形、花园以及各个房间的尺度密切关联,并围绕一处宽敞的中央大厅展开。该大厅连接起住宅的五个楼层——从最接近花园的最低层开始,这一层作为主要起居空间,通过露台可直接通达花园;再向上延伸至设有书房的最高层,直至屋顶屋脊。
The house in Vraný is nestled within a wild, mature garden that cascades between the gables of neighboring houses down toward the Vraný stream. With a slope descending southward, the house opens up to both the garden and the surrounding views. The interior space is intricately arranged in connection with the sloping terrain, the garden, and the proportions of individual rooms centered around a spacious hall. This hall connects all five levels of the house—from the lowest level, closest to the garden and serving as the main living area with direct access to the garden via a terrace, to the highest level featuring a study, extending up to the roof ridge.
▼项目概览,overview of the project © Petr Polák
▼住宅与花园,the house and garden © Petr Polák
从外部看,住宅呈现出简洁而朴素的乡村气质,唯有窗洞的布置暗示着内部空间的动态设计。所采用的材料以其简约、自然与真实的特质,将室内与室外统一在同一表达之中:外立面使用未经处理、粗锯切的木材,室内采用上油木材,并辅以当地石材与黑色金属。
From the outside, the house exudes a simple, rural character, with only the placement of windows hinting at the dynamic interior design. The materials used unify the interior and exterior with their simplicity, natural quality, and authenticity: untreated, rough-sawn wood on the exterior, oiled wood on the interior, local stone, and black metal.
▼立面,facade © Petr Polák
▼建筑外观,building appearance © Petr Polák
▼室内概览,overview of the interior © Petr Polák
▼楼梯间,the staircase © Petr Polák
▼天窗细部,Details of the skylight © Petr Polák
花园被保留在其原始状态之中,延续了自身的自然特征。从外部看,住宅融入周围的树木与灌丛;而从室内望去,花园则不断呈现出出人意料的景观与被框取的视野。它自然形成了半围合的空间与角落,进一步增强了花园的魅力与亲密感。
The garden has been left in its original state, preserving its character. From the outside, the house blends into the surrounding trees and shrubs, while from the inside, the garden provides surprising vistas and framed views. It naturally forms semi-enclosed nooks and corners, enhancing its charm and intimacy.
▼场地平面,site plan © Mimosa Architects
▼首层平面,ground floor plan © Mimosa Architects
▼二层平面,1st floor plan © Mimosa Architects
▼立面,elevation © Mimosa Architects
▼剖面,section © Mimosa Architects
Studio Mimosa Architects
Author Petr Moráček
Jana Zoubková
Pavel Matyska
info@mimosa.cz
Website
Social media
Studio address Vyšehradská 320/49, 128 00 Prague, Czech Republic
Project location Vraný
Project country Czech Republic
Project year 2012
Completion year 2023
Built-up area 190 m²
Usable floor area 302 m²
Plot size 1770 m²
Photographer Petr Polák, petrpolakstudio.cz, petr@petrpolakstudio.cz
Collaborators and suppliers Carpentry products: Josef Vomáčka
Metalwork: Kurel,
客服
消息
收藏
下载
最近
































