知末
知末
创作上传
VIP
收藏下载
登录 | 注册有礼

黎巴嫩萨菲住宅丨黎巴嫩

2026/01/19 21:25:46
查看完整案例
微信扫一扫
收藏
下载
翻译
Safi Residence | Design drawings & Execution
Project Type: Interior Renovation / ExecutionLocation: LebanonYear: 2025
黎巴嫩萨菲住宅丨黎巴嫩-2
黎巴嫩萨菲住宅丨黎巴嫩-3
黎巴嫩萨菲住宅丨黎巴嫩-4
黎巴嫩萨菲住宅丨黎巴嫩-5
黎巴嫩萨菲住宅丨黎巴嫩-6
黎巴嫩萨菲住宅丨黎巴嫩-7
黎巴嫩萨菲住宅丨黎巴嫩-8
黎巴嫩萨菲住宅丨黎巴嫩-9
黎巴嫩萨菲住宅丨黎巴嫩-10
黎巴嫩萨菲住宅丨黎巴嫩-11
黎巴嫩萨菲住宅丨黎巴嫩-12
黎巴嫩萨菲住宅丨黎巴嫩-13
黎巴嫩萨菲住宅丨黎巴嫩-14
黎巴嫩萨菲住宅丨黎巴嫩-15
黎巴嫩萨菲住宅丨黎巴嫩-16
黎巴嫩萨菲住宅丨黎巴嫩-17
黎巴嫩萨菲住宅丨黎巴嫩-18
黎巴嫩萨菲住宅丨黎巴嫩-19
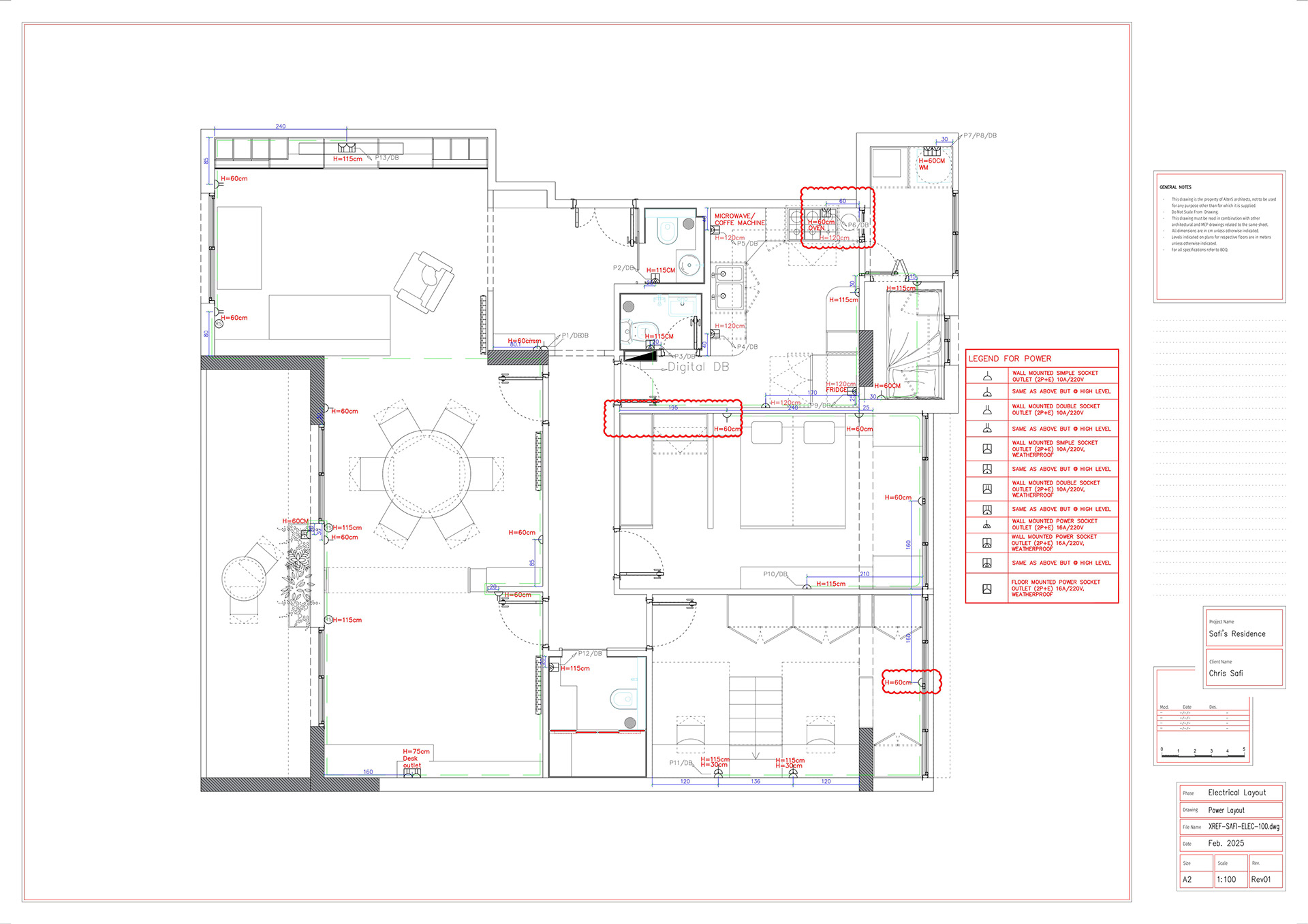
Execution Drawings
黎巴嫩萨菲住宅丨黎巴嫩-21
黎巴嫩萨菲住宅丨黎巴嫩-22
黎巴嫩萨菲住宅丨黎巴嫩-23
黎巴嫩萨菲住宅丨黎巴嫩-24
黎巴嫩萨菲住宅丨黎巴嫩-25
黎巴嫩萨菲住宅丨黎巴嫩-26
黎巴嫩萨菲住宅丨黎巴嫩-27
黎巴嫩萨菲住宅丨黎巴嫩-28
黎巴嫩萨菲住宅丨黎巴嫩-29
黎巴嫩萨菲住宅丨黎巴嫩-30
黎巴嫩萨菲住宅丨黎巴嫩-31
3D visualization​​​​​​​
黎巴嫩萨菲住宅丨黎巴嫩-33
黎巴嫩萨菲住宅丨黎巴嫩-34
南京喵熊网络科技有限公司 苏ICP备18050492号-4知末 © 2018—2020 . All photos and trademark graphics are copyrighted by their owners.增值电信业务经营许可证(ICP)苏B2-20201444苏公网安备 32011302321234号
客服
消息
收藏
下载
最近