查看完整案例

收藏

下载

翻译
Architect: ROOT BOX
Year: 2025
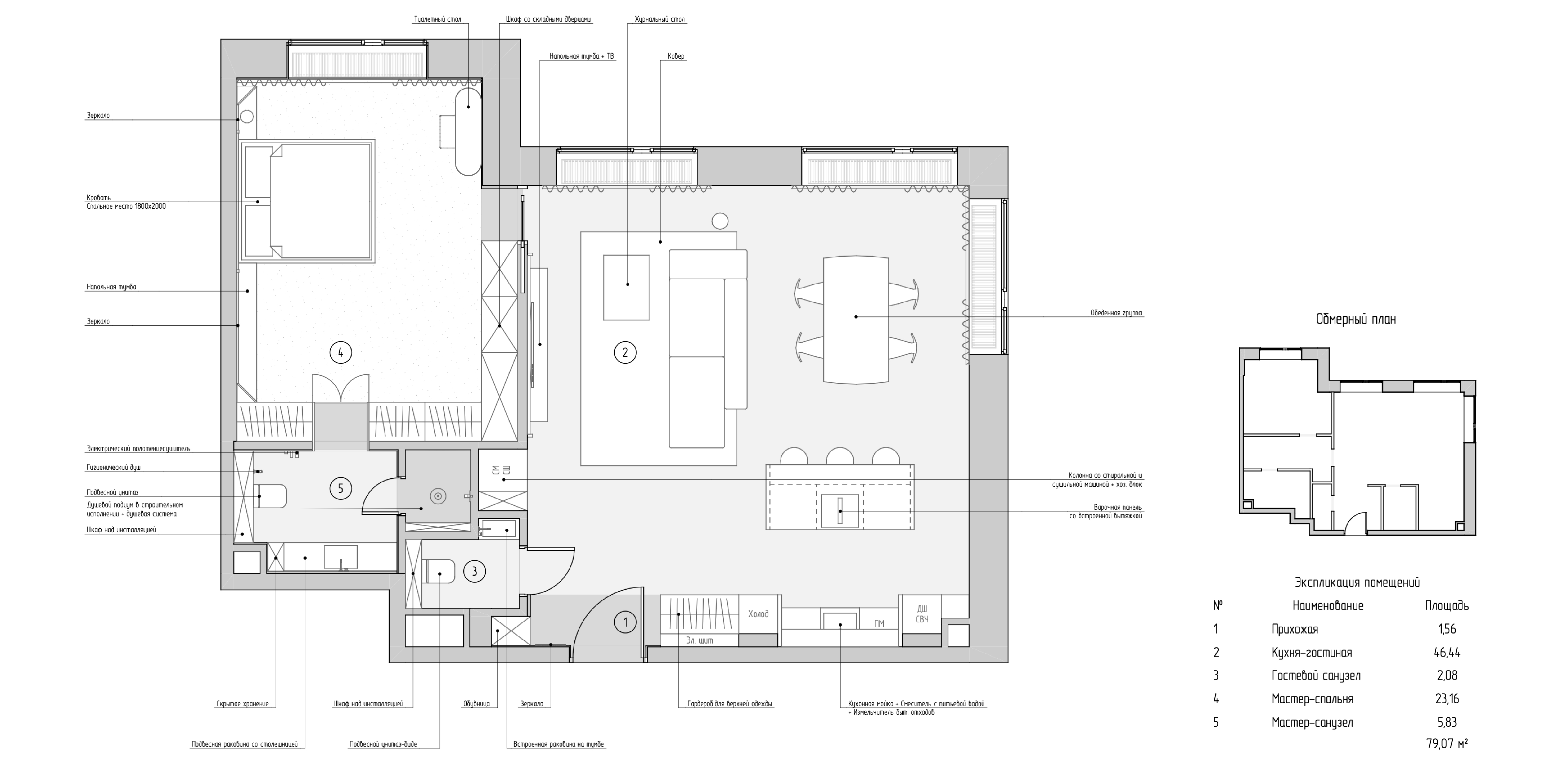
Area: 79 m2
Location: Russia, Moscow
Website | Instagram | Telegram | Pinterest
Изысканный и при этом очень уютный интерьер для молодой девушки. Основной задачей было максимально расширить пространство кухни-гостиной и создать атмосферу, располагающую к тёплым вечерам в кругу друзей.
Другие наши проекты можно посмотреть в нашем профиле, либо перейдя по одной из ссылок ниже.
PLEASE WELCOME!
Website | Instagram | Telegram | Pinterest
客服
消息
收藏
下载
最近




















