查看完整案例

收藏

下载

翻译
Architects:Gets Architects
Area:840m²
Year:2024
Photographs:Arte Haus
Manufacturers:Lutron,Alexindo,Daikin,Kammer,Kuda Laut Tiles,L-Tech,LIXIL,Mill Aluminium,Nurco Lighting,Quadra Surface,SKK Paint,Simon,Taco,Toto
Lead Architects:Gerard Tambunan
Category:Houses
Lead Team:Monika Ardelita
Design Team:Joshua Raharjo, Tite Ayu Nawasari, Dian Xu
General Contractor:PT Alfa Citra Karyatama
City:Kecamatan Kembangan
Country:Indonesia
Text description provided by the architects. At once rational and poetic, the Syncube House was conceived as a spatial framework aligned with the rhythms of modern family life. Designed for a client already familiar with GeTs Architects' work, the brief called for a home that combines functionality, clarity, and comfort within a relatively compact space. The design responds with a clear organizational structure across four levels, accommodating a comprehensive program; five bedrooms, a service bedroom, two living rooms, a gym, two kitchens, and utility rooms.
Located in a dense urban context, the house responds to the constraints of a narrow site and close neighboring properties. The architectural strategy is defined by a dual-mass composition; two building mass volumes positioned along the site's lateral edges, detached from boundaries to enable cross-ventilation and daylight penetration. One mass accommodates family-oriented programs, while the other is reserved for private functions. A canopy frame spans across the fourth floor, visually unifying the two volumes and introducing a consistent rhythm along the facade. Within a neighborhood of mid-rise residences, the canopy maintains a proportional alignment that blends the building into its urban fabric, while still asserting its identity through clarity of form and detail. From this synthesis of two cubic volumes operating in harmony within a shared structural system, the house draws its name: Syncube. The term encapsulates the project's core intent: synchronizing space, structure, and function within a cohesive architectural framework.
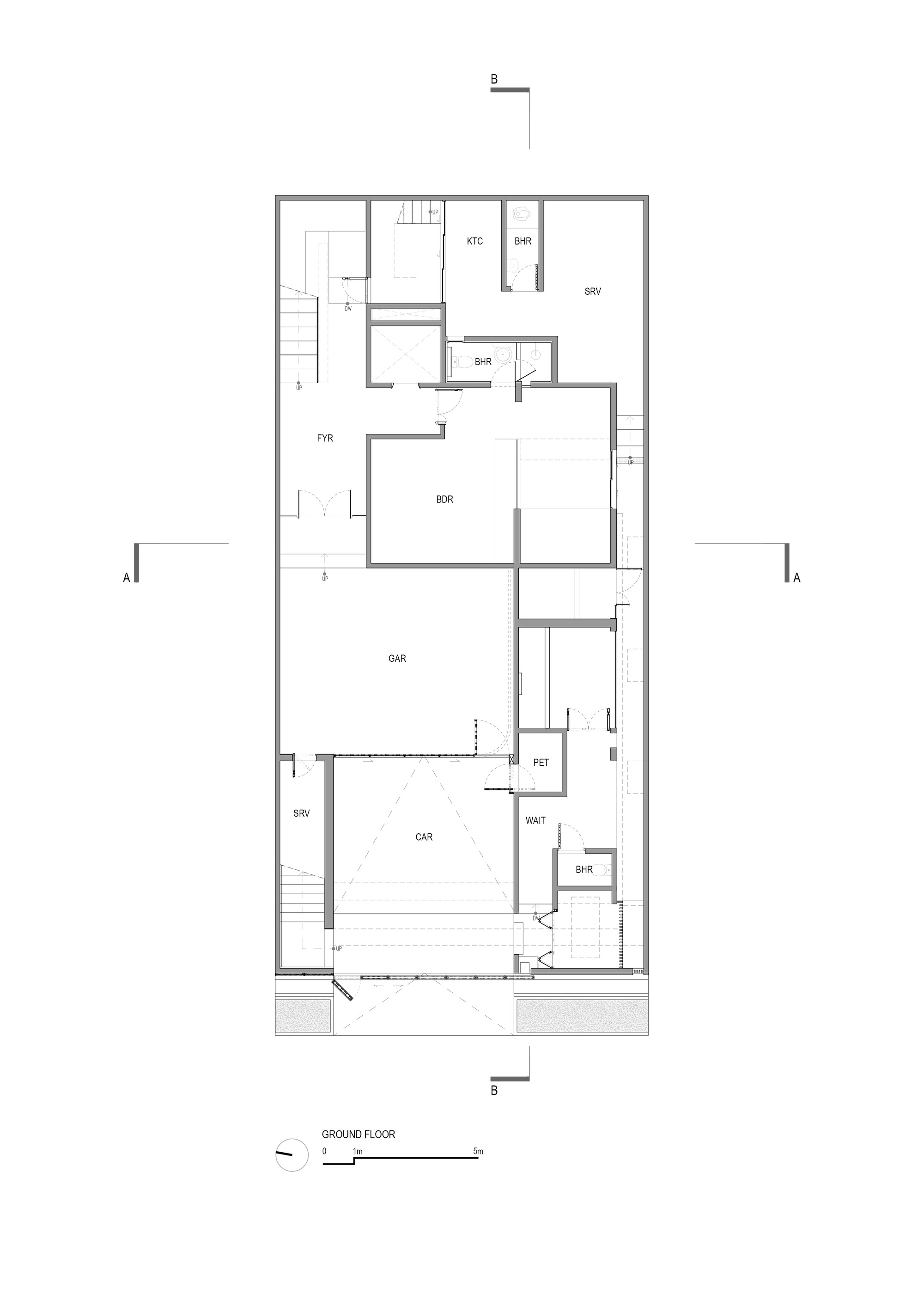
Each floor is organized to support a distinct function while maintaining fluid circulation and visual connectivity. The first floor hosts the garage, main foyer, vertical circulation core—a staircase and a lift—finished in marble cladding. This adds a sense of luxury while ensuring accessibility and ease of vertical movement across all floors. The first floor also includes a private bedroom with an en-suite bathroom. The service zone is efficiently integrated at the rear, ensuring daylight and air circulation reach all functional areas via the adjacent service void.
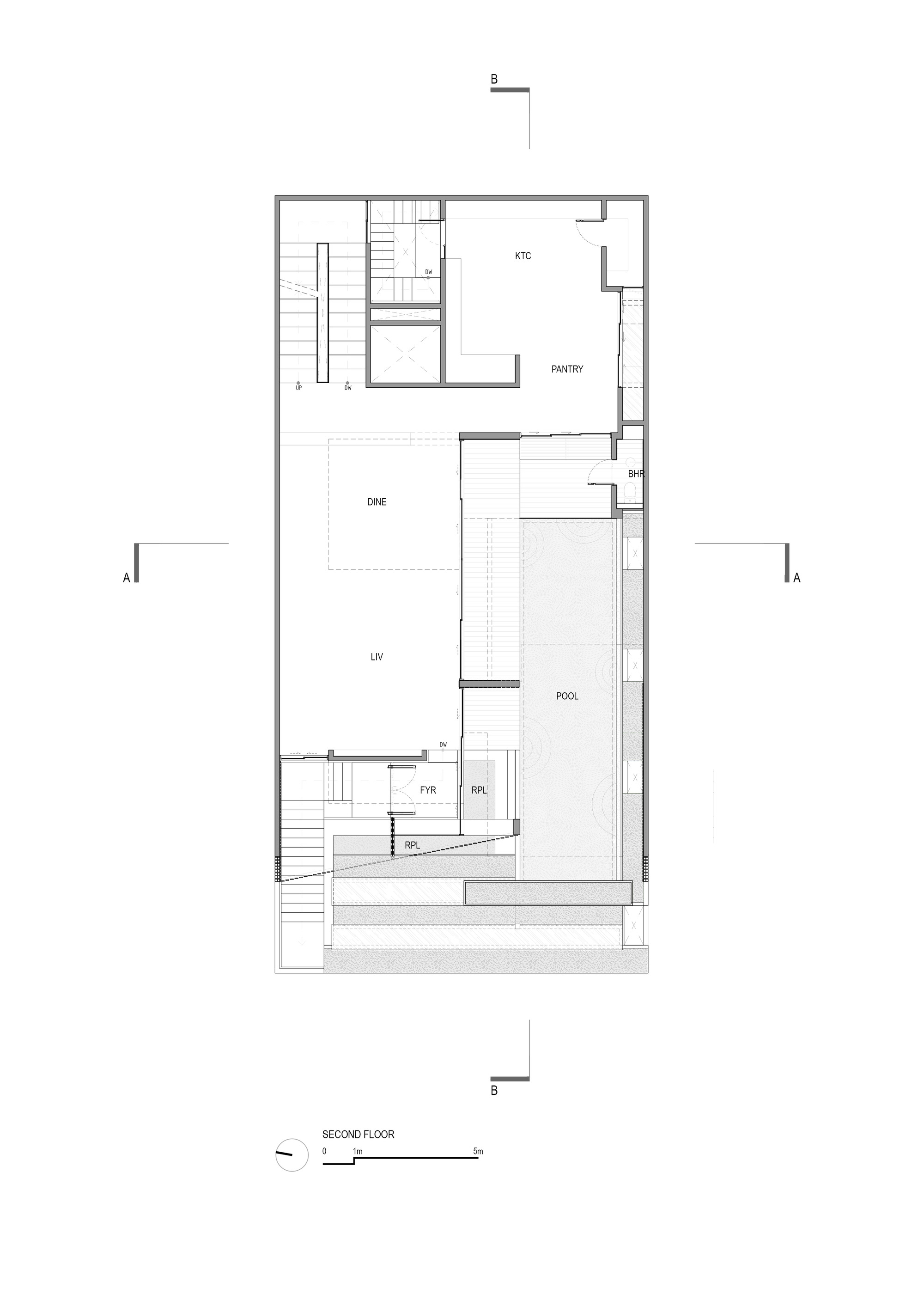
The second floor marks the beginning of the primary living experience. An angled secondary skin lattice frame forms the entry sequence. This secondary skin filters direct views, offering privacy without sacrificing visual lightness. The lattice continues inward, transforming into a ceiling feature that blurs the boundary between inside and out. Complemented by a koi pond as requested by the client, the foyer sets a contemplative tone, establishing a moment of pause before entering the home. From the foyer, the space gently opens into the living area, where the swimming pool slowly reveals itself–not as an afterthought, but as a central visual anchor of the home. It binds together the living, dining, and pantry areas within an open-plan layout. Designed as an open-to-sky element, the pool draws in natural light and promotes cross ventilation through the front facade.
Given the limited site, greenery is incorporated as a cantilevered planter box at the pool's front edge–serving not only as a visual and thermal buffer to the neighboring context, but also as a canopy for the carport below. A vertical garden further defines the pool edge, lining the boundary to offer both a cooling layer and a lush visual backdrop to the main indoor spaces. Small voids integrated into the planter structure allow light and air to reach the service area below, enhancing environmental comfort and circulation.
The dining room, located on the same level, features a double-height void extending to the third floor. This gesture introduces a feeling of vertical openness within the compact 300 sqm footprint, enriching the home with natural light, layered perspectives, and a dynamic sense of scale.The pantry includes a breakfast island for daily routines, while a food storage room was added mid-construction—an adaptive response to lifestyle changes brought on by the pandemic. A dedicated service staircase links the wet kitchen to the pantry, preserving both spatial efficiency and cleanliness in daily use. Custom fiber cement panels used for the façade of the cantilevered volume continue into the terrace ceiling, extending seamlessly into the pantry area. This material continuity supports a cohesive visual transition between exterior and interior elements.
The third floor of the house is organized for both comfort and practicality. Located within the right-side building mass, the master bedroom features a walk-in closet and a bathtub, creating a private and restful retreat for the parents. Adjacent to the room is a wooden balcony that introduces fresh air into the room, aiding ventilation while maintaining a visual link to the swimming pool below. A corridor connects the rooms on this level and overlooks the living and dining areas on the floor beneath, establishing a sense of openness and vertical connection. Toward the rear of the floor plan are two children's bedrooms, each with its own en-suite bathroom and a small window opening onto a side void to bring in natural light and airflow. One of the bedrooms faces a direct view of the swimming pool. In front of the children's bedrooms, the corridor transforms into a shared study area, equipped with a bar-height desk, stools, and a small pantry. This setup allows the children to study, do homework, or enjoy light refreshments without needing to go downstairs. Overall, the third floor is designed to support daily routines and family life, while maintaining connected and well-ventilated spaces.
The fourth floor is designed as a relaxed and multifunctional space, blending leisure, work, and utility functions. At the rear-left corner of the floor, the main staircase rises beneath a skylight, drawing natural light down through an aluminum lattice ceiling. This screen softens the light while continuing the architectural language that defines the home. A lounge family area with a wine chiller welcomes the residents, anchored by a brown lattice ceiling that continues from the exterior canopy frame. Deep brown teakwood accents and cream-toned wall finishes carry the material language inward, creating a comfortable interior that mirrors the facade. Greenery is present here as well, in the form of a semi-indoor garden sheltered by the brown lattice canopy. This blurred threshold between inside and outside adds spatial softness, while the garden serves both aesthetic and climatic functions. Across from it, a fitness room, guest bedroom, and discrete utility spaces complete the program. Silently anchoring, the swimming pool below remains present, acting as a spatial and visual anchor across all four levels of the home.
Materials were selected for both performance and long-term aging in Jakarta's tropical climate. Cream-toned Fibercement cladding and brown aluminum lattice screens offer durability and low maintenance, while teakwood introduces warmth at key tactile points. The contrast between light and dark tones reinforces the architectural rhythm, while the material palette maintains continuity between exterior and interior. The use of passive strategies—including cross-ventilation, shaded openings, and thermal buffers—ensures environmental comfort without excessive reliance on mechanical systems.
The Syncube House ultimately is more than a multi-level residence; it is a coherent architectural system that synchronizes program, structure, and daily life. Through thoughtful zoning, material continuity, and climatic sensitivity, the house offers a durable and flexible environment for contemporary family living. Its dual-mass composition and shared structural canopy define both its form and identity—a home in sync with how life is lived.
Project gallery
客服
消息
收藏
下载
最近




































