查看完整案例

收藏

下载

翻译
Panama Apartment – Smart & Elegant Interior Design
A Interior Architecture & DesignAlma Mihu
Location: PanamaProject Year: 2025Project Type: Residential
Full‑scope interior design for a compact apartment in Panama City, featuring custom furniture solutions, refined material selection, and detailed execution documentation. The design balances spatial efficiency, tactile richness, and visual calm, tailored for real‑world living and long‑term comfort.
PROJECT OVERVIEW
This project presents a complete interior design transformation of a compact residential apartment in Panama City.
The brief was to deliver a refined, functional, and cohesive interior that supports everyday life while maintaining a premium aesthetic.
The design strategy focused on:
• optimized circulation and spatial clarity• custom millwork and hidden storage solutions• a warm and timeless material palette• practical, buildable solutions backed by technical documentation
EXISTING CONDITIONS – BEFORE
These images document the apartment in its original state — a clean slate with basic finishes.
The design challenge was to create an elegant, highly functional interior from this raw starting point.
DESIGN CONCEPT & MATERIAL PALETTE
The concept blends Mediterranean warmth with Scandinavian simplicity.Natural textures, soft tones, and built-in lighting were chosen to create calm and architectural depth.
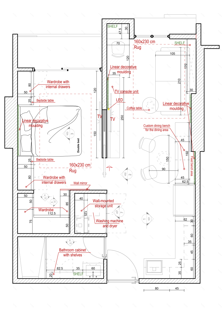
FINAL LAYOUT – FULL APARTMENT OVERVIEW
This overview plan summarizes how function, flow, and design come together.Every element was planned, drawn, visualized, and detailed for execution.
TECHNICAL DRAWINGS – CUSTOM FURNITURE EXECUTION
This section presents the complete set of custom furniture drawings developed for execution.
Each piece was designed specifically for this apartment, responding to architectural constraints and functional needs.
The documentation includes dimensioned elevations, material annotations, LED integration details, and fabrication-ready views — reflecting a high standard of technical coordination.
Realistic renderings showcase the final concept in its entirety, highlighting the material harmony and custom-built approach.
----------------------------------------------------------------------------------------------------------------------
A Interior Architecture & Design
Alma Mihu
客服
消息
收藏
下载
最近




























