查看完整案例

收藏

下载

翻译
Architects:rundzwei Architekten
Area:278m²
Year:2024
Photographs:Nate Cook Photography
Manufacturers:Metsa Woods,Admonter,Claytec,Ennogie GmbH,OPTIGREEN,Reform CPH,Vallone
Category:Residential Architecture,Houses
Design Team:Marc Dufour-Feronce, Andreas Reeg, David Lau
Interior Design:Studio Bardelle
Engineering & Consulting > Environmental Sustainability:ZRS Architekten und Ingenieure
Engineering & Consulting > Structural:Schöne Neue Welt Ingenieure
City:Berlin
Country:Germany
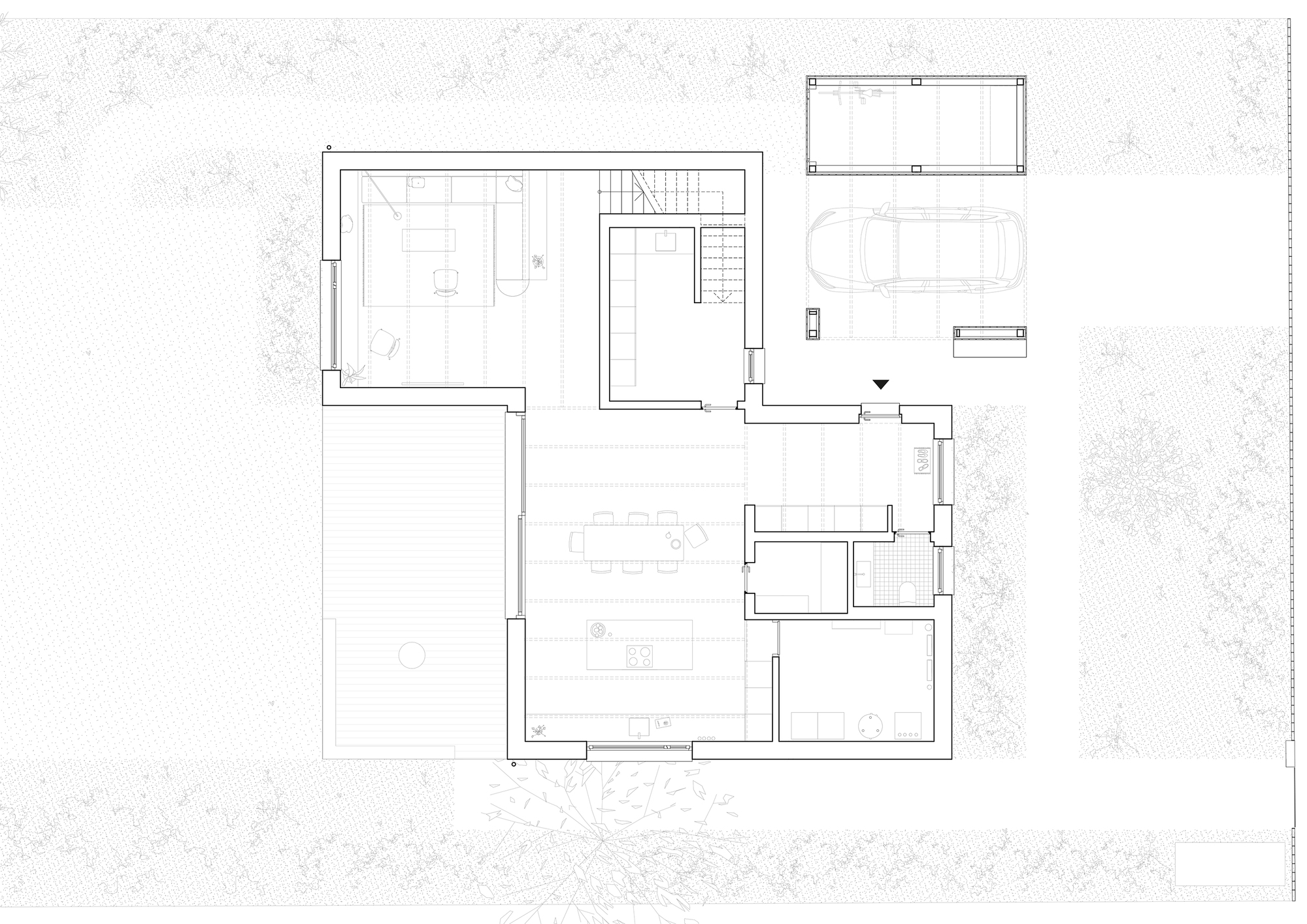
Text description provided by the architects. The OneTwoHouse (German: EinZweiHaus) is a residential building whose exterior form creates an optical illusion: Although it appears to be a semi-detached house, it is in fact a single-family home. The staggered volumes and symmetrical façade create the impression of two separate units that are, however, united under one roof.
The spacious ground floor accommodates the public areas of the house and opens generously toward the garden. High ceilings and a delicate wooden ceiling structure create a bright, welcoming atmosphere that allows for a smooth and harmonious transition to the private upper floor. Carefully placed windows frame views of the outdoors and create a strong connection between inside and outside.
The upper floor houses the family's private retreat. The bedrooms are intentionally compact to ensure an intimate, cozy atmosphere. A large central hallway acts as the lifeline of this level, connecting all rooms while offering space for both interaction and retreat.
The nameOneTwoHouse describes not only the outer appearance but also the sense of unity and reciprocity that can be felt inside the building. The architecture balances openness on the ground floor with tranquility on the upper floor. This merging of two seemingly separate worlds under one roof is reflected throughout the details of the house.
The OneTwoHouse is more than just a place to live. It is a space that, through its design and functionality, bridges the external appearance of a semi-detached house with the inner structure of a single-family home. It unites both worlds under one roof, offering a home that is open and spacious while also private and comfortable.
Sustainability at its core - The building is constructed using Proton clay blocks with perlite insulation in thin-bed mortar. This allows the brickwork to be easily dismantled and reused in line with circular economy principles. The design largely avoids the use of concrete. The frost apron of the floor slab was executed using foamed glass gravel.
A ground probe system with a heat pump supplies the building's underfloor heating and is supported by a full-roof PV system with battery storage. The north-facing roof surface is designed as an inclined green roof, which provides excellent insulation while contributing to biodiversity.
The building is insulated to low-energy standards. Mechanical ventilation is deliberately omitted; fresh air supply is intended to occur manually through window ventilation. Due to the clay plaster surfaces and clay construction boards, the interior spaces have a high moisture-storage capacity, contributing to natural indoor climate regulation.
Project gallery
客服
消息
收藏
下载
最近






















